前言:
有那么一个居所
如卷轴一般
珍藏着你的成长轨迹
交互着彼此的能量
包容着我们
自由生长
◆
孟母三迁只为寻找最优的成长环境,在此置换购买学区房,给孩子更好的教育。
本案位于杭州西湖区的黄金学区,业主有两个孩子,老大已经到了上小学的年纪,老二还在学龄前。新家选址在了一所中学的隔壁,窗外便能看见学校的操场,听见校园里朗朗读书声和体育课堂玩乐的声音。
业主“身兼数职”不仅是服装工作室主理人,同时也是一家绘本馆的主理人。“不给自己设限"的生活理念也延续到了对孩子的教育当中。她希望自己的家也可以充满乐趣,培养孩子们对生活的热爱,激发探索求知欲。
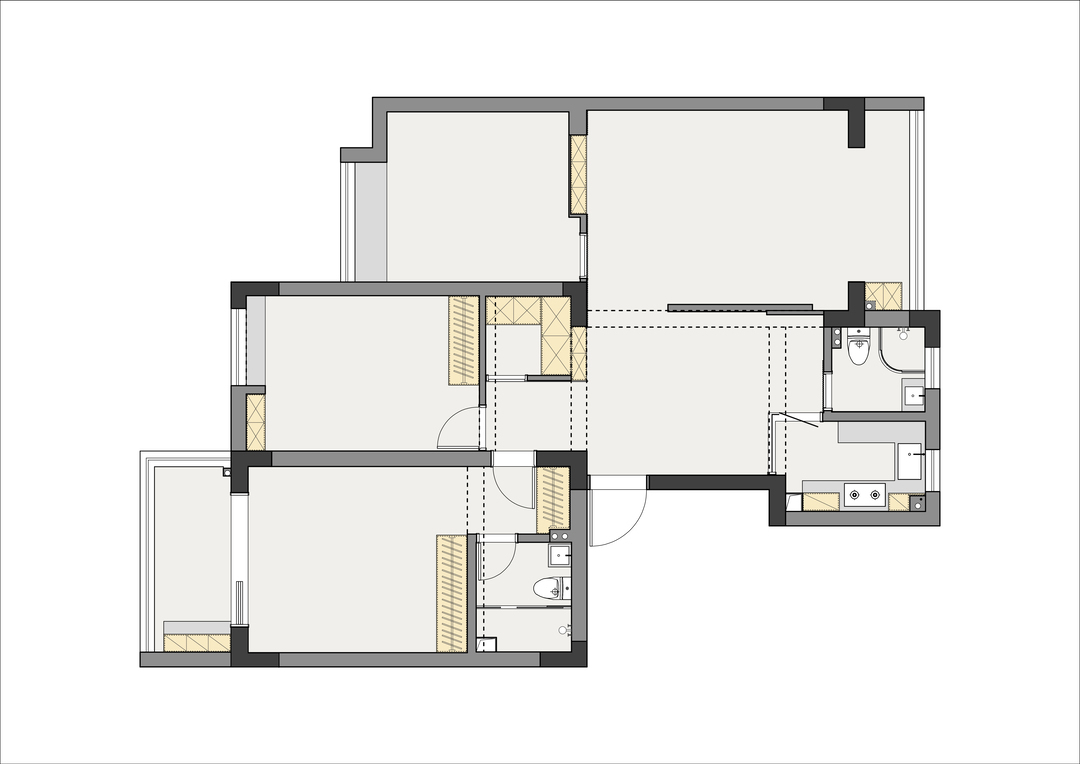
改造前屋内现况
◆原结构存在的问题:
1.餐厅比较拥挤,空间不通透。
2.卧室飘窗较高,难以利用。
3.厨房的玻璃隔断把杂乱感暴露得一览无遗。
◆优化后的变动:
1.将鞋柜、餐边柜(水吧)、冰箱组合至同一区域,充分利用空间。
2.客餐厅布局,选用模块沙发,赋予空间自由性。
3.儿童房上下床设计满足两个小孩的玩耍、休息、学习,增添趣味。
4.对次卧飘窗、客厅、餐厅、儿童房的墙体进行了利用。
5.收纳的极致利用,考虑到3代人10年左右的生活使用。
穿过城市的繁华
便抵达这个风景独特的住宅
游走其中
感受整个屋子带来的优雅
保留法式精致高贵的细节
整体以棕色为温暖基调
经典木色与白色为辅
融入金属、岩板来增添古堡般复古气质
隔墙打开后
光线得到自由延展
充满屋子的各个角落
通透性增加
时刻观察孩子们的动态
童年是短暂的
我们希望记录孩子的成长轨迹
设置荣誉墙展示区域
所有奖状和绘画作品都得到摆放
激发儿童的想象力
给予肯定、关注
生活是一朝一夕的烟火
孩子们弹着琴唱着歌
屋内洋溢着欢声笑语
温馨相伴
浸透每一颗心灵
儿童房是全屋采光最佳处
书柜半遮半掩
一个小小身影若隐若现
目光所及
是愉快是欢乐
客厅没有进行过多填充
仅仅放置了沙发和地毯
释放更多空间供儿童玩耍活动
落地模块沙发布局
是为了让空间更加自由
挂画墙替代了电视背景
活动式吊件为日常挂画提供便利性
收集着业主的审美
投影足以满足家庭观影需求
画是每个居住者内心的映射
复古与现代元素碰撞
正如屋主人一般
优雅又开朗
包容有度
书流动在角角落落
营造自主学习氛围
软木灵感墙是日常提升和创作的背景
审美与想法需要时刻记录
格栅线条让墙面有了层次
巧妙地隐藏着次卧的房门
主卧延续棕色色调
复古橘红与黄铜的碰撞
一处点睛之笔
营造个性活泼的调性
夜里月下
缓缓响起的爵士乐
小酌一杯吧
偶尔的微醺也是一种不错的生活体验
梳妆台、收纳盒
多种功能置入同一柜子中
完善空间使用机能
随时保持整洁状态
上下床形式
是儿童房的趣味表达
攀爬墙、吊环
可以锻炼手脚协调和敢于尝试的勇气
在明媚的环境中成长
给予她们快乐的童年
步梯的形式
粉色扶手和围栏
给处于探索阶段的幼儿提供安全性
收纳区域扩大
步梯和书架
收录了儿童大部分书籍和小玩具
相关案例推荐
向以设计
设计师相关作品

粤公网安备 44010602000156号