前言:
									有的人在沸腾的交往中
才能辨认他的自我
有的人却只有在宁静的独处中
才能辨认他的自我
									
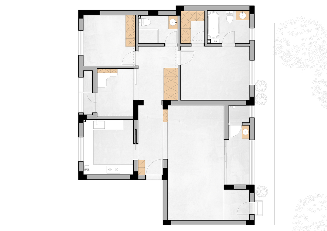
◆原结构存在的问题:
1.厨房空间较宽敞,空间没得到合理的运用,功能较少,空间孤立。
2.过道占比过多,形成空间上的浪费,导致其他区域较拥挤。
3.两个卫生间空间都比较小,且不太适合业主独居使用,另外一个利用率不高。
4.储物分散,空间没有松弛感和流通感。
◆优化后的变动:
1.开放式厨房,L形橱柜保证了落地窗的完整性,置入吧台功能,便于吃简餐。
2.把阳台纳入客厅空间,采光得到最大限度释放,地台成为健身区域。
3.置入斜墙,重新规划过道空间,分出衣帽间、台盆、家政区域。
4.主卧更改了入门方向,让客厅、餐厅、主卧以一条生活轴线展开,设计了洄游路线,动线合理化。
5.卫生间合二为一,实现了四分离,规划洗衣区域,使用更便捷。
空间模拟图
第一次去现场
“家”的定义
不在于排场和面积
更多的是心灵和身体的双重归属
回家吧
享受这一刻的美好时光
过道的尽头是什么呢?
由大到小逐渐变化的走廊
暗藏着未知感
以有形的几何体为主题
展开叙述
												 北欧
															
														
															
																自然风
															
														
															
																储物隔板
															
														
															
																日式
															
														
															
																现代简约
															
														
															
																橱柜
															
														
															
																瓷砖
															
														
															
																厨房
															
														
															
																开放式厨房
															
														
															
																原木
												
													
														
															
																北欧
															
														
															
																自然风
															
														
															
																储物隔板
															
														
															
																日式
															
														
															
																现代简约
															
														
															
																橱柜
															
														
															
																瓷砖
															
														
															
																厨房
															
														
															
																开放式厨房
															
														
															
																原木
															
														
													
												
											
打开厨房空间
置入吧台
满足日常早餐需求
水槽向心式布局
创建人与人沟通的生活场景
												 北欧
															
														
															
																自然风
															
														
															
																储物隔板
															
														
															
																日式
															
														
															
																现代简约
															
														
															
																橱柜
															
														
															
																厨房
															
														
															
																开放式厨房
															
														
															
																原木
												
													
														
															
																北欧
															
														
															
																自然风
															
														
															
																储物隔板
															
														
															
																日式
															
														
															
																现代简约
															
														
															
																橱柜
															
														
															
																厨房
															
														
															
																开放式厨房
															
														
															
																原木
															
														
													
												
											
清晨一杯香醇的咖啡
一个简单的早点
感受一个人在静谧的时光里
细数那些被忙碌所忽略的小美好
L型台面
保证落地窗的完整性
												 北欧
															
														
															
																自然风
															
														
															
																日式
															
														
															
																油烟机
															
														
															
																现代简约
															
														
															
																烤箱
															
														
															
																橱柜
															
														
															
																厨房
															
														
															
																嵌入式家电
															
														
															
																原木
												
													
														
															
																北欧
															
														
															
																自然风
															
														
															
																日式
															
														
															
																油烟机
															
														
															
																现代简约
															
														
															
																烤箱
															
														
															
																橱柜
															
														
															
																厨房
															
														
															
																嵌入式家电
															
														
															
																原木
															
														
													
												
											
充足的收纳空间
是对生活的考量
随着未来家庭成员的增加
尽可能满足未来几口人的使用需求
												 绿植
															
														
															
																地板
															
														
															
																灯具
															
														
															
																北欧
															
														
															
																客厅
															
														
															
																自然风
															
														
															
																日式
															
														
															
																现代简约
															
														
															
																瓷砖
															
														
															
																窗帘
															
														
															
																原木
												
													
														
															
																绿植
															
														
															
																地板
															
														
															
																灯具
															
														
															
																北欧
															
														
															
																客厅
															
														
															
																自然风
															
														
															
																日式
															
														
															
																现代简约
															
														
															
																瓷砖
															
														
															
																窗帘
															
														
															
																原木
															
														
													
												
											
阳台纳入客厅空间
采光最大限度释放
温暖舒适的氛围里
静静感知空间、光影、自然和岁月的美
1楼为防潮层和车库
从阳台掠过
经常有一种居住在溪边的错觉
												 沙发墙
															
														
															
																地毯
															
														
															
																北欧
															
														
															
																客厅
															
														
															
																自然风
															
														
															
																沙发
															
														
															
																日式
															
														
															
																饰品
															
														
															
																现代简约
															
														
															
																原木
												
													
														
															
																沙发墙
															
														
															
																地毯
															
														
															
																北欧
															
														
															
																客厅
															
														
															
																自然风
															
														
															
																沙发
															
														
															
																日式
															
														
															
																饰品
															
														
															
																现代简约
															
														
															
																原木
															
														
													
												
											
书墙以开放格为主
方便经常取用
深色体块错落分布
视觉上更耐人寻味
白板上
算式、文字、图案排列组合
是一种备忘
是一种推演
												 沙发墙
															
														
															
																地毯
															
														
															
																北欧
															
														
															
																客厅
															
														
															
																自然风
															
														
															
																沙发
															
														
															
																日式
															
														
															
																饰品
															
														
															
																现代简约
															
														
															
																原木
												
													
														
															
																沙发墙
															
														
															
																地毯
															
														
															
																北欧
															
														
															
																客厅
															
														
															
																自然风
															
														
															
																沙发
															
														
															
																日式
															
														
															
																饰品
															
														
															
																现代简约
															
														
															
																原木
															
														
													
												
											
												 绿植
															
														
															
																地板
															
														
															
																灯具
															
														
															
																北欧
															
														
															
																客厅
															
														
															
																自然风
															
														
															
																沙发
															
														
															
																日式
															
														
															
																现代简约
															
														
															
																窗帘
															
														
															
																原木
												
													
														
															
																绿植
															
														
															
																地板
															
														
															
																灯具
															
														
															
																北欧
															
														
															
																客厅
															
														
															
																自然风
															
														
															
																沙发
															
														
															
																日式
															
														
															
																现代简约
															
														
															
																窗帘
															
														
															
																原木
															
														
													
												
											
窗外的绿植郁郁葱葱
一年四季都伴有动态美的窗景
称之为“小森林”般的家也不为过
												 沙发墙
															
														
															
																地毯
															
														
															
																灯具
															
														
															
																北欧
															
														
															
																客厅
															
														
															
																自然风
															
														
															
																沙发
															
														
															
																日式
															
														
															
																饰品
															
														
															
																现代简约
															
														
															
																窗帘
															
														
															
																原木
												
													
														
															
																沙发墙
															
														
															
																地毯
															
														
															
																灯具
															
														
															
																北欧
															
														
															
																客厅
															
														
															
																自然风
															
														
															
																沙发
															
														
															
																日式
															
														
															
																饰品
															
														
															
																现代简约
															
														
															
																窗帘
															
														
															
																原木
															
														
													
												
											
顶面预留了投影幕布的位置
随时开启家庭影院模式
保留承重柱
拆除之后的镂空处
让两个小阳台成为一体空间
每个场域都是互相联系的
空间与空间之间通过光影形成边界
												 餐椅
															
														
															
																餐厅
															
														
															
																灯具
															
														
															
																餐桌
															
														
															
																北欧
															
														
															
																自然风
															
														
															
																日式
															
														
															
																饰品
															
														
															
																现代简约
															
														
															
																瓷砖
															
														
															
																原木
												
													
														
															
																餐椅
															
														
															
																餐厅
															
														
															
																灯具
															
														
															
																餐桌
															
														
															
																北欧
															
														
															
																自然风
															
														
															
																日式
															
														
															
																饰品
															
														
															
																现代简约
															
														
															
																瓷砖
															
														
															
																原木
															
														
													
												
											
餐厅
木色的温润质感包裹整个空间
斜墙与轨道灯
用线条构成联系
												 餐椅
															
														
															
																餐厅
															
														
															
																灯具
															
														
															
																餐桌
															
														
															
																北欧
															
														
															
																自然风
															
														
															
																日式
															
														
															
																饰品
															
														
															
																现代简约
															
														
															
																原木
												
													
														
															
																餐椅
															
														
															
																餐厅
															
														
															
																灯具
															
														
															
																餐桌
															
														
															
																北欧
															
														
															
																自然风
															
														
															
																日式
															
														
															
																饰品
															
														
															
																现代简约
															
														
															
																原木
															
														
													
												
											
												 绿植
															
														
															
																餐厅
															
														
															
																地板
															
														
															
																餐桌
															
														
															
																灯具
															
														
															
																北欧
															
														
															
																自然风
															
														
															
																日式
															
														
															
																饰品
															
														
															
																现代简约
															
														
															
																原木
												
													
														
															
																绿植
															
														
															
																餐厅
															
														
															
																地板
															
														
															
																餐桌
															
														
															
																灯具
															
														
															
																北欧
															
														
															
																自然风
															
														
															
																日式
															
														
															
																饰品
															
														
															
																现代简约
															
														
															
																原木
															
														
													
												
											
空间之间的无缝过渡
兼顾功能性和舒适性
												 餐厅
															
														
															
																灯具
															
														
															
																装饰画
															
														
															
																北欧
															
														
															
																自然风
															
														
															
																日式
															
														
															
																现代简约
															
														
															
																瓷砖
															
														
															
																原木
												
													
														
															
																餐厅
															
														
															
																灯具
															
														
															
																装饰画
															
														
															
																北欧
															
														
															
																自然风
															
														
															
																日式
															
														
															
																现代简约
															
														
															
																瓷砖
															
														
															
																原木
															
														
													
												
											
黑白建筑摄影挂画
象征着一种纯粹的精神内涵
												 地板
															
														
															
																装饰画
															
														
															
																日式
															
														
															
																现代简约
															
														
															
																饰品
															
														
															
																卧室
															
														
															
																床头柜
															
														
															
																原木
															
														
															
																北欧
															
														
															
																灯具
															
														
															
																自然风
															
														
															
																床品
															
														
															
																床
												
													
														
															
																地板
															
														
															
																装饰画
															
														
															
																日式
															
														
															
																现代简约
															
														
															
																饰品
															
														
															
																卧室
															
														
															
																床头柜
															
														
															
																原木
															
														
															
																北欧
															
														
															
																灯具
															
														
															
																自然风
															
														
															
																床品
															
														
															
																床
															
														
													
												
											
利用木框结构的形式
把房门融入到了背景当中
弱化门(通往卫生间)的存在感
												 灯具
															
														
															
																北欧
															
														
															
																自然风
															
														
															
																日式
															
														
															
																饰品
															
														
															
																床品
															
														
															
																现代简约
															
														
															
																床
															
														
															
																床头柜
															
														
															
																卧室
															
														
															
																原木
												
													
														
															
																灯具
															
														
															
																北欧
															
														
															
																自然风
															
														
															
																日式
															
														
															
																饰品
															
														
															
																床品
															
														
															
																现代简约
															
														
															
																床
															
														
															
																床头柜
															
														
															
																卧室
															
														
															
																原木
															
														
													
												
											
插画
业主最喜欢的一个艺术家的作品
简约线条、精致的细节
勾勒出家的品味
												 地板
															
														
															
																装饰画
															
														
															
																北欧
															
														
															
																自然风
															
														
															
																日式
															
														
															
																床品
															
														
															
																饰品
															
														
															
																现代简约
															
														
															
																床
															
														
															
																卧室
															
														
															
																窗帘
															
														
															
																原木
												
													
														
															
																地板
															
														
															
																装饰画
															
														
															
																北欧
															
														
															
																自然风
															
														
															
																日式
															
														
															
																床品
															
														
															
																饰品
															
														
															
																现代简约
															
														
															
																床
															
														
															
																卧室
															
														
															
																窗帘
															
														
															
																原木
															
														
													
												
											
简洁利落的日夜帘
可按需切换白天、夜晚两种不同模式
软装搭配藤编与柚木
风格趋于温暖自然
夏夜里
知了在窗外不知疲倦地唱着歌儿
风扇一圈又一圈地旋转着
承载着童年的记忆碎片
相关案例推荐
 
							向以设计
设计师相关作品
 
 
 编辑精选
编辑精选 
												
													
														
															
																 
												
													
														
															
																 
												
													
														
															
																 
												
													
														
															
																 
												
													
														
															
																 
												
													
														
															
																 
												
													
														
															
																 
												
													
														
															
																 
												
													
														
															
																 
												
													
														
															
																 
												
													
														
															
																 
												
													
														
															
																 
												
													
														
															
																 
												
													
														
															
																 
												
													
														
															
																 
												
													
														
															
																 
												
													
														
															
																 
												
													
														
															
																 
												
													
														
															
																 
                                                     
                                                         
                                                     
                                                         
                                                     
                                                         
                                                     
                                                         
                                                     
                                                     
                                                         
											
										 
											 
											 
											 
											 
											 
														 
														 
														 
														 
														 
				 
                
 粤公网安备 44010602000156号
粤公网安备 44010602000156号