前言:
									理想世界的定义
是多元化的
容纳不同、自由的灵魂
享受空间提供的舒适
疗愈内心
									
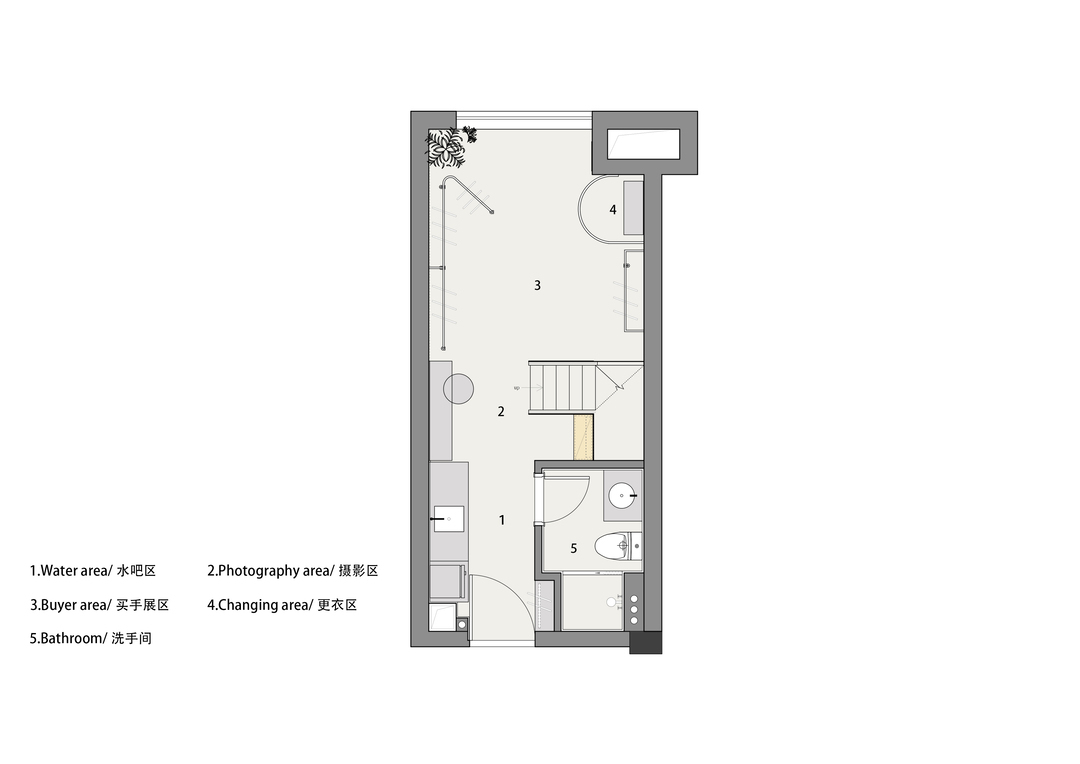
										工作室入口
										
											
											
								
							
								
									
								
							
								
									SHUWEN乌托邦服装工作室
围绕「理想国度」的概念而成立
一个享受美好、享受得体的地方
集服装咖啡、形象优化、体验与授课、艺廊为一体的空间
基于品牌文化定义
随性与重塑
亲和与温润
兼顾不同功能的商业空间
										买手展区
										
											
											
								
							
								
									陈列被赋予不同的表达方式
精细的钢制构件微妙地弯曲
舞动在空间内
设置的咖啡角
可以消遣停留
可以是选品后拍照的背景
洒脱的阳光
给予体验者勇气
站在镜前
焕然一新的自己
内心洋溢着欣喜
在室内感受季节的变化
在与自然融为一体的精神世界里
温暖悠长的时光
可抚平生活的褶皱
弧形的设计语言延续到试衣间
金属材质的柔性表达
对立统一
森林绿壁灯
以一种撞色的形式介入
增添电影般复古色调
不完全对称式空间
一种视觉平衡的美
人的活动轨迹
成为关注的聚焦点
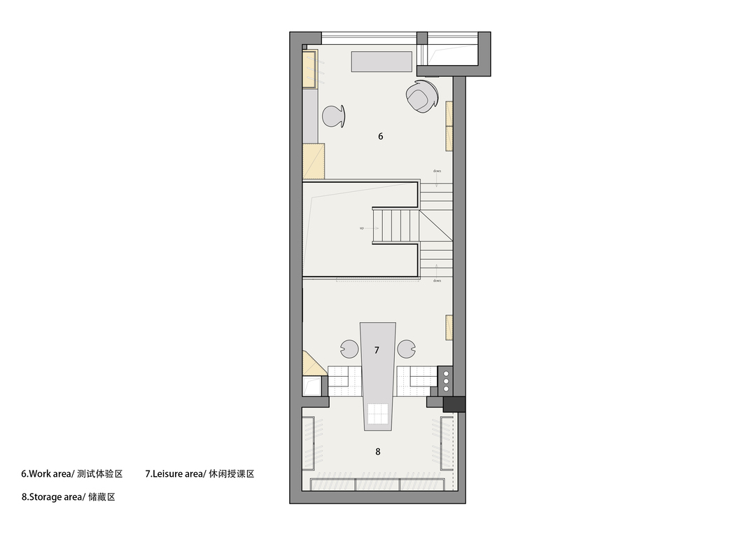
										测试体验区
										
											
											
								
							
								
									综合测试、体验、授课、展示
开启新的穿搭体验
场景修辞
赋予服装艺术
日常营业状态在这里显露
穿搭的秘密
等待我们去发掘
这些特立独行的人
也是灵感的源泉
										休闲授课区
										
											
											
								
							
								
									
								
							
						作为一种特定的时尚符号
服装并非孤立的存在
在具体可感的场景烘托里
显现出符号背后的故事
再生与可循环的材料应用
瑜伽砖也是一种不错的替代
既是座位
也是踏步的一部分
相关案例推荐
网友评论
						
						
						
						
                        
						
						 
							向以设计
设计师相关作品
 
 
 
												
													
														
															
																 
												
													
														
															
																 
												
													
														
															
																 
												
													
														
															
																 
												
													
														
															
																 
												
													
														
															
																 
												
													
														
															
																 
												
													
														
															
																 
												
													
														
															
																 
												
													
														
															
																 
												
													
														
															
																 
												
													
														
															
																 
												
													
														
															
																 
												
													
														
															
																 
												
													
														
															
																 
												
													
														
															
																 
												
													
														
															
																 
												
													
														
															
																 
												
													
														
															
																 
												
													
														
															
																 
                                                     
                                                         
                                                     
                                                     
                                                         
                                                     
                                                         
                                                     
                                                         
                                                     
											
										 
											 
											 
											 
											 
											 
														 
														 
														 
														 
														 
				 
                
 粤公网安备 44010602000156号
粤公网安备 44010602000156号