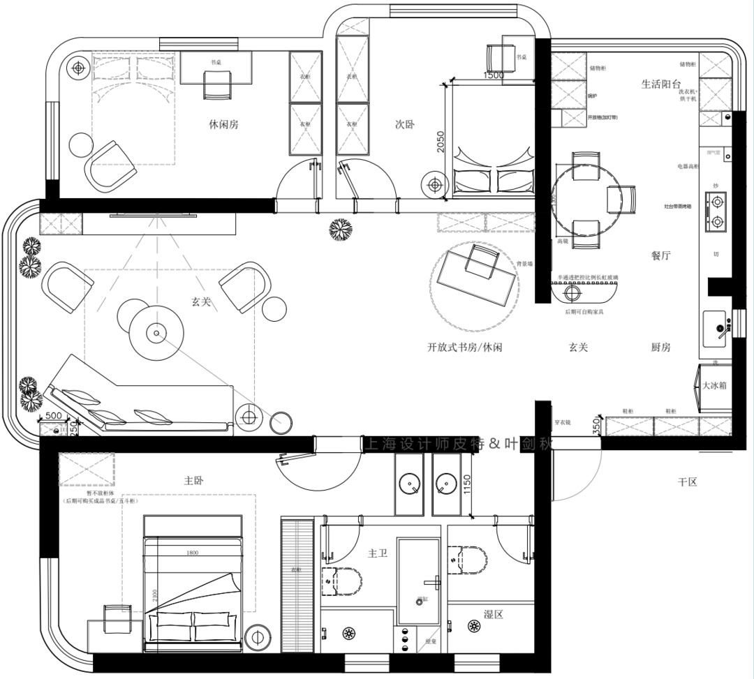
前言: 本案是一套宁静温馨的现代简约住宅案例。对生活喜欢简单舒适,无需过多色彩,喜欢感觉简洁空间,想要主卧有浴缸,开放式厨房和慵懒舒适公区空间。
相关案例推荐
网友评论

皮特
前言: 本案是一套宁静温馨的现代简约住宅案例。对生活喜欢简单舒适,无需过多色彩,喜欢感觉简洁空间,想要主卧有浴缸,开放式厨房和慵懒舒适公区空间。
相关案例推荐
皮特