前言:
本案位于上海市宝山区宝山区杨鑫佳苑,套内100m²屋主新房设计中,希望有大胆的撞色元素,整体现代风,前者前提下融合一些法式元素在里面。
屋主需求:
①几乎无偶住需求,对于居家生活非常看重,喜欢看书;
②风格上更倾向于简单、干净,法式,现代有一些撞色;
③餐厅空间过小,原始三房都比较小最不满意点;
④格局布置上,设计师尽情发挥,但需要需要独立书房,满足日常工作需求,全屋收纳要多;
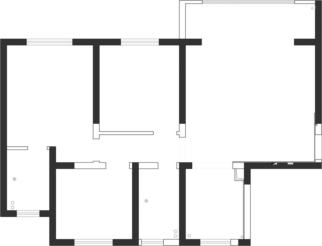
原始户型问题:
1、餐厅空间过小:原始客厅与餐厅处于同一空间,导致客厅与餐厅空间都过小。
2、卧室空间较小:三个卧室面积很小,利用率较差,形成了狭长走道空间。
3、主要活动区域的家居动线过分单一,使用感,空间感双不足。
改造与优化:
1、拆除原始次卧,作为书房归纳于主卧,形成一个套房,使用起来更加舒适。
2、拆除原始卫生间隔墙,调整位置之后使用更加舒适。
3、改变厨房原始布局”u”形布局空间更大使用更舒适。
4、重塑卧室门洞位置,扩大主卧空间,原始次卧变成衣帽间兼顾书房。
入户,一字型客厅格局,利用体块手法设立玄关柜体,中部镂空方便放置钥匙包包,悬空柜体的设立,不留卫生死角。配色方便采用肤感柜体,营造一个雅致,简洁空间。
客厅区域,得益于餐厅部分的优化,客厅面积变大,采用大胆绿色贝壳沙发,搭配原木地板,置身于深林之中,是不从众,是一种情愫。
在原始阳台空间设立卡座的形式,解决原始餐厅过小的同时,日常会客聚餐也轻松满足。在阳光的沐浴下,喝喝咖啡看看书,都是非常惬意的。开放格设立即是书架又是餐边柜。
卡座在木基础上加装软包,体验感满分!配色方面原木搭配金属吊灯,座椅采用茶色亚克力,原木带来生活的自然感,茶色,金属是对于生活的态度。
厨房的整体布局优化之后使用起来非常的方便。同时还是满足厨房区域,拿-洗-切-炒-摆 的最佳顺时针操作方式。高低台的设立是因为懂得生活的不易,鱼肚白的岩板与肤感柜体,平静,且温暖。
通过木格栅隐形门走道,来到作为休息空间的主卧套房。这里为了避免原始墙带空间分割感,设立端景柜,增加整屋储物空间同时,也可以作为入门端景。
来到主卧,采用整体木饰面,还原自然素雅感,设立灯带,以及嵌入式筒灯,适用各种生活状态。
衣帽间的收纳部分主要是嵌入式定制柜,这里也是全屋收纳主力。同时也可以满足办公需求,日常梳妆,也是不错的吆~光线通过纱帘,在室内留下了痕迹,记录这家的点点滴滴。
相关案例推荐
云漫设计
设计师相关作品

粤公网安备 44010602000156号