前言: 本案位于上海徐汇区,业主是一对90后的小夫妻,想整空间开阔,精致温馨一些,做为2个人的婚房。
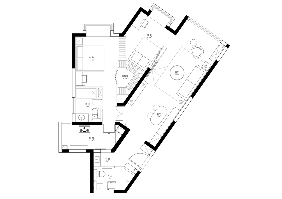
原始户型问题:
1、进门左手边异形储藏室太小,不实用,也导致次卫的空间狭小。
2、厨房的进门对着主卧室门,不是很舒适,浪费了空间的利用率。
3、主卧的衣帽间太小,收纳不够。
改造与优化:
1、入户次净衣区,入户的外套包包有单独的收纳放置。
2、厨房进门改在了进门的左手边,避免了和卧室门的对撞,原有储物间和次卫打通做成了一个卫生间,这里竟满足了卫生间的基本需求,也做了洗衣区的功能。把空间使用变最大化。
3、主卧室的布局原衣帽间收纳不足,重新调整更衣室布局,增加衣物的收纳柜。
入户门厅地面的马赛克瞬间抓住眼球。黑白花形马赛克铺就的地面,每一块的拼接都独具匠心。
墙面的圆弧石膏线设计,不仅柔化了空间的棱角,更赋予了墙面灵动的美感,仿佛是岁月留下的温柔笔触。两边特别设计的帽子形状壁灯,散发着暖黄的光晕,为门厅营造出温馨而神秘的氛围,它不仅是照明工具,更是空间里独特的装饰艺术品,迎接每一次的归家与启程。
客厅沙发背景与餐厅背景相连的护墙板,是空间的视觉焦点。隐藏其后的反光灯带,在夜晚亮起,为空间铺上一层温暖的滤镜,营造出慵懒而浪漫的氛围,让家人相聚的时光更加温馨。
客厅与餐厅采用大地砖通铺,让整个空间视野开阔。暖色调的大地砖,为空间注入温馨与舒适,与门厅的马赛克形成巧妙的过渡,既保留了各自的特色,又在整体上和谐统一。
餐厅的卡座软包采用复古绿,那浓郁而深邃的色彩,散发着迷人的魅力。搭配黑色餐桌,形成鲜明的对比,时尚又稳重。两侧摆放的两个中古餐椅,独特的造型和细腻的质感,为用餐空间增添了一份艺术氛围。一家人围坐在这里,享受美食,畅谈生活,温馨又惬意。
主卧室床头背景的护墙板加软包,选用卡其色的温柔色系,营造出温馨而宁静的睡眠氛围。护墙板后的一圈反光灯带,在夜晚悄然亮起,为卧室增添了一份柔和的光影,让疲惫的身心在这温暖的光晕中得到舒缓。深色胡桃木的床头柜和梳妆台,与卡其色的背景形成鲜明对比,沉稳的木质纹理彰显着品质与格调。
主卫的地面同样采用马赛克铺贴,与复古的整体风格相呼应。墙面的手工砖上下分色设计,下面的中古绿沉稳大气,中间的黑色腰线作为点缀,分割出层次感,上面的浅黄色系则增添了一份明亮与柔和,让主卫也成为一个充满艺术氛围的私密空间。
多功能房,是这个家的一大亮点。可移动的电视设计,让空间拥有了更多的可能性。当移门全部打开,多功能房与客厅融为一体,瞬间开阔的空间可以满足家庭聚会、亲子活动等各种需求,当需要休息时,轻轻关上移门,它就变成了一个安静舒适的封闭式房间,无论是作为书房还是客房,都能完美胜任。
相关案例推荐
云漫设计
设计师相关作品

粤公网安备 44010602000156号