前言:
生活与家的温暖,家是什么样子?舒适,放松,随意,自然的一个生活舞台。
让自己成为主角,让自己的生活多姿多彩。
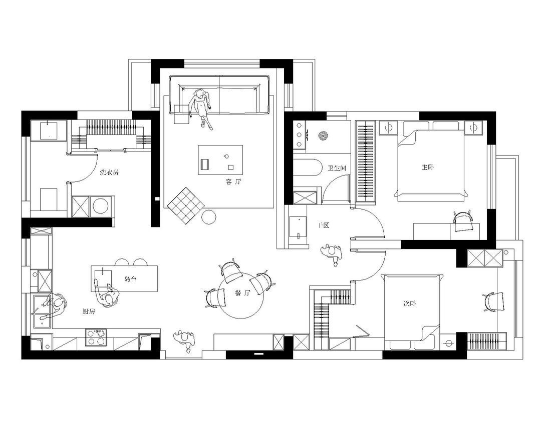
客厅,原因,客厅窗户半高墙,客厅面宽偏窄,所有尝试沙发朝窗户区摆放,中间摆放一个小型玻璃茶几,配一张单椅,满足座椅需求,同时整体客厅动线开阔些,铺设一张地毯,聚会时可以席地而坐。
20公分高度的洞石地台延伸整个客厅的长度,增加摆放书记区域,上方装饰了些金属层板,摆放小型装饰品,氛围满满。
5公分高度的洞石地台延伸整个客厅的长度,做了一个嵌入式壁炉,可摆放蜡烛,香薰,上方挖了两个装饰洞,与后面的空间呼应。
采用电动亚麻纱窗帘,增加高级质感,透光氛围感满满。
开放厨房,采用超薄油烟机,用门板包住两边有烟道煤气包馆的立柱,起到对称。
厨房采用大小独立单槽,大单水槽平时刷洗锅具比较方便岛台区留了一个独立水槽,平时洗水果,边上增加个嵌入饮水机与柜门齐平。
冰箱
简约
洗碗机
法式
置物架
油烟机
烤箱
瓷砖
橱柜
厨房
壁柜
开放式厨房
开放式厨房,岛台延伸台面,平时备餐,做饭时与家人的互动,都可以在岛台,增加厨房操作台面,也同时预留了回流动线空间。
厨房/吊柜与油烟机齐平,避免操作时撞头,下柜嵌入式洗碗机,下柜采用抽屉式,厨房便捷。
餐区/长条餐边柜,增加储物空间,下方鞋柜,台面也便于增加出操作台面,可以摆放咖啡机,进门包包钥匙摆放。
干区/下方石材一分为二,一部分给到客厅做嵌入壁炉,一部分给到干区,干区墙面无贴砖,下方石材避免了台盆潮湿带来的困扰,预留出小部分储物
干区/右边采用墙体 Z字砌墙,下方给到湿区马桶间储物,上方内凹储物,摆放生活洗漱用品,门板搭配镜子使用,避免镜柜对卧室门。
卫生间,采用干湿分离,独立淋浴房,下无挡水,湿区做下层排水,长条地漏,便于排水走向。
主卧/黑色软包床架,选择俩侧内收样式,两边空间多出来可以满足卧室采用1米8床架,也增加了两边动线。
主卧,选了同色系壁灯,丝绸类窗帘。
次卧/打通阳台区,两侧称重柱子与阳台做了储物柜呼应,窗台区做抽拉梳妆台,窗户采用百叶罗马帘结合搭配,避免睡眠光线问题,也保留美观。
次卧,
次卧/步入式衣帽间,采用金属置物架类型,增加储物空间,采用双开百叶门,既好看,又实用。
相关案例推荐
陈小汝
设计师相关作品

粤公网安备 44010602000156号