前言: 梁小姐夫妻养有两只可爱的猫咪,希望空间宽敞些;卫生间要有干湿分离,厨房增加岛台功能。
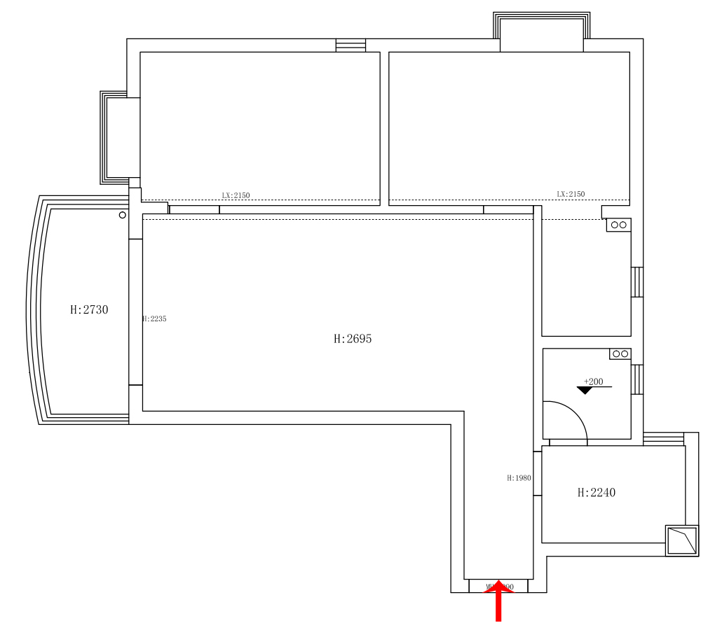
装修前:
1、阳台隔断阻挡了大部分采光和空间利用;
2、玄关狭小昏暗;
3、需要从厨房进入卫生间;
4、卫生间面积小,无法满足干湿分离。
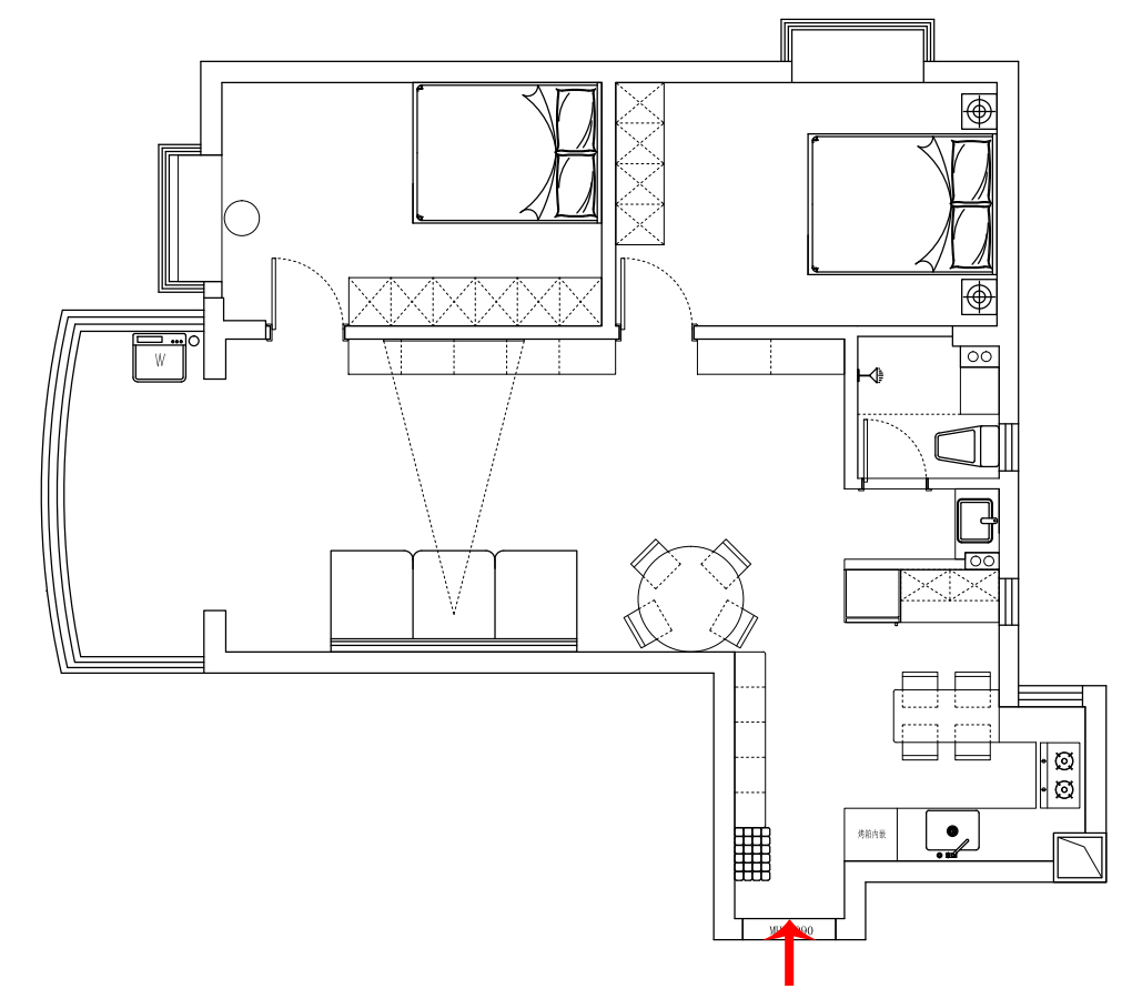
装修后:
1、阳台拆除隔断纳入室内;
2、结合原卫生间打造开放式厨房+吧台;
3、原主卧与次卧位置调换;
4、原衣帽间区域改为卫生间,并做干湿分离。
玄关侧边添置极窄铁皮柜,既能轻松容纳两人的鞋物收纳需求,又不会破坏窄玄关本就珍贵的通透感。
侧边墙上粘贴全身镜,出门前能快速检查着装,为一天的出行增添自信,鞋柜上方墙面则安装小块的洞洞板,用来悬挂小物件,保持整洁清爽。
厨房地面用花砖巧妙划分功能区域,搭配整体的风格色调,为空间注入几分灵动活泼感;深木色高柜嵌入了烤箱,还摆放着一些瓶瓶罐罐,兼具收纳与装饰功能。
开放式的布局中间加入岛台设计,既能增加厨房的操作台面,又能当作临时的聚餐区域,上方悬挂的黄色吊灯也为厨房增添了一抹亮色。
去除不必要的隔断后,整屋通铺米白色地砖,通透大气的家让猫咪能够自由奔跑;顶面未做压层高的吊顶,转而选择明装轨道灯,让家充满独特而温馨的格调。
黑色皮质沙发带着岁月沉淀的质感,搭配几件简约的深色系家具,既复古又舒适;一旁亮眼的绿色单人椅,似是从旧时光里撷取的鲜活色彩,为空间注入灵动。
电视背景采用格子柜搭配编织筐的组合,还有特意为猫咪预留睡眠区,在顶上射灯的烘托下,轻松打造出一个兼具实用性与趣味性的温馨空间。
灯光轻柔洒在质朴自然的小圆桌上,为业主营造了温馨惬意的用餐氛围;墙面的木质搁架搭配复古三角时钟,为餐厅注入了艺术感和生活气息。
餐厅对面专门规划为猫咪生活区域,自然营造人宠和谐的居家氛围,一旁还布置了展示柜,用来陈列各类小摆件,让整个空间满是生活情趣。
摒弃繁杂装饰,空间以白色系为基底,搭配温润的木色家具,营造出整洁静谧的睡眠氛围。
整墙衣柜采用白色与深棕色双拼,搭配金色拉手,在为居室提供收纳空间的同时,也带来层次丰富且独特的视觉效果。
床尾的飘窗处打造成梳妆桌,角落布置置物架,摆放着各类瓶瓶罐罐,充分利用空间为居者提供一个舒适明亮的梳妆环境。
墨绿色与奶油色的碰撞,为卫生间勾勒出静谧深邃的独特质感;外置洗漱区实现了空间的干湿分离,搭配深色洗漱柜,从细节里能让人悄然感受到浪漫的复古情怀。
在淋浴区墙面开凿两层壁龛,收纳沐浴用品,业主还在窗边精心搭配小盆栽,营造了文艺又清爽的沐浴氛围。
▲(客厅装修前后)
客厅与阳台之间没有了隔断后,整个客餐厅明显更加宽敞明亮。
▲(主卧装修前后)
去除床头那不必要的小窗户,避免睡眠时光线渗入,影响睡眠。
▲(主卧装修前后)
充分利用墙面和飘窗的空间,打造大型衣柜和梳妆台,保持卧室的整洁美观。
▲(厨房装修前后)
将厨房改为开放式布局,下厨空间通透舒适,也增加了互动性。
▲(卫生间装修前后)
老式的卫生间没有收纳,也没有干湿分离,改造后的卫生间兼具了美观与实用性。
相关案例推荐
拓界空间设计
设计师相关作品

粤公网安备 44010602000156号