前言: 业主养了两只可爱的猫咪,喜欢有个性的家;希望空间能够宽敞显大,想要有个衣帽间。
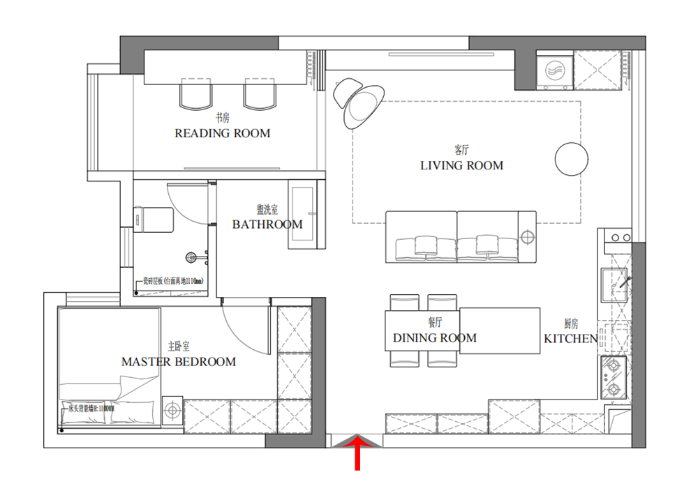
装修前:
1、入户没有独立的玄关功能;
2、没有多余房间打造衣帽间;
3、卫生间没有干湿分离。
装修后:
1、将厨房隔断拆除,客餐厨一体化空间;
2、移动主卧门洞位置,打造开放式衣帽区;
3、缩小次卧改书房,利用玻璃推拉门做隔断;
4、利用原次卧,打造干湿分离卫生间。
把原本封闭的厨房彻底打开,与客餐厅连成一片,深灰与米白的冷暖撞色,配上贯穿全场的利落直线条,让时尚的现代家居里透出松弛的生活感。
浅米色软包沙发作为客餐厅的中心点,巧妙地划分不同功能区,也通过材质柔和了柜体的冷硬,巧妙地增强了空间层次感。
深灰色简约落地柜作电视背景,轨道灯烘托出满满高级感,搭配艺术画作与小摆件,瞬间注入生活温度。
以餐岛一体承接沙发后的餐厅功能,既拓展了居家生活形式,也让客餐厨互动更流畅。
岛台底部暗藏的灯带一开启,瞬间消解了柜体的厚重感,为空间注入轻盈灵动的质感。
利用与地板同色系的护墙板作为床头背景墙,暖色氛围灯顺着墙面铺开,柔和了空间的紧凑感,简单的布置既不冗余又为居室注入了几分松弛随性的个人风格。
另一侧是开放式衣帽区,金属挂架+分层置物的设计,把衣物、包包等分类收纳得井井有条,不显杂乱反而带有随性的生活气息。
外置洗漱台采用悬空设计,下方刚好放置猫厕所,实现了空间的高效利用;与室内利用深浅不一的米色小砖铺贴,营造出马赛克的感觉,使空间充满了个性。
相关案例推荐
拓界空间设计
设计师相关作品

粤公网安备 44010602000156号