前言: 当过医生,做过杂志,涉猎电影,还曾远航……平面设计师Tom的职业经历有趣又有料,当他和越越决定上岸回成都定居后,委托七间设计打造久居之家。这个奇奇怪怪的户型,经过七间设计总监陈欢重塑之后,变成了有着居住者个性符号的、同样有趣又有料的家。
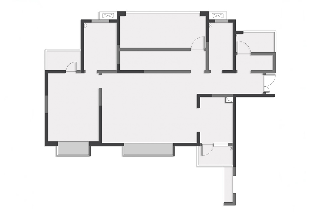
原始户型图
原始结构,除公区和主卧是正常的空间外,其余有可能作为房间的区域都是零碎的,两个狭长过道搭配两个条形阳台,把客厅阻挡得只剩三米多的飘窗单面采光。
平面设计图
拆除进门右手边的过道和阳台的墙体,改造成一个多功能房间,兼顾储物、客房、健身房功能;
拆除更长的过道和阳台的墙体,改造成客厅和西厨,增加的5米落地窗为公共空间打造双采光双通风格局;原本的小横厅一分为二,靠近厨房的部分作为餐厅,另一半则改为老人房,得到一个尺度恰好的完整房间;主卧室外两平米多的阳台不放过,封入室内,变成有一个拥有私密性的小书房;主卫也做了拆分,干湿分区,除了功能区分离后更好用之外,还得到了一个一米二长的衣柜,满足主卧储物需求。
玄关就像一个能量开关,推门而入心情瞬间点亮。
换鞋区、收纳柜、开放式收纳格,利落展开,兼顾实用与美观,业主收藏的玩偶、摆件、香薰、香水,被精心陈列。
客厅的开阔格局是在拆除更长的过道和阳台墙体得到的,重新换窗后的5米落地窗为整个客餐厅公区营造出双采光双通风格局,阔绰的面积还多出一个西厨岛台区。
业主作为影迷,客厅和主卧都都配置了影院系统。
双面操作台置于客厅和茶水吧之间,交互场景更丰富。西厨区的冰箱用来储存水果、冷饮,和中厨的烹饪食材分开收纳,便捷又健康。
全白厨房带来的极简整洁视觉,为有洁癖的业主创造了享受烹饪的惬意环境。
原本的小横厅一分为二,靠近厨房的部分作为餐厅,动线更丝滑。
飘窗台的原始状态被保留,搭配白色百叶帘,日常小坐或聚会又多了一种浪漫可能。
主卧如同一个干净包容的白盒子,把喜欢的多彩元素都和谐地装进来。
在极简白之外,浴室偏偏来了个翻转,暗黑系的主体搭配白色漂浮浴缸,艺术感与仪式感拉满。
相关案例推荐
七间设计
设计师相关作品
编辑精选

粤公网安备 44010602000156号