前言:
本期业主胡女士拥有一个庞大的“八口之家”。夫妻两人拥有两个可爱的女儿,双方父母也都在身边一起生活。
原本胡女士一大家子人是住在一起,但现在二宝年纪慢慢大了上小学了,需要有独立的空间,加上原本的房子对于这个大家族来说确实是拥挤了一点,所以胡女士就在同小区购置了另一套房,这样双方父母各带一个小孩住一套,胡女士和她老公俩人就算是“流动人口”,两边都会居住。
所以胡女士找到我们设计的这套房其实主要是围绕家里父母和小孩子。而我们在对这个家进行设计的时候,就需要把三世同堂、所有年龄层的不同需求全部纳入考虑之中。
新购入的这套房其实不算大,但胡女士告诉我们,家中有非常多模型和酒需要存储摆放,所以收纳、储物空间也是一个设计考虑的重点。这套主要还是学区房,所以书柜和学习区域是强需求……最后她说这个家是要能实现长期居住目标的,所以家里的动线规划一定要合理,让每个人都能便利、自在地生活。
这是一个可供一家老小五口人实现长期居住的设计案例,很适合家里常住人口比较多,且包含多个年龄层的家庭抄作业~接下来就一起看看我们是如何实现的吧~
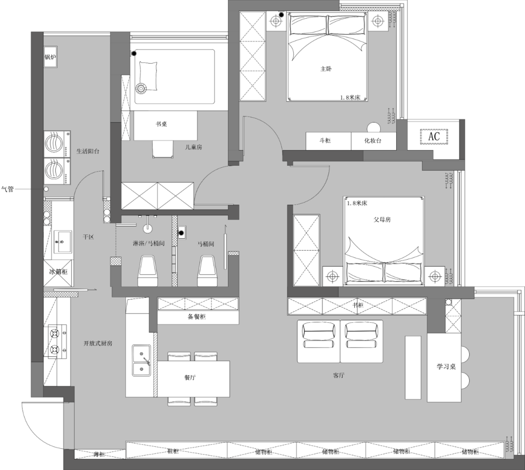
原户型是一个比较方正且也是比较常见的三室一厅,但问题同样也是比较明显的,比如规划的厨房区域过于逼仄、一个卫生间的设置对于这个家庭来说也有些紧张等等……都是需要我们着重设计的点。
改造后户型图一览,可以看到其实整体大的布局没有怎么动,改造着重在厨房和卫生间的区域。
1️⃣ 首先第一步就是拆除墙体将厨房打开做成开放式,运用日式LDK的布局逻辑,使得视觉上的整个餐厨空间就显得比较开阔、宽敞;
2️⃣ 由于家中人口较多,但卫生间又只有一个,所以我们大胆地将卫生间拆开,干区外移,开创式的设计了1.5卫,在现有的空间上实现三分离,并且在淋浴空间增加了马桶 实现了1.5卫,使得早餐早高峰上厕所不拥挤,解放6口人卫生间使用紧张的情况;
3️⃣ 由于要实现长期居住的目标,家中储物空间是一定要留够的。所以我们在能安放柜子的地方都安排了到顶的储物柜,方便胡女士一家日后存放各种生活用品;
4️⃣ 三个卧室的布局都保留了,两个较大的卧室留给胡女士夫妻二人和父母;剩下小一点的则留给小女儿。
入户一个小小的玄关,拆掉原本厨房的墙体之后,进门的空间稍稍宽敞了一点。
入户左侧就是简单的到顶收纳柜,开放格可以随手放置一些钥匙物品等等。同时还放置了一个小独凳,方便日常家里人进出门换鞋使用。
餐厨区大场景来一张。两侧都是到顶的储物柜,满满的安全感~
厨房利用地柜位置用板材向上延伸,不仅使得空间上更美观,同时也利用延伸出来的位置埋了滑轨插座,下面的宽度也见缝插针式地做了小小收纳柜。
餐边柜满足日常储物外,也让小电器有了安身之所。
坐在阳台书桌位置看客餐厅����
从客厅看向餐厨区,视线不受遮挡,家人也可以随心互动~
从餐厅看向客厅区域。
客厅大场景来一张~
整合了电视柜/杂物柜/鞋柜集一体的一整面到顶柜体完美落地,家里有再多物品也不担心啦~
从走廊看向客厅~
沙发背后也是做了一整面的柜体。上半部分是开放格书柜,放置家里人的读物;下半部分则是封闭式柜体,用于放置一些药品文具等小物件。
从厨房看向客厅。当家里人员、物品过多,收纳就成为了重中之重,做好规划,东西再多也不怕杂乱无章。
可以靠头的真皮电动沙发,也是非常适合老年人的,颈部和腿部都能得到支撑。
����
胡女士说,家中男主人和外公日常都有用电脑的需求,所以家中需要尽可能多的书桌。所以在靠近阳台的位置,利用原先阳台门洞的宽度,设计了一张书桌,方便家里人日常办公使用。
透明亚克力卓腿很隐形,不抢占视线,让整个空间看起来更干净。
借用一部分生活阳台的位置,将冰箱和卫生间干区外移。
专门定制的可丽耐长水槽+双水龙头。双水龙头的设计也是照顾到了家里人口较多,高峰期洗漱紧张的问题。
卫生间一分为二,打造两个马桶区。一边搭配的是迷你洗手台。
另一侧则是搭配花洒淋浴,考虑到家里人比较多,在淋浴区还是安排了多一个马桶,完美囊括所有的使用需求。
改造前后对比,床头的窗户考虑到风水所以直接封闭了。
卧室都比较小,所以就以满足基本的休息及储物为主要目标。
氛围感满满的床头灯~
儿童房大场景来一张~坚持长期主义女儿的房间没有做传统的榻榻米床,而是选择了实木排骨架床。
胡女士最开始就特别提出二宝的房间一定要有个书桌,所以咱们当然是要安排上!书桌也是选择活动学习桌,让这个房间后期能拥有更多样的变化。
满满一墙的玩偶,少女心体现得淋漓尽致~
相关案例推荐
住三设计
设计师相关作品

粤公网安备 44010602000156号