前言: 本案屋主一一找到OO#,希望能帮她设计打造她理想中的居所。现目前这个家是她一人独居,但偶尔父母和外婆会过来小住,所以需要有足够的休息空间,另外考虑到屋主未来会面临结婚生子,所以这个家的整体打造也需要能灵活适应这点;第二屋主特别提出这个家一定要有吧台和大餐桌,以此方便朋友来家聚会玩乐;第三对于屋主个人来说,她希望这个家中能有一个空间能满足她日常电竞和运动健身的需求。最后第四在风格方面,她不喜欢木纹元素,希望家里能以浅色底搭配黑色家具来进行呈现。
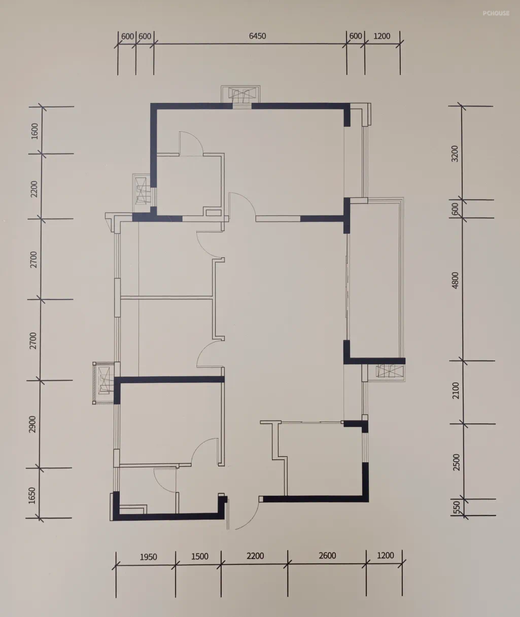
首先来看看原始户型图。可以看到这个房子的基础户型基础条件还是很不错的:
1️⃣ 玄关空间很大,非常难得看到有开发商给玄关预留了储物的区域;
2️⃣ 入户整个左侧首先是公卫,随后即是三个卧室排开;径直到头则是主卧套间;
3️⃣ 整个右侧则是会客公区,阳台也是非常宽敞。
由于整个空间的基础规划都比较合理,所以我们几乎没有做什么大的户型改动,只是基于屋主的需求,对空间做了以下的调整:
1️⃣ 左侧保留了第一个房间的卧室功能,将第二三个房间打通,作为屋主个人的休息区,满足她日常电竞和运动健身;
2️⃣ 将阳台打通纳入客厅空间,并将洗衣收纳区安排至阳台一侧;
3️⃣ 在厨房外安放屋主心心念念的大餐桌,餐厨联动,构成愉快灵活的就餐氛围。
前文提到过,本案的玄关条件非常好,所以在入户右侧设置了常规鞋柜+800库(镜柜后)的超级收纳组合,整洁是家里的第一好美印象。整面的大镜子,不仅打破了狭长走道的沉闷,引入了光线扩大了视觉感受,更是非常适合进出整理仪容。
玄关左侧的拱门通向干湿分离的洗手台,入户净手是归家的仪式。
镜子嵌入在弧形凹槽的墙面内,小小的平台专为花瓶和香薰等装饰物设定,其余生活用品在前期就分类安排在了壁龛和洗面柜内部,好的规划是确保实用性的同时保持美丽的关键。
改造前后对比来一组。
前文提到这个家户型是非常不错的,但唯一的bug就是层高。房屋原始层高只有2.7m,且有部分需要遮蔽的管道,因此放弃了地暖选择了暖气片。且屋主也不喜欢常规的悬浮吊顶,去挤占原本就不高的层高。几番思考尝试下,最后在边缘设施了弧形的边吊遮挡水管,中间区域完全不吊顶保留最大层高,再加上向下洗墙的灯带,从视觉上使顶面更加轻盈,大大增加了空间的通透感。
暖黄的灯光消除了暗色系家具带来的清冷感,给整个家温馨舒适的居住氛围。
简单利落的家具配色加以恰到好处的石膏线的点缀,让家多了些小细节与小设计。
餐厅改造前后对比。
在飘窗旁增加了一个墙面用于放置岛台实现中西分厨,同时利用飘窗台与窗户之间的高低差,增加了两个超大抽屉,在不影响采光的条件下,大大拓展了收纳空间,这里后期将安排咖啡机入住,并收纳一应杂物。
飘窗的夹缝还设置了屋主心心念念的玻璃酒柜,后期将堆满快乐小甜水,方便聚餐娱乐时就近取用。
从客厅看向餐厅厨房区域。
由于屋主一人独享整套房屋,不需要过多的房间,于是我们打通了原来的两间小卧室,并以双开玻璃门进出,在视线上连通客厅与房间,更加通透。
左边是头脑运动区。
右边是身体运动区。
今后步入下一阶段的生活,地台也可作为宝宝的地板床。
灰粉色的卧室,既温馨又少女,床尾的整排衣柜收纳力MAX,收纳过季衣物妥妥的。
主卧左边则是梳妆区和主卫的区域。
拱形门洞后,是独立的衣帽间,收纳着当季衣物,并且作为通向卫生间的通道,还可作为入浴前的更衣室。
一排到顶的大衣柜,储物能力满分,而左侧就是主卧卫生间啦~
#主卫 采用了推拉式玻璃门,不占用空间。
#主卫 整体以白色呈现,增加空间整体性,粉白色的小吊灯呼应卧室的灰粉配色,整体俏皮可爱。
#主卫 洗手盆对面使用了玻璃透光砖,不仅增加采光,同时也让空间更有设计感。
相关案例推荐
住三设计
设计师相关作品

粤公网安备 44010602000156号