前言:
业主在设计之初提出的对于家的构想——
“这是两个i人的家,80%的自由时间都在宅家,需要一个宽敞且丰富的公共空间,像图书馆咖啡厅一样的空间。”
“有静谧的陪伴,可以喝咖啡,赏花看书,或者就是躺着啥也不干,沉浸式体验雨声、鸟鸣、晒太阳。”
为了回应如此浪漫的构想,一起来看看灵灵锦是如何一步步将冷硬精装风改造成成符合业主美好憧憬的疗愈松弛感的梦想家园的吧~
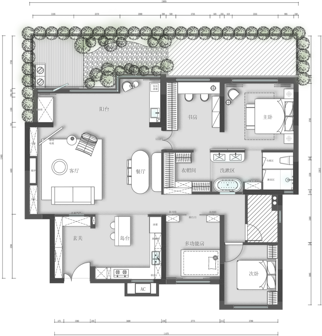
首先我们一起来看看改造前户型图,这是一个四室两厅两卫的户型,和业主沟通之后主要问题集中在以下几点:
1️⃣ 厨房相对较小,不想要孤独厨房,想拥有大大的岛台,可以和家人互动,一起做饭一起吃早餐
2️⃣ 目前只有两人居住,希望公区和私区划分更清晰,将主卧作为大套房形式,有可以做牛马加班的书房,可以泡澡的浴缸,有互不影响的双台盆洗漱区,当然还要有大大的衣帽间。
根据业主提出的问题,灵灵锦在原户型上做了以下几点调整:
1️⃣ 首先在玄关处设置了隔断,在入户与主要生活空间之间形成一道过渡,避免开门即见客厅的“直白感”。
2️⃣ 将厨房打开扩大,设计为开放式厨房。开放格局能让自然光和人工光源更自由地在空间流动,减少暗角;同时使得厨房与餐厅、客厅之间的动线更短,使用上更便利。
3️⃣ 增加私区的隐私性,做有双开门通道进入的主卧大套房,将书房,衣帽间,四分离浴室有机结合起来,形成崭新动线的主卧私人空间。满足双人不同状态下均可方便的使用套房,在套房中央围绕双台盆洗漱区做洄游动线。
将原本“开门见山”式的入户做了个隔断,形成独立的玄关空间。而半高柜+艺术玻璃的组合不仅提高了收纳,同时也增加了空间的层次感。
从厨房看向玄关。平拱垭口也给了入户再一次的精致仪式感~
到顶柜体给到了这个家的收纳储物满满的安全感,下方留空位置增加灯带设计不仅方便日常换鞋,也能提升空间整体的温馨氛围。
墙面上设计了壁龛可以放置些绿植装饰和常用物件,不仅有一定收纳功能,也给单调的墙面增添了一丝设计感。
改造前后对比来一张~
将厨房打开了之后,整个空间的延伸感立马得到了展示,整个公共区域在视觉上更开阔,通透感增强。
厨房扩开后,增设岛台作为早餐台,搭配天然草编质感的吧椅,从各种材质细节中贴合松弛自然的设计主调。
哑光手工长条砖让空间多了分精致的手作感。
作为厨房的延伸,岛台除开“多功能工作台”的实际作用,它也起到了视觉过渡的作用,它把厨房和餐厅衔接起来,既有界限又能保持开放,让整个区域更有层次。
灶台位置特意设置可折叠的净水龙头,非常方便直接给汤锅加水。
还是对比图来一张~原始的精装交付往往带有统一的标准化痕迹,色彩冷淡,缺乏个性与温度。在本次设计中,整体思路是通过材料的重置与软装的调和,让空间从理性转向感性,从冰冷转向温润,最终营造出一个可安放日常的自然居所。
仿真壁炉是空间的情绪魔法师,它不发热却可以让人心里暖暖的。跳动的火光让围坐四周的人们形亲密的围合感,赋予空间仪式感和归属感。黑色沙发是业主上个家的旧物,虽然微亮且大面的精致黑色皮革,和我们质朴自然的空间略有冲突。但从设计之初为了能够让它更好的融入,特意在地毯和玄关的透光窗格上出现的局部黑色元素,最后呈现出了很好的融合效果。
拆除原有吊顶、移动所有中央空调位置所换来的就是舒适的层高。同时为了避免顶面的单调感,设计了“木梁”装饰,让空间显得更有秩序感、韵律感以原始的自然结构感。
����
从餐厅看向客厅。客厅引入了可移动式家具系统,单人沙发椅、可移动式电视……使得空间不再是被“家具限定”的结构,而是具备了随需而动的弹性能力。
植物花草的引入、色调柔和的家具、各色各样的花器、自然的光线,通过回归自然材质、突出肌理变化、强化手作质感,将精装房从千篇一律的框架中解放出来。
依旧是改造前后对比,自然质感的提升不是一星半点~
餐厅餐桌选择了圆弧型长桌,尺寸可以满足多人聚会,同时圆弧形的采用也柔化了空间的视觉感受。
餐厅与厨房的位置关系,餐厅一侧靠墙直接设置了卡座。空间整体以大地色系与低饱和度色彩为主,而软垫选择橄榄绿,这就像是从自然风景里提取的配色方案。
从这个角度可以看到玄关区域。空间之间相互联动却又互不打扰。
#阳台水吧台 跟随视野来到阳台,水吧台的设计使得餐厅功能更加完整,也让日常生活更加便利。
#阳台水吧台 吧台下方预留有扫地机器人的空间。
#阳台水吧台 喝杯咖啡,发发呆,随意自在的生活方式充斥在这个家的每一个角落。
整个餐客厅空间,元素的和谐搭配让家的日常生活与自然痕迹交织在一起。
本案重点改造空间——豪华的主卧套间!通过砸墙、调整门洞、重构动线一系列操作,最后呈现了一个完美的洄游路径套房。
从客厅看向豪华的主卧套间~
将原先书房的门洞扩大,作为进入大套间的唯一入口。双开门的运用更添入户仪式感。
视线朝左转便能看到书房空间啦~左侧到顶的柜体与开放格的结合给了这个空间很多的收纳可能。
小小的艺术玻璃的使用让墙面不再单调,同时又不过于繁复设计。
主卧还是来一张改造前后对比~
主卧休息区与书房用布帘进行一个软隔断。卧室休息区墙面选择了大花色的墙纸,营造了空间层次感,同时也强调了整体的自然氛围,更具生命力。
软包床体是舒适性与美感的结合点,既满足身体上的放松需求,又让空间更加柔和。
床尾安排了一组斗柜可以收纳存放一些小东西。
主卧休息区与书房之间运用了艺术玻璃作为隔断,增加了墙面的层次感。
主卧休息区与主卫之间运用推拉门进行隔断。
史上超豪华的主卫来袭!独立马桶间、独立淋浴、泡澡区、双台盆洗手台全部cover住,就问还有谁~
双台盆设计满足两人共用时刻,绝对避免打挤时刻。
卫生间也能做到储物力满满~爱囤卫生用品的人儿狂喜!
主卫另一侧联动衣帽间,洗漱完拿取衣物不要太顺手太方便~
����
次卧很小,但特意做了不一样的布局——把储物衣柜放在了床头两侧,替代摆放在进门靠墙的空间。从衣柜体积上来说几乎和放在门口一样,但从功能上有以下几点优势:
1- 它实现了按人分配空间,物品就近取用,构建物归原位,久住不乱的基本收纳逻辑;
2- 衣柜放在床头,最重要的是释放了两侧的过道空间,这个小房间是给父母双人居住,互不干扰的上下床动线非常方便使用;
3- 在不减少收纳空间的前提下,还完全实现了小房间显宽敞的需求。
藤编的灯罩也延续了整体“自然化”的设计叙事。
相关案例推荐
住三设计
设计师相关作品
编辑精选

粤公网安备 44010602000156号