前言:
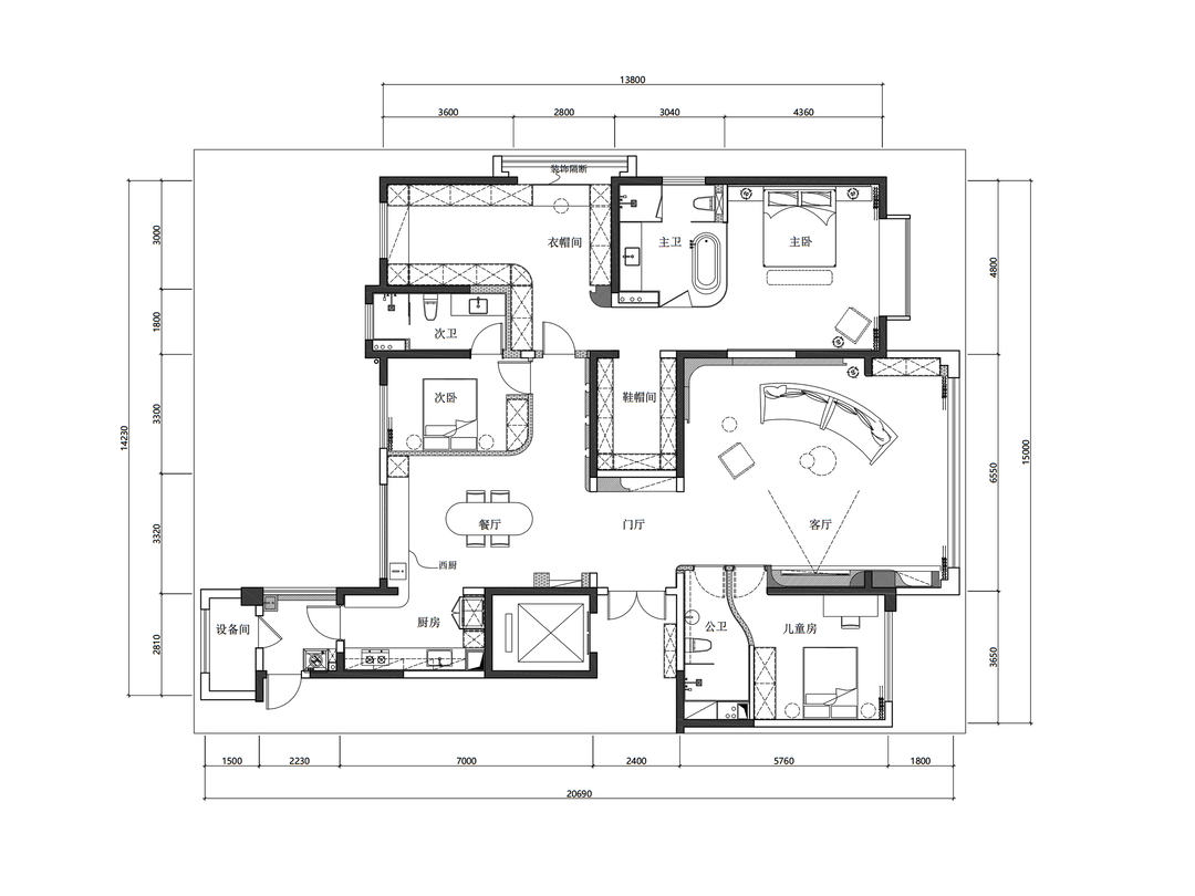
本案是一套面积220㎡的精装房,原有装修很常规,设计师与屋主经过充分沟通,双方决定拆除原有精装,恢复毛坯状态,进行重新设计装修。
布局方面,我们首先将阳台封闭,并入了客厅,扩大了客厅面积;其次将一个次卧与主卧合并,改为衣帽间。其他两个次卧做了一些小调整,成为儿童房与客房。
客厅将米色作为主色调,并辅以浅色布艺沙发搭配石材及不锈钢家具,营造出明亮通透的空间感。
采用无主灯设计,选择数个小型嵌入式灯具,搭配落地灯,形成多层次的照明效果,令整个客厅显得更加温馨和有趣。
将阳台并入客厅,扩大客厅的面积。中间的梁结合吊顶做了弧形处理。电视墙同样采用弧形造型延伸至阳台一端设有壁龛用于摆放书籍和装饰品。
弧形背景墙采用仿洞石漆,营造出自然石材的质感。墙面艺术漆则以其独特的纹理和持久的美感,增加了整体空间的层次感和艺术氛围。
窗边舒适的一角,放一把休闲椅,搭配柔软的毯子和生机盎然的绿植,让人可以在阳光下放松阅读休息,享受片刻的宁静与悠闲。
将中厨打开,并在餐厅靠窗部分增设一排柜体,打造出西厨区域,从而大幅增加了整体厨房的操作台面。
走廊较长,连接两个卧室和餐厅。为了打破单调感,我们延续了弧形设计,并在走廊尽头设置了一个拱形壁龛,不仅起到装饰作用,还可嵌入灯带,提供柔和的氛围照明。
主卧延续了干净的米色调,搭配温暖的绒面和木质元素。灯光设计则巧妙结合了筒灯、壁灯和台灯,层次丰富且柔和。
空间内还增添了精致的装饰元素,如艺术画作和小型绿植,进一步提升了整体的美感和舒适度。
主卫设计简洁明了,没有过多的装饰。壁灯和吊灯的光线营造出柔和的氛围,使得空间更加舒适。当人进入这个空间时,可以完全放松下来。
项目名称?Project Name - 绿舒
项目地点 Location?- 四川成都?
项目面积 Area - 220㎡
完工时间 Project?Year - 2022.11
设计公司 Design agency - 季意空间设计
设计统筹 Design Coordinator - 李佳
设计团队 Designers - 许倩、尹蔚瑾
合作方式 Approaches to cooperation - 设计&施工
摄影团队 Photographer - ICYWORKS
相关案例推荐
季意空间设计
设计师相关作品
编辑精选

粤公网安备 44010602000156号