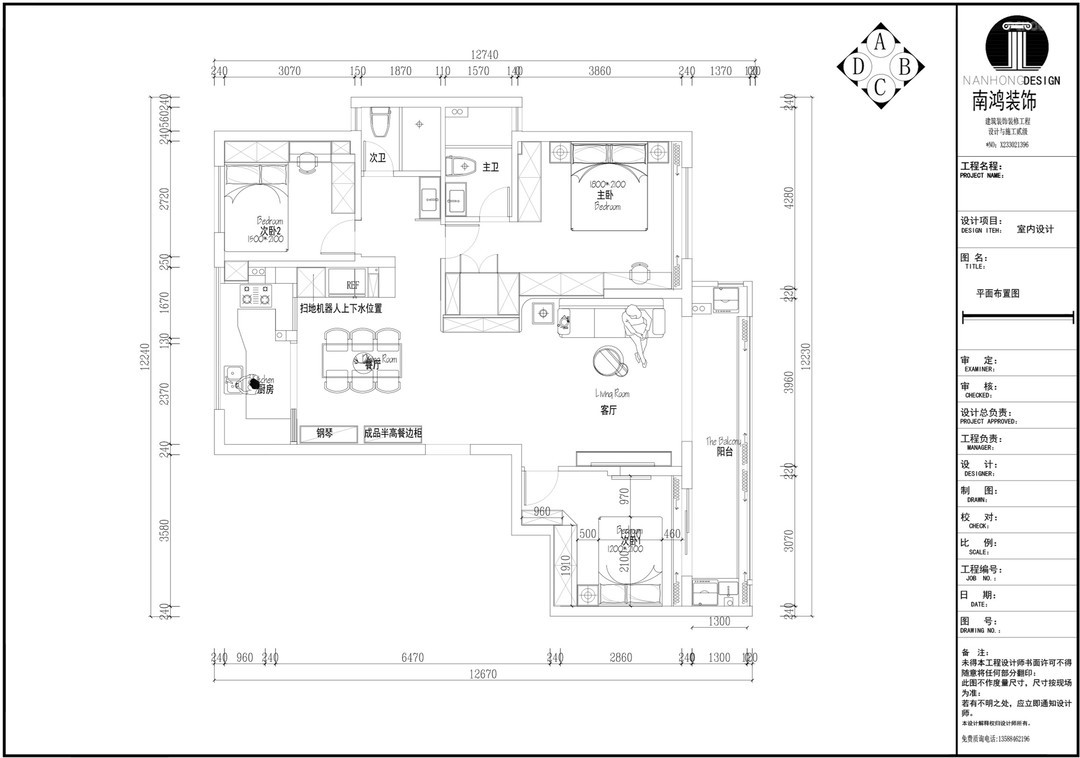
前言:
									本案业主是一对年轻夫妻,比较注重装修的性价比,希望在相对有限的预算内,让心目中理想的家完整落地。
空间色系基础为奶fufu的杏仁色,质感的黑、稳敛的棕加持高级感,卧室区掺入清新的绿色,空间是复古的更是极为生动的。
									
												
												
													
														
															
																沙发墙
															
														
															
																装饰画
															
														
															
																古典
															
														
															
																法式
															
														
															
																饰品
															
														
															
																窗帘
															
														
															
																绿植
															
														
															
																客厅
															
														
															
																灯具
															
														
															
																沙发
															
														
															
																瓷砖
															
														
															
																电视柜
															
														
															
																电视墙
															
														
													
												
											
公区于地面通铺鱼骨木纹砖,制造延伸感,空间变得通透大气。顶面勾勒精细的石膏线条,烘托典雅法式韵味,再结合空间的软装进一步诠释法式的优雅和浪漫。
宽厚包靠的山茶花沙发,带来慵懒悠闲的况味,沙发后方继续以线条雕琢造型,搭配壁灯和装饰画,打造优美端景。阳台置入懒人沙发与小茶几,作为日常休闲区使用。
通道处以深色储物柜的形式解决收纳之需,柜体融入玻璃材质与圆拱造型,搭配岩板背景和柔暖灯源,温馨生活感就此打开。
												
												
													
														
															
																餐厅
															
														
															
																冰箱
															
														
															
																装饰画
															
														
															
																古典
															
														
															
																餐边柜
															
														
															
																法式
															
														
															
																隔断
															
														
															
																饰品
															
														
															
																绿植
															
														
															
																餐椅
															
														
															
																灯具
															
														
															
																餐桌
															
														
															
																瓷砖
															
														
													
												
											
餐厅选配线条干练的中古风家具居多,质朴沉稳的色调久经岁月考验,焕发别样的光彩活力。局部利用点光源调和氛围,多样化软配彰显丰富层次。
餐厨之间置入黑框压花玻璃窗,弱化墙体存在感,同时接引自然光,四季窗景变幻,自成一派诗意框景。
相关案例推荐
							浙江南鸿装饰股份有限公司
设计师相关作品
												
													
														
															
																
												
													
														
															
																
												
													
														
															
																
												
													
														
															
																
												
													
														
															
																
												
													
														
															
																
												
													
														
															
																
												
													
														
															
																
												
													
														
															
																
												
													
														
															
																
												
													
														
															
																
												
													
														
															
																
												
													
														
															
																
												
													
														
															
																
												
													
														
															
																
												
													
														
															
																
												
													
														
															
																
												
													
														
															
																
												
													
														
															
																
												
													
														
															
																
                                                    
                                                        
                                                    
                                                        
                                                    
                                                    
                                                    
                                                        
                                                    
                                                        
											
										
											
											
											
											
											
														
														
														
														
														
				
                
粤公网安备 44010602000156号