前言:
拍摄的时候,屋主们已经入住一段时间了,可以看见他们的生活痕迹:软蓬蓬的沙发抱枕,被翻阅过的书籍,精心排列的照片墙,长桌上零零碎碎的手工材料……走进这个家,仿佛被一条温暖的手工编织品包裹,柚木的温润光泽中,感受到日常的惬意与轻松。
项目地址 | 芜湖保利熙悦府
设计团队 | 研己设计
设计主创 | 张传祥
合作模式 | 设计+半包施工
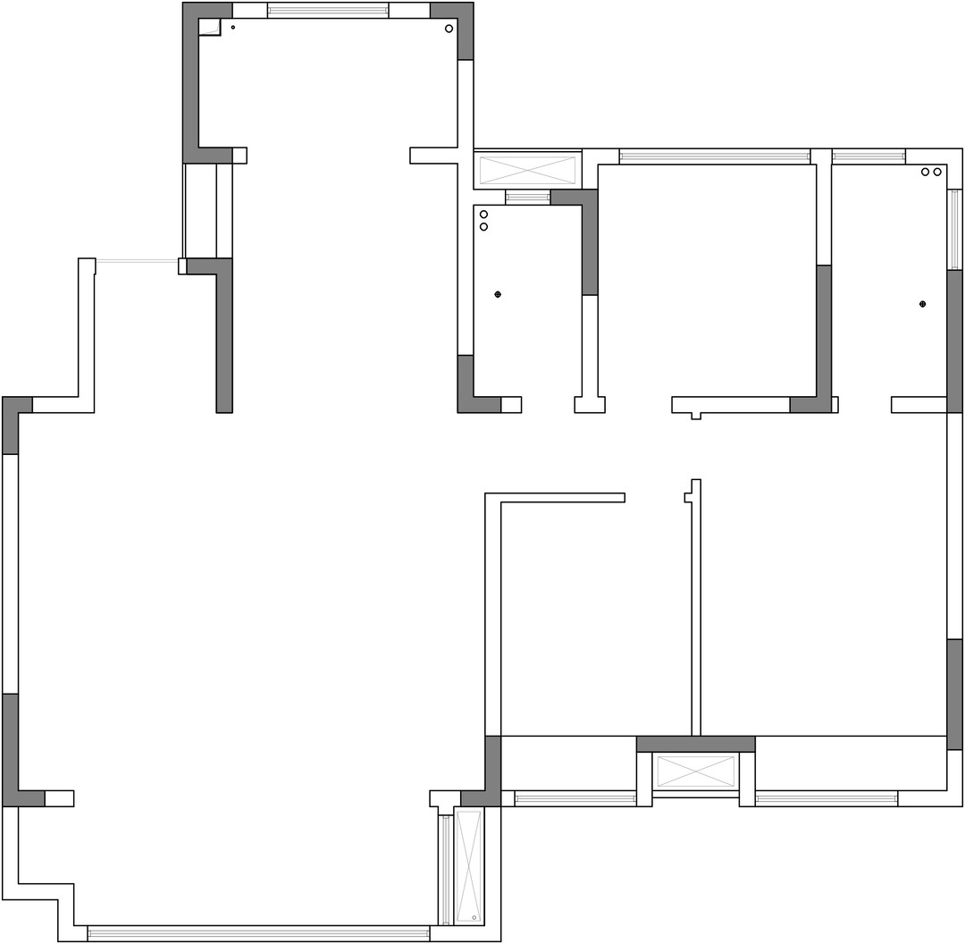
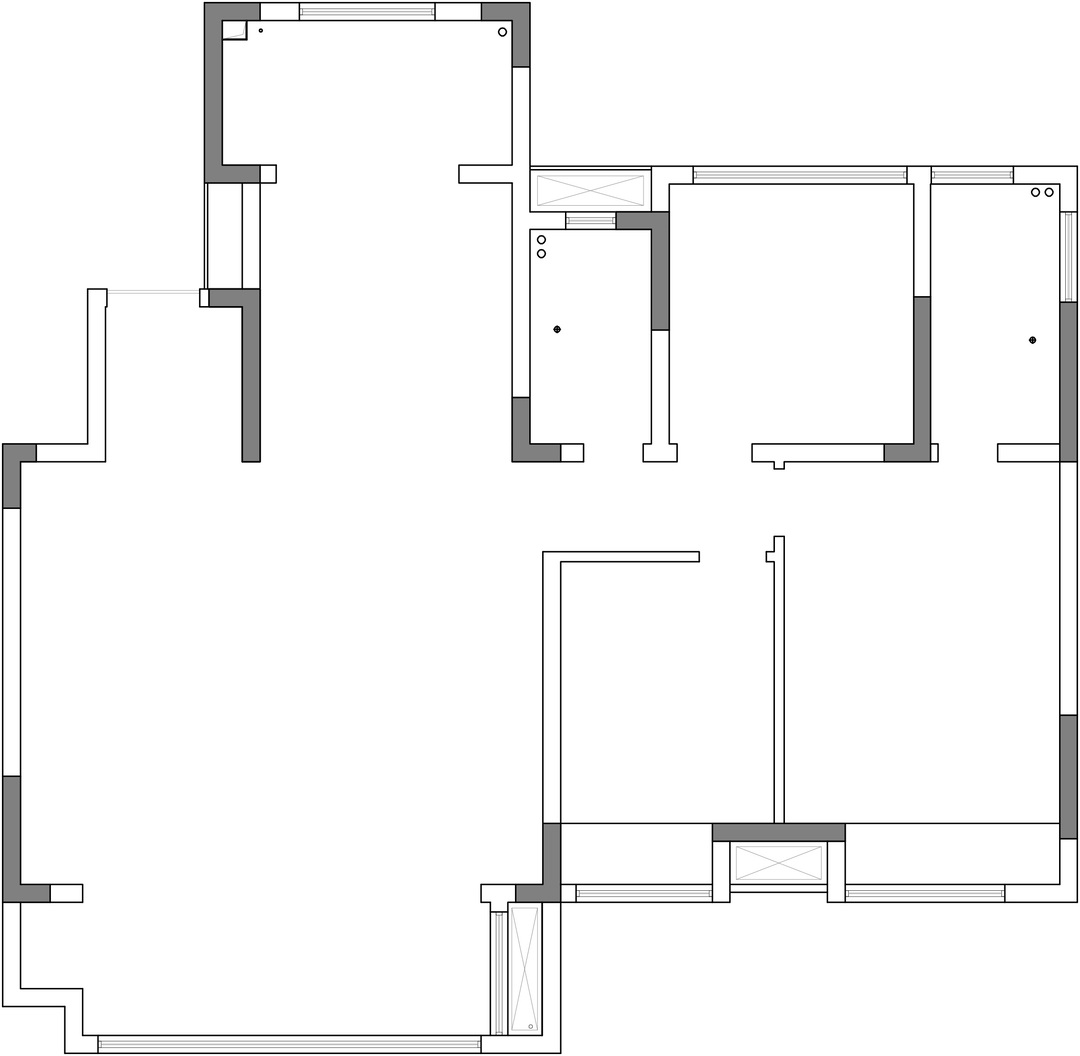
建筑面积 | 150㎡ 3室2厅
项目类型 | 平层
文案策划 | 刘璐璐
项目摄影 | 黄秉文
这回客厅的主角不再是电视,而是书桌,围合式布局的沙发,将家里最宽阔的一片空间留给阅读、交流、创造力。
简约而有质感的白墙木地板,阳台梁体用木纹板装饰,与骨骼线柜子呼应,约45厘米深的柜体提供充足储物,上方留空,会让空间更有“呼吸感”也便于空调检修。开放柜用中古黄与黑色平衡整体的色彩关系。
好用的中古风搭配思路——保留天然纹理与温润质感的大量木材,绿色、黄色等明亮的色彩跳跃式点缀,玻璃与金属营造轻轻盈感。
墙面的装饰画、挂画,造型别致的边几,填满柜子的书籍摆件,则来自于屋主的日常,填充进他们的个性色彩。
我们希望硬装简约有质感,并尽量保留层高,所以我们选择用蓝色斜顶造型隐藏空调管路,通过颜色碰撞让白、木为主的中性色空间更加丰富,搭配上餐厅软装,轻松营造出别致的时髦感。
拆除厨房隔墙,木地板顺光竖铺,让整个公区更连贯开阔。摇臂灯、圆桌、餐椅,也用简约的造型、木材与金属元素与客厅软装呼应。
想要餐厨好收纳,一定要做好分区收纳。餐边柜结合骨骼线,让一个个抽屉更有秩序感。
冰箱、蒸烤箱嵌入“盒子”,视觉上是一个干净利落的体块,而前后错落,可以在立面上创造出丰富的层次感,打破单一的平面,让空间更有深度。
将南次卧合并进主卧做衣帽间,主卧入口移动到客厅,双开门可以很好的延伸视线,放大空间感。方块玻璃造型点缀,加入些光影效果,让门扇也可以成为空间中亮眼的装饰。
家中并不需要处处要“有用”,我们在窗边搭建休闲区,一株绿植,一把单人沙发椅,手边就是猫咪自由穿梭的小门,感受猫咪和阳光的柔软。
我们在原本的南次卧做L型衣柜,一部分背靠背衣柜,也可以做屏风遮挡,侧面用一整张木纹板修饰,形成一个过廊的感觉,到睡眠区有个过渡。飘窗同样用木纹板包裹,与线条呼应。
主卫的下沉区域做了弧形吊顶修饰,卫生间地面是表面有肌理变化的手工赤红色地砖,墙面则用长条釉面瓷砖,清爽明亮,营造出屋主们喜欢的松弛感。
相关案例推荐
研己设计
设计师相关作品
编辑精选

粤公网安备 44010602000156号