前言:
									本案屋主是一对90后新婚夫妻,对于家的设想是简约不失浪漫。从设计到落地的过程中感受到屋主对于家的期待,在诸多细节上都力求完善。
我们希望能创建一个令人心安的庇护所,一处能给人抚慰和舒适感的个人领地。季节更替,新的故事在这里悄然生长。
									
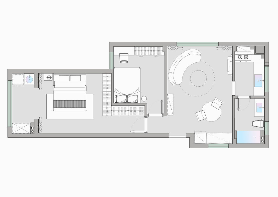
本项目建筑面积86平,房型总体上呈“一”字分布,主卧、次卧、客厅依次排开,厨房和卫生间集中在一侧,空间被生硬地划分成数个功能区,不能达到使用的最优解。
结合屋主需求与房屋的实际情况,我们没有大拆大改,只是在局部做了微小的调整,优化空间使用:
1.浴室入口移动到厨房内,扩大浴室面积;
2.厨房入口使用拱型门洞;
3.客厅增设装饰壁炉墙;
4移动主卧入口与次卧部分墙体,扩充主卧储物空间。。
客厅面积不大,还要在一角放下餐桌,我们采用佐敦1519香草拿铁乳胶漆,搭配做工精细的墙面装饰线条,还有木纹细腻的人字拼地板,从硬装上给空间一个清透雅致的基调。同时搭配时尚灯具和充满设计感的摆件, 为客厅带来一些趣味。
我们精心挑选合适的家具,最终使用弧形沙发,编藤柜和编藤茶几作为客厅的主角,简单的造型特别适合小空间,填满视线又不显得拥挤。
弧形沙发占据一角,没有普通沙发的笨重感。在沙发背后的墙角空隙放置一串白色糖葫芦落地灯,填补空间死角。落地灯搭配窗帘上方的氛围光,暖黄的光芒给浅色空间带来温暖的感觉。
拉起一半窗帘,坐在餐桌边,看见午后自然的光影下,小小的角落非常有质感。墙面上简化的线条、褐色窗帘、落地灯、沙发和茶几,让空间非常有层次感。
阳光下,沙发细腻的质感与地毯略带粗犷的纹理形成对比,编藤茶几自然的色泽和质感中和人造的简约冷硬,给家带来温暖的感觉
瘫在舒适的一角,享受自己的时间。
在自然光线下,墙面与家具上细小的纹路都展现出迷人的光影质感。
浴室入口移进厨房,餐厅空间只用一个拱形门洞与厨房相连,提升客餐厅空间整体度,让空间稳定下来。作为背景的整块墙面同样设置石膏线装饰,让同一个空间内的两个功能区和谐统一起来。
拱形门洞对施工有一定要求,特别考验师傅的耐心和细心。
利用入户门产生的进深差,嵌入冰箱和餐边柜,同时利用吊顶设置整条出风口,不显突兀,也保持了客餐厅高度。
从卧室看向餐厅,经典灯具搭配亚克力贝壳椅,镂空椅背和白色桌面旨在制造通透轻盈感。
白色罗马柱餐桌成为空间重点,增添法式的优雅。
木制百叶保留自然光线,隔离杂乱的过道景象,搭配小壁灯,制造餐桌旁的光影一角。
厨房面积不大,用最简单利落的设计保证功能性,长长的操作台保证料理操作的顺利进行,台下设置大容量收纳空间,灰色柜门简约好看,灶台上方设置开放格和封闭柜,让瓶瓶罐罐全部上墙,保证台面清爽,且便于拿取。
卫生间采用白框方格立体压花玻璃门,既保持隐私,看起来又清爽。盥洗台采用一体式台盆,悬浮设计带来轻盈感,占用最少的体积。
同样不算宽裕的内部,我们将盥洗台、马桶、浴缸依次排开,统一成白色,不设其它隔断,让空间看起来宽裕,部分橙色瓷砖活跃空间。在淋浴时,浴缸也可以隔离一些水分,设置壁龛放置洗浴用品。
主卧延续客餐厅空间的基调。阳台利用拱形门洞,放入自然光,又巧妙地藏起了阳台洗衣区。
为了增加主卧储物空间,我们移动次卧墙壁和卧室门位置,给一组顶天立地转角柜腾出了空间。柜子表面类似墙体,颜色统一更显开阔,不会让空间压抑。
两把不一样的小边几承担起床头柜的功能,搭配床头吊灯,营造出法式的精致感。
相关案例推荐
 
							研己设计
设计师相关作品
 
 
 
												
													
														
															
																 
												
													
														
															
																 
												
													
														
															
																 
												
													
														
															
																 
												
													
														
															
																 
												
													
														
															
																 
												
													
														
															
																 
												
													
														
															
																 
												
													
														
															
																 
												
													
														
															
																 
												
													
														
															
																 
												
													
														
															
																 
												
													
														
															
																 
												
													
														
															
																 
												
													
														
															
																 
												
													
														
															
																 
												
													
														
															
																 
												
													
														
															
																 
												
													
														
															
																 
												
													
														
															
																 
												
													
														
															
																 
												
													
														
															
																 
												
													
														
															
																 
												
													
														
															
																 
                                                     
                                                         
                                                     
                                                         
                                                     
											
											
										 
											 
											 
											 
											 
											 
														 
														 
														 
														 
														 
				 
                
 粤公网安备 44010602000156号
粤公网安备 44010602000156号