前言:
两个大宝宝+一个小宝宝,这是现在很多年轻家庭常有的状态,即“您管我叫爸,我管您叫哥,咱俩各论各的”。这种奇妙的亲子关系状态,我们称之为,新生代的家庭相处模式。
本案的一家三口,就是这样的新生代家庭,30岁夫妻+4岁男宝宝。在外,业主夫妻“扮演大人”忙碌工作,在家,也没有丢失自己的“童心”,关注孩子成长的同时,自己也在一起成长。我们要做的,就是创造一个能够与他们一起共同成长的家。
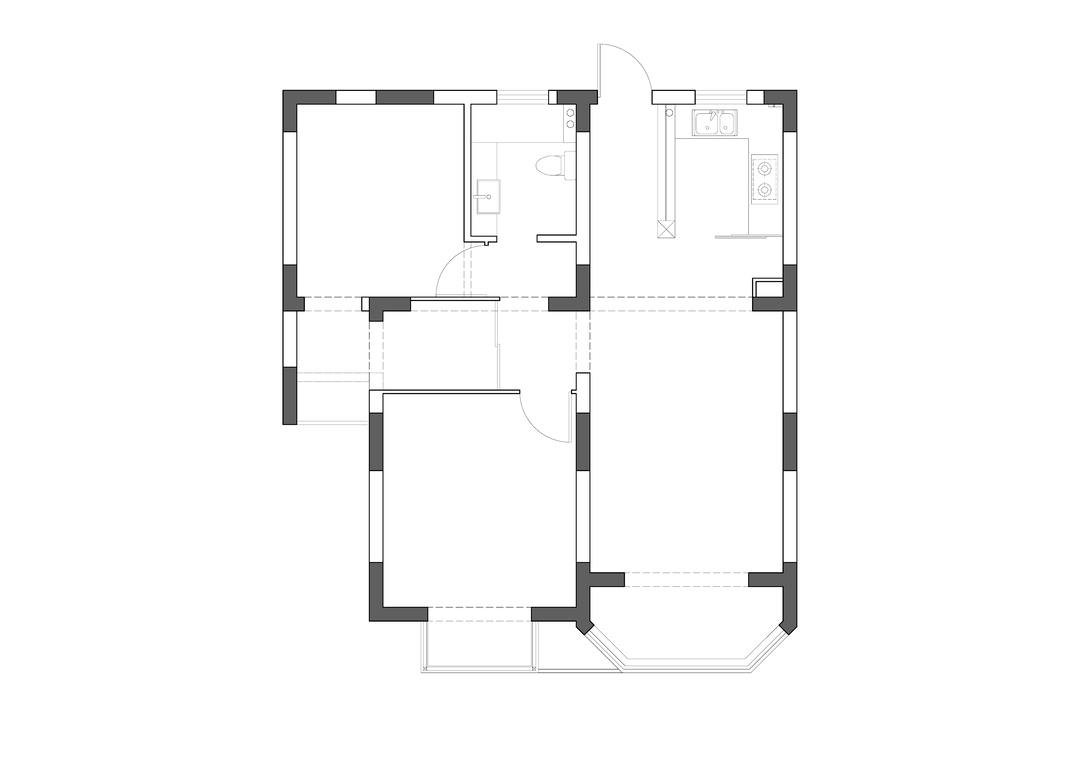
本案建筑面积100㎡,实际使用面积只有75㎡,各空间都很碎很小,且全屋很清晰地分为了左静区右动区。然而,如果就这么按照普通几室几厅、动静分区的方法去考虑它的话,基本上这房子算浪费了。白天,业主夫妇上班,家里长辈来带娃,可活动的空间就只有右半边,左半边的部分利用率几乎是零。怎么能让这75㎡的空间更高效地利用起来,也是我们改造时的一个重要课题。
如果还局限在房间的划分上,一家三口那么多的需求,是根本放不下的。所以从整体来看,改造思路可以用「大破大立」来形容。
破,是打破了「房间」的限制,除了主卧、卫生间这样的私密区,其他房间的痕迹都消失了,取而代之的是一个又一个功能区。
立,则是根据需要,将功能从空间中剥离出来,以一个全局的视角,把在生活中的一个个“行为”乃至“姿势”重新排布,在里面找到新的衔接规律,做自由串联组合。
这种模块化的格局,给了这个家很大的自由度。随着时间的迁移,它也能和孩子一起成长。
把该打开的都打开之后,我们得到了一个以中间承重墙为中心的,动线自由的开放空间。在这里,只有业主夫妇的主卧是独立的“禁区”,这以外的全部区域,都可以让爱奔跑的小宝宝自由地玩起来。而细节处的各个功能,都承接了不同区域的多重需求。如此不断地让各种功能把不同空间衔接交叠,全屋的利用率比起原来,提升了50%。可以说,像乐高一样,将各个空间不断地交叠和拆分,这套房子就成了跟着孩子一起长大的家。具体什么意思?下面我们来这个家里,仔细逛逛。
首先一进门,入室两条路,往西,到家洗手,往东,刚采买的东西顺手放进烹饪区。
面对入户门往西,是集成了多个功能于一体的“洄游盒子”。面向入户门的一面,集合了玄关收纳和洗漱台盆,洗烘设备的“后门”也在这里。
有意思的是,我们在玄关这里留了一块镂空,把室内框成了一幅活的“端景”。
每天下班后回家,透过这个框景看进去,爱人逗着宝宝快乐玩耍,一身的疲惫也因为这温馨氛围而消融。
家里的人,在客厅,甚至在阳台,透过这个框景也能一眼看到,是谁回来了。
洗漱区单独拎出来,既服务玄关回家洗手的卫生需要,又满足小朋友玩耍后洗手需求。早高峰使用也不跟里面卫浴打架。
台盆一侧,则是家政间的“后门”,这个我们待会儿说。
再往里走,是跟着宝宝一起成长的“儿童活动空间”。说到“儿童活动空间”,如果还是局限在“儿童房”里,未免太过狭隘。在这里,我们把儿童的成长分为三个阶段(幼年-儿童-少年),而相对应地,儿童活动空间,也需要在这三个阶段里有不同的拆分组合模式。
幼儿期,宝宝还小时,除了爸妈的主卧室,全家都是他的活动乐园,可以满屋子跑跳翻滚,玩累了,直接回床上睡觉就行,主打一个“悟空模式”。
绕着这个中心,宝宝在全家都可以奋力奔跑起来,不走回头路!
最西边,未来宝宝上学了,就是辅导功课的地方了,现在作为爸爸的临时办公区。
除了全屋中心那个大的洄游动线,儿童床有一个小洞口,宝宝可以从爸爸的临时办公区,通过儿童床,钻到另一头的读书角。
这里休息区做了上下铺,平时业主夫妇外出上班时,长辈来家里帮忙带娃,下铺就可以作为临时午休的场所。
儿童期,当宝宝大一点了,需要培养自己的个性和兴趣爱好时,左边空间就被分成了三个部分:学习、睡眠和游戏。①②结合,就是宝宝独立学习写作业的儿童房,宝宝要拼乐高、看课外书了,③纳进来,就是一个功能完整的儿童空间。
整个儿童活动空间,通过结合地台、软垫、低位收纳、开放格,给了宝宝跑跳、翻滚、自主收拾玩具和取用绘本的场景,培养兴趣爱好和自理能力。
不管是独自看绘本晒太阳,还是跟爸妈一起拼拼图,错落的地台让每个家人都能找到最舒服的姿势。
少年期,孩子开始有独立意识了,有自己的小隐私了,用两扇移门,就能把这三块区域合并为一个独立的次卧室。
两边都预留了未来加装移门的位置。
整个儿童活动空间,如同乐高一样,翻着花拆分拼装,不管孩子哪个阶段都合适。
妈妈喜欢读书、晒太阳,就把阳光最好的角落做成阅读区。
家里的大部分空间,都是一家人共同使用,而不是某人专属的。
这里是“洄游盒子”的背面,也是全屋最消极的位置,承重墙碍事,采光也无法触达。然而,正是这样一个消极区域,给了我们更多填充功能的契机。
原本承重墙里的鸡肋角落变成迷你家政间,集结洗烘、扫地机器人、清洁工具收纳等等功能,背面还开了一个“后门”,方便未来洗烘设备检修。
原本承重墙里的鸡肋角落变成迷你家政间,集结洗烘、扫地机器人、清洁工具收纳等等功能,背面还开了一个“后门”,方便未来洗烘设备检修。
承重墙后面,刚好位于全屋东西轴线的中心,是宝宝的练琴舞台。钢琴左右,正好衔接游戏区的地台和起居室的沙发,两侧皆是观众席。
难得的是,在这个家里,看不到为人父母的「牺牲感」。
爸爸喜欢乐高、拼图、手工,钢琴上方就是一个展示区,可以放爸爸的作品,当然,家里还有好几处开放格,同样用来陈列男女主人喜欢的东西。
再往东走,餐饮区、水吧区、起居室结合,成为视线通透的大空间,不论家人在哪里,都能一眼看到。日常带娃时候,任他翻滚跑酷,都翻不出爸妈的眼皮。
在这里,玄关窗景也可以是烹饪区的传菜口,爸爸做饭,儿子就从餐桌这边端菜。
餐桌旁边的水吧区,同时还服务了烹饪、餐饮和起居室三个需求。从冰箱里拿菜、把鱼送进烤箱,到日常取用零食咖啡软饮,这一块小小的地方,都能兼顾全面。
这里是爸爸最爱的沙发位,视线贯穿东西与南北,感受四周景观与光线。
坐在视线通达的爸爸位,这是斜面望出去视角,远眺南面是大好景观,西面也能感受到阅读角的阳光。
餐饮区、钢琴区、玄关、家政间结合成为一个大盒子,家就都围绕着大盒子游了起来。
在这个家里,亲子之间鲜有牺牲与妥协,更多是一种平等的、陪伴的关系。
就像打开的全屋一样,他们的爱和自我,也充分向对方敞开,彼此陪伴、共同成长。这其中,既有为孩子成长的长远思虑,更有对独立自我的可贵坚持。
相关案例推荐
上海顽鄙设计
编辑精选

粤公网安备 44010602000156号