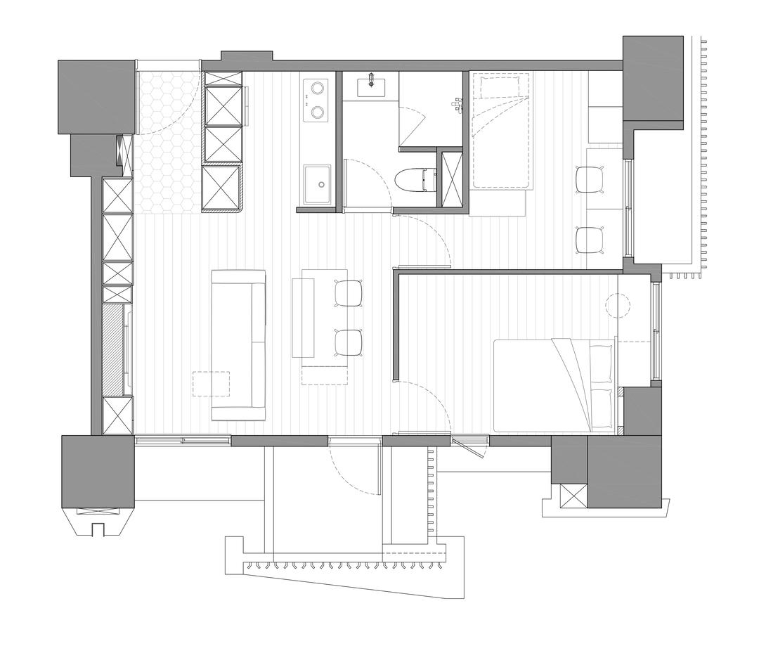
前言: 以 Cream Minimal 为核心,调和柔雾与木质的层次,透过减法手法重新定义小坪数的开放尺度。
玄关
以 Cream Minimal 为核心,调和柔雾与木质的层次,透过减法手法重新定义小坪数的开放尺度。
客厅
从入门玄关的材质过渡到立面比例,以一致的语汇与温润色阶,弱化柜体的量体,让收纳与墙面融为一体,使视觉延伸更流畅。
深木与编织门片穿插其中,在平静的色域里留下呼吸节点,让纯净不致单调,也多了几分情感的温度。
相关案例推荐
网友评论
有隅空间规划所
设计师相关作品

粤公网安备 44010602000156号