前言: 透过以人为本的思考,探索现代住宅的生活方式,回归真实的需要,提升心理仪式性的转换,让住宅不仅是满足基本的需求而是到达体验的感受,让我们所看到的不仅是设计而是对于生活的深刻体会。
本户型入户门厅在增加储物柜保证实用性的基础上,在柜子的和玄关端景柜的形式上做成了悬浮形式,顶面设置镜面,增加空间的延展性,联动起质感场域。同时在格局上采用了“先抑后扬”的手法,从门厅转进客厅,让人豁然开朗。
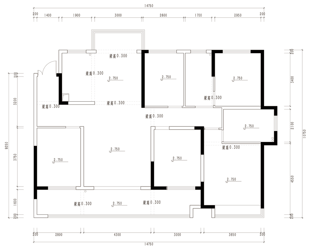
住宅的布局、尺度和动线经过设计,把原有南次卧拆除,形成一个大的横厅,大宅气势油然而生,在单一的大横厅空间内规划出满足不同需求的环境体验。弧形墙板自然弱化了阳台承重柱。
质感的延续,利用吊顶上层次叠加,营造人与空间的平衡与和谐。以灰色为基调增强整体沉稳纯净的空间氛围,利用光的变化让空间变得生动而自然。柜体和墙面通过嵌入式踢脚线灯带,增加空间视觉张力与视觉延展性。
电视背景墙形式上呼应了餐厅餐边柜。简单利落,通过灯光增加层次感。
时光如水,总是安然。种一朵淡雅的花,植在时光的长廊,推开一窗繁杂的风月,盈一怀年华的清远,走出一路赏心悦目的轻盈。
虚实之间、内外之间。让空间得到一个无限的延伸,让形态更加生动,餐边柜形式服务于功能。
不同于公共空间的精致干练,进入主卧,将优雅格调以温润的主色诉诸于人的知觉,以暖灰色系为基础,以白色系为主体色体现优雅的气质。
艺术是永恒的内核,而自然是不露痕迹的生动点缀。在主卧室中,可以看到大量天然的木色为布局带来温馨的统一感。好看与储物相结合,实用与美观不冲突。
主卫采用水泥素色砖,沐浴区地台抬高,增加空间的层次感。
相关案例推荐
 
							田丰
设计师相关作品
 
 
 
												
													
														
															
																 
												
													
														
															
																 
												
													
														
															
																 
												
													
														
															
																 
												
													
														
															
																 
												
													
														
															
																 
												
													
														
															
																 
												
													
														
															
																 
												
													
														
															
																 
												
													
														
															
																 
												
													
														
															
																 
												
													
														
															
																 
												
													
														
															
																 
												
													
														
															
																 
												
													
														
															
																 
                                                     
                                                         
											
										 
											 
											 
											 
											 
														 
														 
														 
														 
														 
				 
                
 粤公网安备 44010602000156号
粤公网安备 44010602000156号