前言:
在繁忙的都市生活中,每个人都渴望拥有一个静谧的空间,让心灵得到片刻的安宁。这套位于麓湖的住宅,复古而极简,设计师通过巧妙运用不同的材料与纹理装饰空间,并选用各时期的复古家具,打造出富有独特美感的生活空间。
屋主希望空间既有家的温暖,又展现出个性化的设计。因此,我们通过独特的元素、色彩、纹理和织物,将每个房间进行区分,营造出各具特色的生活场所。完美满足了屋主的审美需求和日常生活需要。坐在家中,屋主可以欣赏到户外的美丽景色,体验到与大自然的亲密接触。
现代简约与复古元素完美融合,创造出一个既具历史韵味又不失现代感的家居空间。在这里,屋主可以享受到穿越时光的优雅与宁静,体验舒适自在的居家生活。
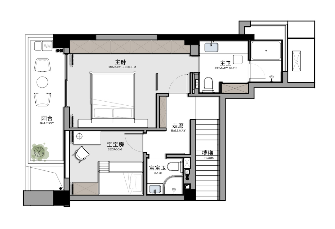
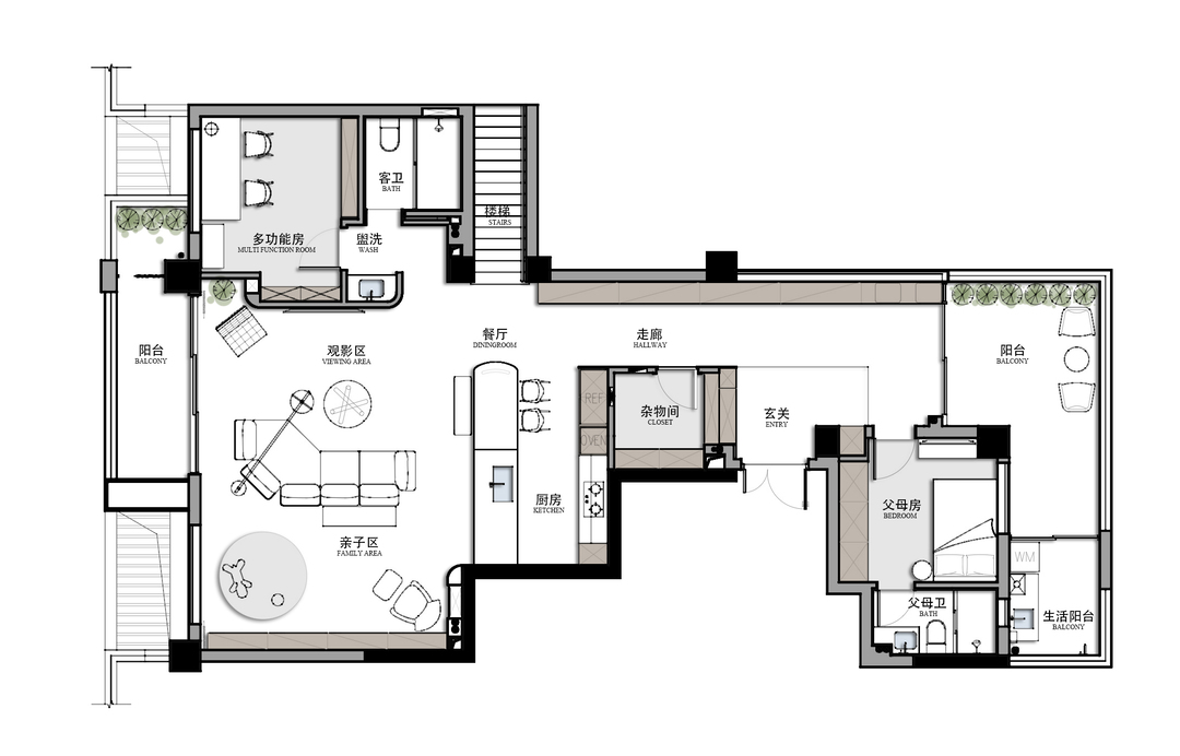
设计师以玄关为界,将整个一层区域划分为“西南”与“东北”两大部分,通过一条特别设计的通道相连接。
这条通道设计引入“灰空间”手法,虽然略显内敛,却恰恰为客厅的宽敞感增添了一抹戏剧性。步入客厅时,仿佛“山重水复,疑无路;柳暗花明,又一村”,让人不禁感叹设计的巧妙和生活的美好。
一道超长的悬挂矮柜贯穿通道,既引导视线,又巧妙地规划了动线,使屋主在空间中游刃有余,体验每一个细节的精致与用心。
家具选用中古与极简风格,木质色彩与墙面融为一体,线条清晰简约,实用美观兼顾,摒弃多余华丽,突显功能与设计完美结合。电视墙选柔性石材,轻盈质感不失厚重,自然纹理呈现石质之美,深远空间氛围散发浩渺感受。电视墙隐藏盥洗台,绿色大理石闪耀亮点,诠释私密空间热情与活力,与电视墙的柔性石材相得益彰,呈现复古风情倒流时光80年代奇幻画面。
在家居规划中,我们不再局限于传统的会客厅,而是创造了一个家人互动、玩游戏的空间。
客厅背后是亲子活动区,简约的造型和家具布局,注重保护孩子的安全。
左侧原始的墙体显得过于突兀,因此设计师利用了曲面的优势,打造墙面和开放格的设计。墙面覆以柔性石材,整体呈现出精心打造的“盒子”感觉,不仅让人对这个“盒子”产生无限遐想,还有效缓解了墙体的突兀感和视觉分裂。
原始的厨房空间虽然方正,却因面积狭小且缺乏连贯性而显得局促。为了打造一个更加开放与互动的公共区域,我们决定将厨房与餐厅合二为一,呈现出流畅而宽敞的整体空间。
我们巧妙地将餐桌与岛台相融合,创造出连贯而富有层次感的视觉效果。这不仅增强了空间的深度,还使得厨房与用餐区域功能更加灵活多样化。
相关案例推荐

成都拾光悠然设计
设计师相关作品