前言:
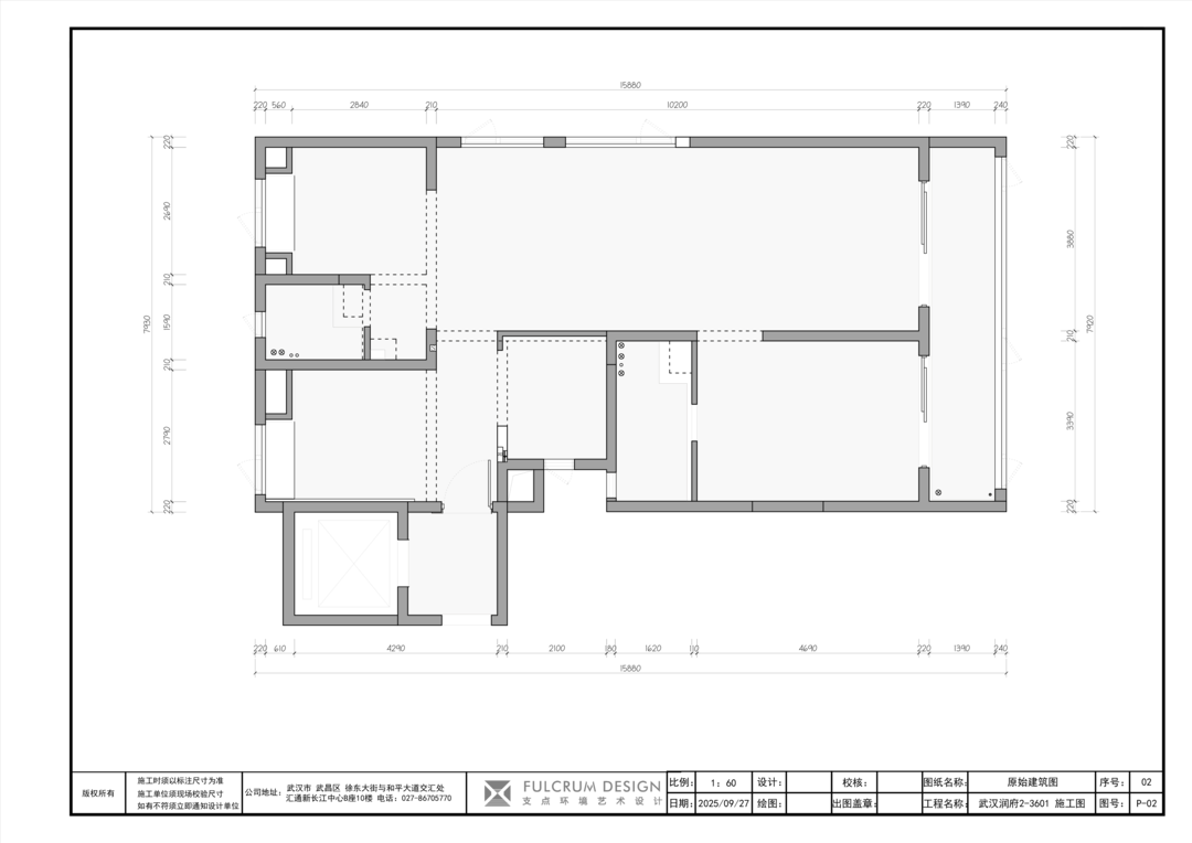
项目地址:武汉润府
设计面积:143㎡
设计风格:现代
主案设计:支点设计
软装搭配:艺境·陈设软装
相关案例推荐
网友评论

蒋宏华
设计师相关作品
前言:
项目地址:武汉润府
设计面积:143㎡
设计风格:现代
主案设计:支点设计
软装搭配:艺境·陈设软装
相关案例推荐
蒋宏华
设计师相关作品