前言:
家是人在世界的角落家是直接的幸福感产生的地方是人在世界的最初宇宙,是梦想的空间加斯东·巴什拉
家是一个专属于我们的,可以退守并安放身心的庇护所。在这个角落里,我们得以从世界的喧器与规训中暂时抽离,回归最本真的自我。家不仅仅是六面体,它保护并滋养了我们最初的想象力与探索欲,是一切远大航程得以开启的宁静港湾。愿我们都能在这个“角落”里,收获最直接的幸福,守护最初的梦想。
本案是位于成都2.5环的旧房改造项目,屋主是很有趣的一对80后夫妻有着一孩一猫,男女屋主爱好很多书法、绘画、足球、电影等等。喜欢原木+中式元素,希望家能营造出像美术馆一样的艺术感,同时注重家庭的亲子时光。
项目地点|四川成都
项目名称|蜀欣苑 160㎡清水房
全案设计|文虫三空间设计
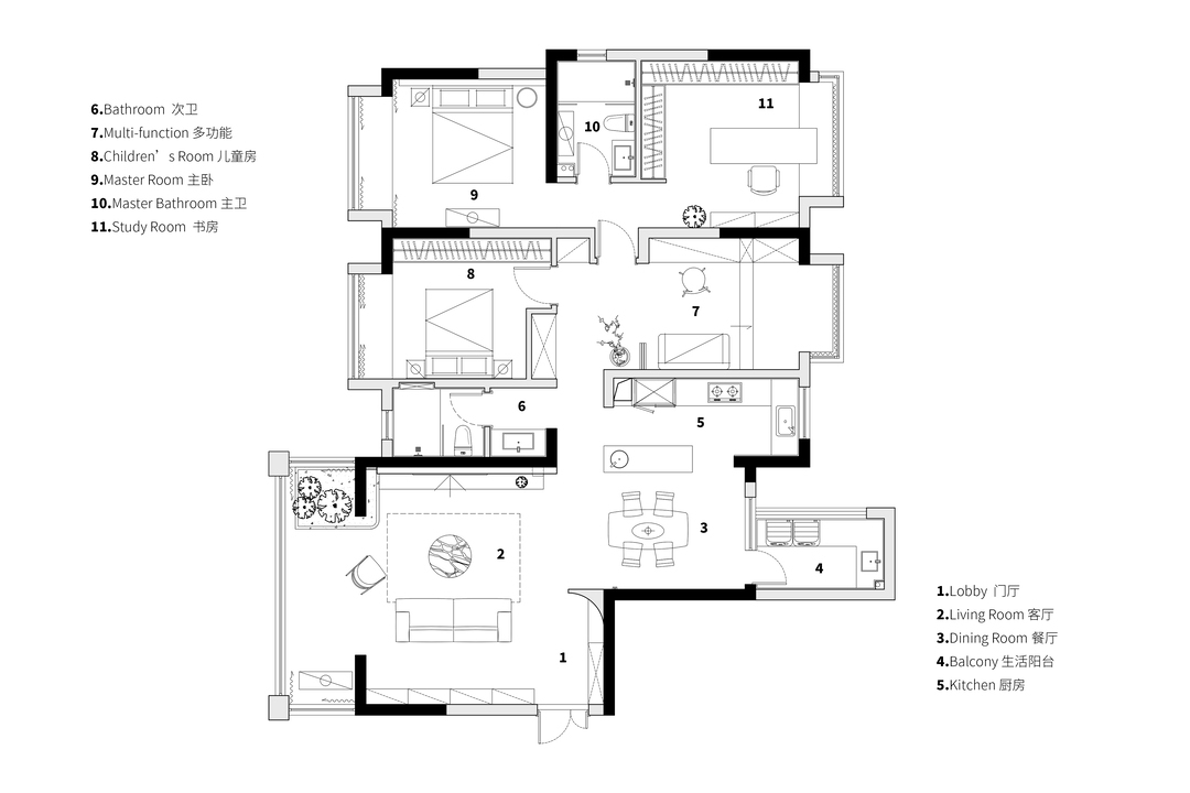
优化划分动静区,洄游动线丰富空间的互动性,弱化过道扩大活动边界。
•不设限的入户玄关:利用鞋柜收边隔墙的延伸,以弧形自然连接从视觉上引导看向采光处,形成玄关景观。
•阳台景观小花园:沿着阳台长达1.1m的承重墙划分出景观花园与电视墙相接,实现室内造景引入自然。
•客厅环岛式沙发:让出玄关动线,沙发在方形厅中形成洄游,一侧的观影和一侧的阅读,将无方向的客厅优势突出,释放空间的自由度。
•餐厨一体的高效:开放式厨房与餐厅以岛台作为联系和分区。消除的墙隔断即增加收纳长度又实现了采光通风和通道动线的优化。
•多功能间的破局:可切换私密性的多功能空间,一合是独立客房、一开是书房也是静区起居室。
•套房主卧:衣帽间和书法桌的结合即满足大容量收纳又实现了女主人1.5个书房的生活诉求。没有收纳压力的主卧可居中摆放1.8m双人床,宽敞舒适。
“设计是创造情绪的艺术。”——凯莉•韦斯特勒
客厅主基调以暖灰色作底,呈现静谧又高级的质感。带有花纹的地毯和绿植作为软性元素消解地面的冷硬,提升空间温度与层次。
灰的素雅与木、地毯、绿植的温润为空间营造出慵懒、温柔的氛围。
推开家门,一个开阔明亮的空间在眼前豁然展开。右侧U型分隔墙如一个艺术装置,巧妙地划分了玄关与内部空间,保持视觉的穿透感。紧邻着这面墙的是入户收纳柜,让归家时刻变得井然有序。
“未来的家应该像一件合身的衣服,完全适应人的生活。”——乔•科伦坡
客餐厨一体让整个公共区域浸润在一种通透明亮的氛围。烹饪也不再是孤独的劳作,系上围裙的人转身便能加入客厅的谈笑,家庭的欢声笑语与锅铲的叮咚声交织,成为最动人的生活协奏曲。
厨房以纯净的浅色为主调,搭配温润自然的榆木,引导光线形成舒缓均匀的节奏。中岛的设计优化了操作空间,形成一条流畅的洄游动线,回应生活习惯。黑色的餐椅与餐厅吊灯作为点缀,在简约中平衡视觉张力。
“空间不是填满物品的容器,而是人与光线的舞蹈场。”——安藤忠雄
步入多功能房,沿窗打造的榻柜既可收纳也能休息,也是一个能在白天切换为高效而从容的办公书房;夜晚,便切换为放飞思绪的阅读角落与娱乐天地。光影在屏风的格栅或图案间悄然流转,让静态的空间也随之呼吸,沉浸于此,感受每一刻的安宁与自得。
“建筑是凝固的音乐,而室内是流动的诗”——贝聿铭
主卧一张胡桃木床头板,以其深邃的色泽,赋予空间安稳的包裹感。“南瓜吊灯”以不对称的姿态悬挂在床头一侧,方便睡前阅读,形成了独特的美学构图。整个空间在纯粹的色彩与天然的材质交织下,让人心境归于平和。
整个书房布局中正、均衡,融入东方美学元素。一桌居中,安放所有纷杂思绪。两侧的收纳柜让一切繁杂隐于无形,确保视觉的纯粹与心灵的专注。在这里,无论是研墨写字,还是静坐阅读,心都能自然而然地沉静下来,进入一种“静心造境”的安然状态。
“空间应该让人感到宁静,而非压迫。”——阿克塞尔•维尔沃特
儿童房色调柔和且耐看,足以从容陪伴孩子整个成长周期。右侧的床头柜和挂墙置物架,放置可爱的玩偶和小巧的台灯,充满童趣。左侧,是一片自由的“灵感天地”——开放收纳架将孩子天马行空的创作变为空间的主角,构成一个充满成就感的个人展廊。嵌入式的低柜和开放格,不仅是收纳空间,更是一个关于秩序与美的小小课堂,让孩子在自在的氛围中,学会打理属于自己的小世界。
相关案例推荐
文虫三空间设计
设计师相关作品
编辑精选

粤公网安备 44010602000156号