前言: 本设计以 “复古新生” 为核心理念,打破传统复古风格的沉重与沉闷,将 20 世纪 60-90 年代的经典设计元素与当代年轻人的生活习惯、审美需求相融合,打造兼具怀旧氛围与现代实用性的居住空间。既满足年轻人对复古文化的情感共鸣,又通过灵活的空间规划、智能设备的融入,适配快节奏的现代生活,让复古不再是简单的元素堆砌,而是成为承载个性与生活态度的载体。
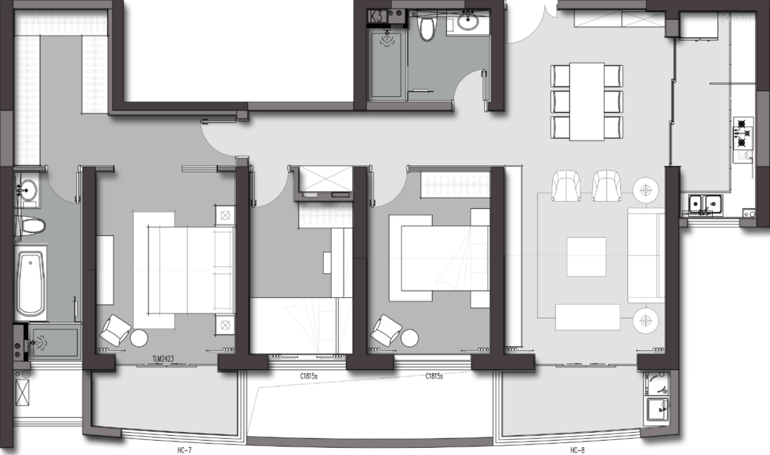
户型图
玄关
厨房
餐厅
衣帽间
网友评论
曹飞
设计师相关作品

粤公网安备 44010602000156号