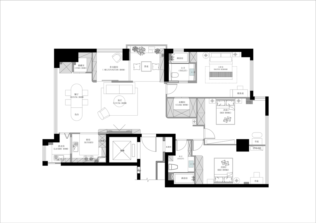
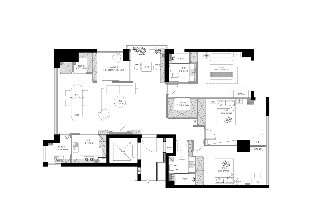
前言: 家,不仅考量基础的居住功能,同时也要包容一家人的生活想象。这是四口之家,有中年夫妻的务实与舒适需求,也有女儿对个性和美学的向往。我们着重打磨空间的包容可塑,在空间布局中植入灵活可变的生活模块,在风格取向中做好多元审美的平衡融合,就此展现满足一家四口的生活提案。
书房
相关案例推荐
网友评论
缪茹
设计师相关作品
编辑精选

粤公网安备 44010602000156号