前言: 身为设计师,我们不只是设计有形的空间,更愿意成为一位生活的编导,去帮助业主勾勒清晰的生活脉络,不仅赋予舒适的功能,还要为生活发掘、创造、注入动人的特质,去展现居住者的生活态度与个性喜好,与他们共同创造美好的生活场景,叙述梦想的空间故事。
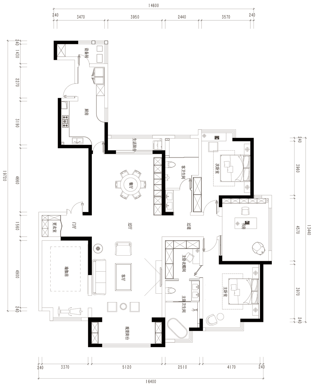
本案居住人口不多,1、原始户型进门缺少储物空间,改变南次卧进门位置,在入户右手增设进门储物室。2、此户型东边朝向蚌埠市龙子湖,景观条件非常好,因此把原始户型东向的卫生间和书房打通,做成大的景观书房。3、原始餐厅开间很大,在餐厅东墙增加装饰储物性餐边柜。4、原始厨房空间过小。
门厅--门厅设置更衣室,方便使用和打理,充分展现“形式服务于功能”的设计主旨。同时也缩小过道浪费的空间,横向纵向线型灯,辅助照明的同时增强视觉张力。“初其狭,才通人,复行数十步,豁然开朗”
												 沙发墙
															
														
															
																艺术品
															
														
															
																装饰画
															
														
															
																地毯
															
														
															
																客厅
															
														
															
																法式
															
														
															
																饰品
															
														
															
																电视柜
															
														
															
																电视墙
															
														
															
																窗帘
												
													
														
															
																沙发墙
															
														
															
																艺术品
															
														
															
																装饰画
															
														
															
																地毯
															
														
															
																客厅
															
														
															
																法式
															
														
															
																饰品
															
														
															
																电视柜
															
														
															
																电视墙
															
														
															
																窗帘
															
														
													
												
											
客厅布局开阔,空间顶部无主灯别致造型,并布置精致的雕花石膏线围边。色彩上,用不同明度的灰作为主色调,奠定了空间沉稳内敛的底色。
“漂浮而不沉没” 以设计 致敬法式经典,让世代传承的艺术与文化,即存于形,也存于心。
												 绿植
															
														
															
																艺术品
															
														
															
																装饰画
															
														
															
																地毯
															
														
															
																客厅
															
														
															
																沙发
															
														
															
																法式
															
														
															
																饰品
															
														
															
																瓷砖
															
														
															
																电视柜
															
														
															
																电视墙
												
													
														
															
																绿植
															
														
															
																艺术品
															
														
															
																装饰画
															
														
															
																地毯
															
														
															
																客厅
															
														
															
																沙发
															
														
															
																法式
															
														
															
																饰品
															
														
															
																瓷砖
															
														
															
																电视柜
															
														
															
																电视墙
															
														
													
												
											
过道与电视墙墙面本身是两个垂直面,线条转角设计,让空间更具延伸性,也使得墙面过渡更加自然,酒柜和过道通过嵌入式踢脚线灯带,增加空间视觉张力与视觉延展性。
沙发背景墙,左侧隐形门是瑜伽房的进门。
餐厅吊顶采用圆形水波纹造型,在整个四方的空间里显得圆滑流畅,给人一种舒适的包容感。法式浪漫感中加上时尚现代感。灯具与家具都以此概念搭配。这样的设计不仅不会显得杂乱拥挤,更致力于表达出空间的延伸感。
餐边柜装饰功能
餐边柜水吧功能
主卧卫生间浴缸区,窗外景观资源很好。
不同于公共空间的精致干练,进入主卧,将优雅格调以温润的主色诉诸于人的知觉,以暖灰色系为基础,以原木拼花地板作为跳色体现优雅的气质。
主卧室特写,窗外为龙子湖湖景。
两个空间合并成的书房,由于梁体和中央空调的两重因素,增加了弧形柔美的造型吊顶,提升层高的同时,保证设备的正常运行。
男孩房 采用大量灰色系色块谱写出现代感设计基调。灰色混油墙板搭配灰咖色硬包,空间的层次感在两种不同材质的碰撞中得以充分体现。于艺设,设计师追求极致的美感,于计量,设计师追求极致的工艺。
相关案例推荐
 
							田丰
设计师相关作品
 
 
 
												
													
														
															
																 
												
													
														
															
																 
												
													
														
															
																 
												
													
														
															
																 
												
													
														
															
																 
												
													
														
															
																 
												
													
														
															
																 
												
													
														
															
																 
												
													
														
															
																 
												
													
														
															
																 
												
													
														
															
																 
												
													
														
															
																 
												
													
														
															
																 
												
													
														
															
																 
												
													
														
															
																 
												
													
														
															
																 
												
													
														
															
																 
												
													
														
															
																 
												
													
														
															
																 
												
													
														
															
																 
                                                     
                                                         
											
										 
											 
											 
											 
											 
														 
														 
														 
														 
														 
				 
                
 粤公网安备 44010602000156号
粤公网安备 44010602000156号