前言: 为设计师,我们不只是设计有形的空间,更愿意成为一位生活的编导,去帮助业主勾勒清晰的生活脉络,不仅赋予舒适的功能,还要为生活发掘、创造、注入动人的特质,去展现居住者的生活态度与个性喜好,与他们共同创造美好的生活场景,叙述梦想的空间故事。
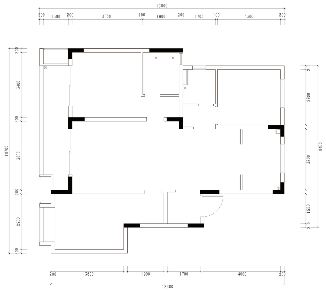
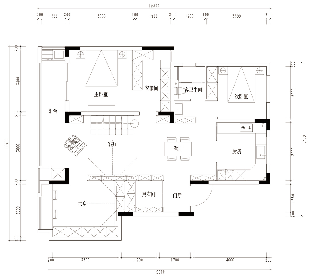
建筑面积为122平方,三室两厅一厨两卫,建筑结构为框架+剪力墙,按功能分为社交区、礼仪区、就餐区、休息区、学习区等。其中主卧室,客厅、阳台、南次卧4个空间为直接采光,动线和通风良好。门厅空间略小,功能不足。
本案两口人居住,喜欢玩游戏、看电影。居家轻办公。改造主旨重点强化空间的合理性,通透性,强调生活的交流。动线调整。常住人口生活区功能优化。把原本南向卧室打通,用柜体分割两个空间,形成观影客厅,以及游戏休闲书房。增加进门储物更衣间,强化储物空间。
一目了然的空间排序,精确把控的细节,家具艺术感与实用性的趋向发生交集,整体材质搭配的连续性考量,是此空间审美与性化的重要组成部分。
电视墙柜体充分考虑各种设备尺度与立面的比例关系。
软装部分舍弃茶几,满足业主喜欢舒服的在家看电影的需求,可席地而坐,舒服放松。
住宅的布局、尺度和动线经过设计,有效分隔了室内的公共空间与私密空间,在单一的空间内创造出满足不同需求的环境体验。
悠然自得
书房大面积空间留白,满足业主“交互式游戏”的需求。
考虑中央空调和原始梁体,作了斜面吊顶处理,在保证设备运行质量的同时,改善了空间体验。
飘窗区域做书桌,满足居家轻办公的基本需求。
相关案例推荐
 
							田丰
设计师相关作品
 
 
 
												
													
														
															
																 
												
													
														
															
																 
												
													
														
															
																 
												
													
														
															
																 
												
													
														
															
																 
												
													
														
															
																 
												
													
														
															
																 
												
													
														
															
																 
												
													
														
															
																 
												
													
														
															
																 
												
													
														
															
																 
												
													
														
															
																 
												
													
														
															
																 
												
													
														
															
																 
												
													
														
															
																 
												
													
														
															
																 
                                                     
											
										 
											 
											 
											 
											 
														 
														 
														 
														 
														 
				 
                
 粤公网安备 44010602000156号
粤公网安备 44010602000156号