前言:
									摒弃复杂繁琐的造型,只做满足功能前提下的适度修饰。软装造型,质感,色彩的平衡。
									
								 
							
							
								
									
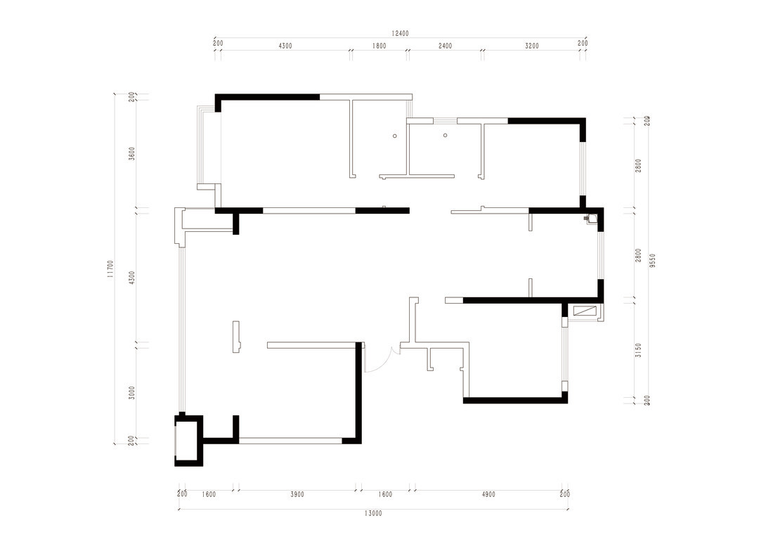
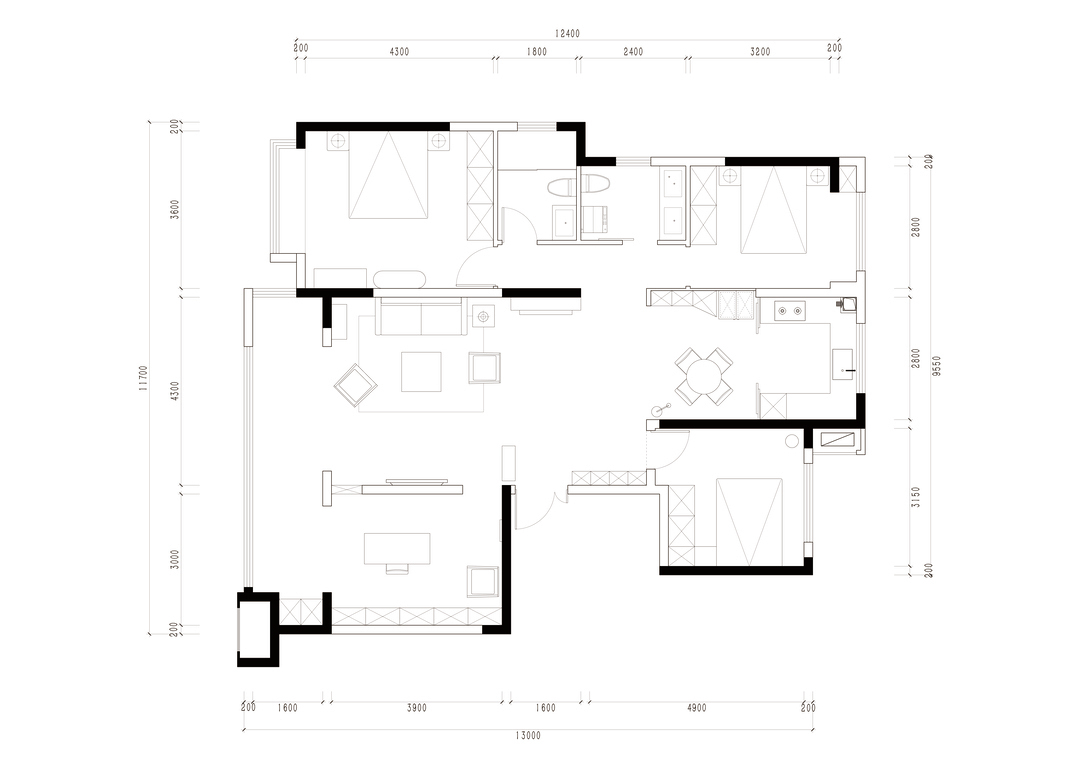
										户型图
										
											
												 户型图
															
														
															
																混搭
												
													
														
															
																户型图
															
														
															
																混搭
															
														
													
												
											
											
										
											
												 户型图
															
														
															
																混搭
												
													
														
															
																户型图
															
														
															
																混搭
															
														
													
												
											
											进门墙体调整,增加储物空间,厨房部分功能外扩至餐厅。公共书房和客厅联通,隔而不断。
										
									 
								
							
								
									
										玄关
										
											
												 玄关
															
														
															
																混搭
												
													
														
															
																玄关
															
														
															
																混搭
															
														
													
												
											
											成品装饰玄关置物架,既满足进门随手放东西,又满足装饰功能。
										
											
												 玄关
															
														
															
																混搭
												
													
														
															
																玄关
															
														
															
																混搭
															
														
													
												
											
											开门第一眼装饰造型,柔美弧度,增加空间的柔和度。跳色也是点睛之笔。硬装软装相辅相成。
										
									 
								
							
								
									
										客厅
										
											
												 客厅
															
														
															
																混搭
												
													
														
															
																客厅
															
														
															
																混搭
															
														
													
												
											
											简装修重装饰。无主灯增加空间氛围感
										
											
												 客厅
															
														
															
																混搭
												
													
														
															
																客厅
															
														
															
																混搭
															
														
													
												
											
											
										
											
												 客厅
															
														
															
																混搭
												
													
														
															
																客厅
															
														
															
																混搭
															
														
													
												
											
											电视墙做成悬浮形式,使得客厅和书房隔而不断。在大空间中形成回游动线,增加空间的趣味性。
										
											
												 客厅
															
														
															
																混搭
												
													
														
															
																客厅
															
														
															
																混搭
															
														
													
												
											
											
										
									 
								
							
								
									
										厨房
										
											
												 混搭
															
														
															
																厨房
												
													
														
															
																混搭
															
														
															
																厨房
															
														
													
												
											
											充分考虑使用者的感受和需求。洗菜盆一边柜体做了抬高设计。
										
									 
								
							
								
									
								
							
								
									
										卧室
										
											
												 混搭
															
														
															
																卧室
												
													
														
															
																混搭
															
														
															
																卧室
															
														
													
												
											
											主卧室整体色调,延续了客厅的搭配方式。一面绿色绚烂了整个空间。配以复古的床和斗柜。精致且个性。
										
											
												 混搭
															
														
															
																卧室
												
													
														
															
																混搭
															
														
															
																卧室
															
														
													
												
											
											
										
											
												 混搭
															
														
															
																卧室
												
													
														
															
																混搭
															
														
															
																卧室
															
														
													
												
											
											
										
									 
								
							
								
									
										书房
										
											
												 书房
															
														
															
																混搭
												
													
														
															
																书房
															
														
															
																混搭
															
														
													
												
											
											书房的柜体,在考虑书柜功能的同时,又整合了储物功能和钢琴空间。
										
											
												 书房
															
														
															
																混搭
												
													
														
															
																书房
															
														
															
																混搭
															
														
													
												
											
											隔而不断,透景顺势形成。