前言:
本案位于广州番禺的一幢精装住宅房,房子本身的格局挺不错的,户型方正&采光明亮。唯一的缺点是精装自带的配色非常“传统”,不够年轻化~
屋主夫妇是新婚小夫妻,喜欢温馨又带有童趣的空间。
于是,本次设计的重点就是,改变配色比例、增加储物空间,还有~让房子看起来更有趣。
我自己再给屋主创造了一个重点:“利用精装房的基础进行小范围改造,节约预算!”
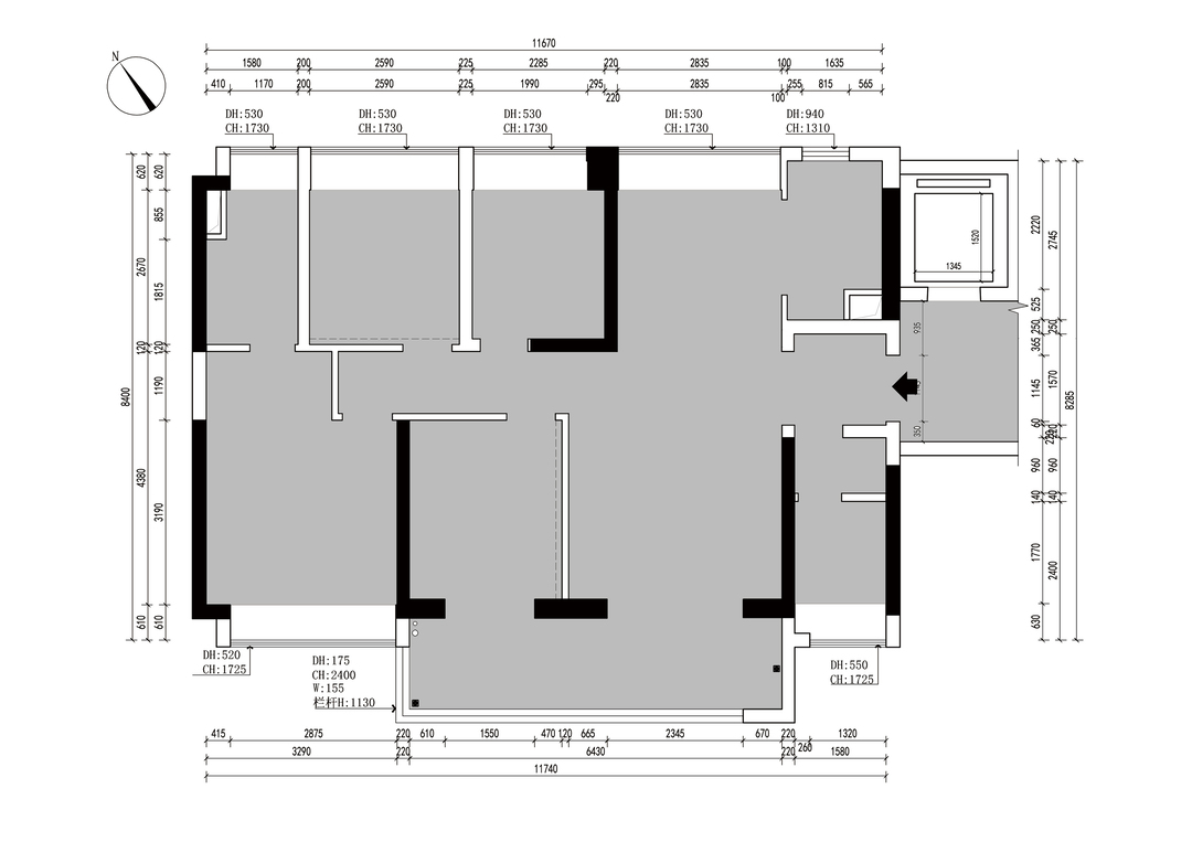
房屋原本的户型就相当不错了,空间非常方正。需要优化的区域其实也就是三点:
① 厨房空间过于狭小,两个人同时下厨连转身的区域都没有
② 阳台可以封窗合并进室内,需要考虑与室内空间的衔接
③ 原本房间有四间房,屋主平时用不到这么多房间,可以开放一间房打通客厅形成大空间
有了户型优化的针对性,实际改造的时候就快了很多:
① 厨房直接延伸到餐厅来,利用餐厅的飘窗组合成U字型厨房,大大延伸了厨房台面的空间。其中的餐桌在空余时分还可以作为厨房的备餐台。
② 阳台封窗直接合并进入客厅,在转角的位置设置一块榻榻米区域,客人来的临时休息,桌游区域,或者简单地看看风景,临时储物,使用场景非常全面。
③ 将与客厅相邻的房间墙体拆掉,做成开放式书房,既增加男女屋主平时的互动,又可以敞开客厅的视野。许多邻居走进来参观的时候,都会一眼感觉楼上楼下户型不一样呢~
户型并没有标准意义上的玄关,而是一走进来便看到开阔的客厅。
地面上的木地板可以直接在原来的地砖上覆盖,这样可以减少许多拆除费用。
天花使用一整条定制护墙板,延伸出过道的上下对称感,同时包裹住中央空调。
原木风如果仅仅使用单一配色很容易设计得“过于廉价”,所以在配色中增加了一些冷色绿色来作为调剂,墨绿色的沙发和针织毛毯就是配色中的一环。
阳台封窗后,空间内拥有超级赞的窗外视野,这么好的视野如果仅仅是放着岂不是太浪费了。
大面积的落地窗+秋千就是最好的组合
还记得刚才户型改造上聊到的榻榻米空间吗,可以说是整个阳台区域风景最好的地方。
双面落地玻璃窗+一望无际的视野,现在变成屋主回屋之后最喜欢的休闲场所
这里也有一个设计上的小细节,窗户生产之前刻意抬高部分窗框,这样做好的榻榻米就可以直接衔接窗框部分,避免卫生死角。
实用性上设计电动蜂巢帘,避免阳光过大的时候影响书房空间。
电视墙的背面原本是一间独立的房间,拆除墙体与客厅衔接在一起,变成开放式的书房。
如果正常工作的时候,其实在书桌上与客厅并不会互相打扰
但如果在空间边角区域,两边就能互相看到,产生互动与联结
与之前的客厅配色一样,书桌也采用定制的粹色玻璃进行点缀,在大空间的视角看下来。
翠绿色的玻璃点缀非常显眼。
天花上还有一条“彩蛋”,原本拆除房间隔墙时,天花上的梁体没有什么好的办法隐藏。
于是,既然隐藏不了就凸显出来吧,做旧化处理,形成“新与旧”的对比感。
小细节上点缀一些多彩的果盘与植物,整体的居家活力感就有了~
餐厨空间位于客厅的侧面,可以从客厅直接走过去
为了考虑防水性,这里就不使用木地板了。
而是拆除旧的墙面区域,重新制作防水改造。
厨房大门采用长虹玻璃定制推拉门,如果需要爆炒时则拉出来使用,也可以方便地通过燃气使用法规。
延长后的厨房区域真是比之前大了太多了,不仅可以容纳多人使用,上菜和洗手的动线也会更加顺手。
因为阳台封窗变回了室内的一部分,所以洗衣机&烘干机也需要移动到厨房区域了。
选择全嵌入且平整款式,就能更好的和柜体相融合
卧室区域延续客厅的配色比例,同款木纹与木地板衔接过来,保持整体进入室内的观感一致。
设计上的童趣小彩蛋依旧不能忘,宇航员版小夜灯
窗边的风景依旧不能浪费,落地窗边外包一个窗套。
温润的橡木质感,才可以让人自觉上去使用窗台。
精装房的设计思路需要更加细致化的解决方案,并不一定要全部打拆完全改造才行!
①完善地测量出来全屋的尺寸,还有插座电位灯具等内容
②依据现在的内容分析可以改动,不可改动的位置(一般情况下改动一些柜体,天花,门套,还有一些不合理的插座电位,硬装这些就可以了)
③再结合实际的生活需求来制作软装搭配,品牌型号规格,还有整体配色相互融合
最终就可以打造一个美美的新家了
最后,感谢你看到这里,希望这个案例也可以作为参考灵感~
Q&A
Q:装修过程花了多长时间?
A:装修时间花了四个月,除了定制柜体需要等待货期以外,其他的改造区域还是挺快的。
Q:说说是什么给了你灵感,打造出现在这个作品的?
A:灵感来源于屋主的交谈,屋主非常不喜欢原本精装房的配色,无论是地面砖还是墙面木门,整体配色都非常老旧。所以通过地板覆盖来改变整体配色,就是这次设计的重点。
秋千的制作灵感来源于屋主自己的诉求,我们策划秋千摆荡的位置来进行精准实现。
Q:你对这套作品最满意的地方在哪里,为什么?
A:最满意的地方在于阳台榻榻米的设计,一开始方案阶段屋主对此有一些疑惑,但实际完成后所有人都很喜欢这个区域,时不时就会去坐一下看看外面的风景。
Q:对平面布局做了哪些优化改动,为什么?
A:平面布局的改动主要是厨房与阳台合并区域,原始厨房空间实在是太小了,几乎这个户型的每位住户都或多或少对厨房进行了改造。
Q:在整个装修设计期间遇到最大的挑战是什么?
A:整个期间没有遇到什么挑战,和屋主聊得来之后,整个装修的过程就会很顺。
相关案例推荐
吴思昊
设计师相关作品
编辑精选

粤公网安备 44010602000156号