前言:
本案项目位于广州珠江边的125㎡复式精装房改造,普通冰冷的样板精装房并不能满足新的生活方式和审美标准。三代同堂的居住结构,屋主希望客厅有充足的采光,有孩子玩耍的区域。另外男主人是一位乐高狂热者,家里需要大量乐高模型展示柜,在兼顾收纳同时,尽可能多地展示模型。
以自然、空间为引,细化区域功能,打造核心区满足多样的实用需求;整体采用原木和浅奶油色搭配,整体色调柔和,呈现自然,简约温馨的家居氛围,满足三代人的居住需求,并且更加强调了其整体舒适性和实用性。
改造亮点:
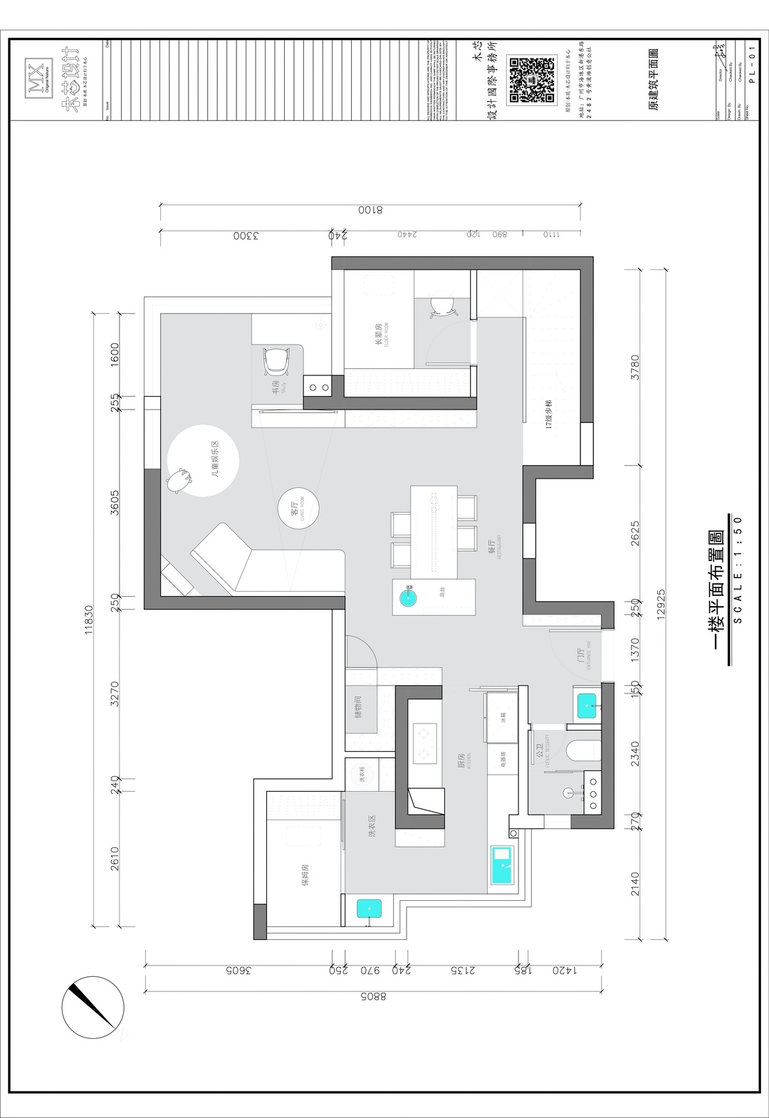
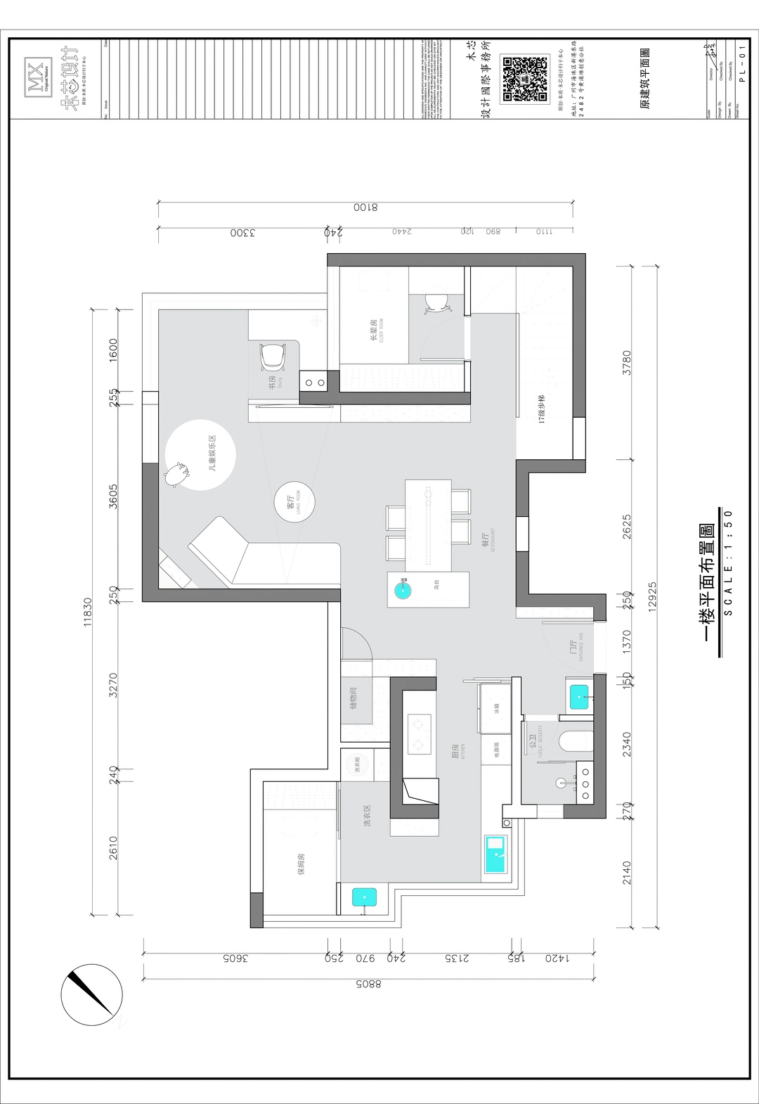
√将一楼作为家庭活动核心区,合理安排布局,让空间动线更加流畅,增加整屋的收纳空间
√生活阳台纳入厨房内,扩大厨房面积,增加保姆间和家政区,提高空间利用率,满足屋主及家人的多种生活需求
√客餐一体设计,悬浮电视墙为隔断,做半开放式的江景书房
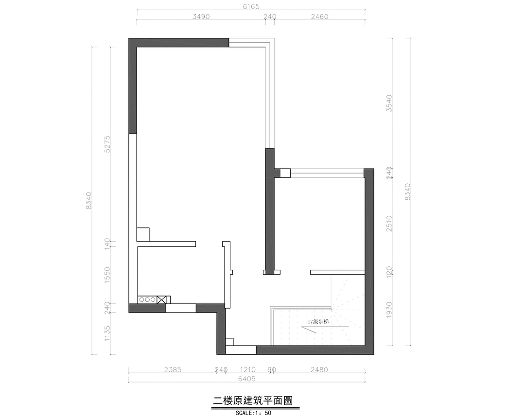
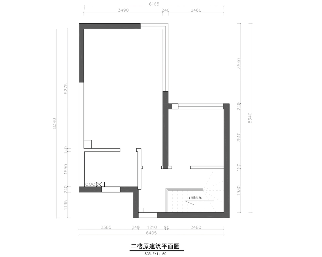
√二楼主要作为休息区,打造安静温馨的睡眠区
入户的落尘区,回家后第一个空间,左侧是公卫,右侧是收纳鞋柜,把洗手台外置,解决收纳、清洁、整理仪表问题,减少很多无效流程。
合理分区布局,以入户换鞋-洗手的行为习惯,打造独立、自成一体的功能空间。
简约的装饰,不代表空旷和乏味,那些隐藏的惊喜,要远胜于一些华丽装饰的堆砌。自由游动的空间,都是孩子们玩耍的区域。
原始生活阳台纳入室内,整个客厅一览无余视野开阔,置身其中的通透感让人放松宁静。悬浮电视柜,乐高展示柜和悬浮电视墙一直延伸到阳台,呼应吊顶的造型,竖百叶的窗帘,感受光影美学。
每个空间的光照度,合理分布灯具,满足不同条件下的灯光需求。自然诗意的编藤沙发背景墙,赋予客厅更多松弛与闲适感,一家人在此交流、互动、停留,彼此关系愈加亲密。
家中独特的展示收纳柜,收藏着屋主的乐高模型,摆上自己感到满意的作品,成为家里别致的一角。
利用地台抬高叠式楼梯,划分空间区域。楼梯下打造仿真苔藓微景观,鹅卵石、氛围月球灯、绿植框景,无形中为惬意氛围加分添彩,让空间呈现富有灵性的景观。
用“杰瑞小屋”隐藏电线盒的独特设计,让楼梯变得童趣灵动起来。沿着楼梯上二楼,脚下是木质质地的温润的触感呵护。
双一字的厨房一侧为洗切,一侧为灶台,从冰箱到水槽再到灶台的三角动线,不显压抑的同时也增加了收纳功能。
充足的采光面搭配无把手橱柜,清爽整洁,沿着墙面一字排开,简单紧凑。
在厨房区还“藏”了一个家政区和保姆房,跟主人使用空间分开,互不干涉,房间的采光充足,通风性也很好,非常具备人文关怀的私人空间。
套房式的主卧空间,集寝居、卫浴、衣帽间于一体,保证生活起居的私密性和便捷。
因为主卧空间充足,打破传统布局,我们将衣帽间灵活布置成中岛,利用柜体做空间分隔,以柜体为中心形成洄游效果,提升灵活性和通透性。
干湿三分离的主卫,外置洗漱区能保持有效的干燥,日常生活动线更便捷。
相关案例推荐
Johnny
设计师相关作品

粤公网安备 44010602000156号