前言:
本案位于广州市天河区的一栋旧房住宅改造,房子原本的户型面积并不大,但是得益于楼层很高,所以采光极好。屋主希望把原本的户型从两房更改为三房,满足三口之家的同时兼顾长辈偶尔过来居住的实用性。
另外还有一个小细节,便是屋主喜欢的颜色是绿色,希望可以用不同材质的绿色来点缀家的“绿意盎然”
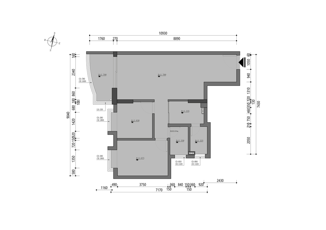
原本的户型结构并不算特别好,窗户开口只有正侧面以及底面有,所以中部的房间会变成一间“黑房”,
于是这一次的户型改造的重点,就是如何分配“黑房”的归属。
① 将原本户型的厨房挪动到客厅来,借助客厅的采光实现LDK客餐厨一体化
② 压缩洗手间的空间到“黑房”区域,尽量给厨房和小客房腾出使用空间
③ 进一步加强客厅与儿童房之间的光线互通,在儿童房的墙上开设高窗满足隐私与光线流动的双需求
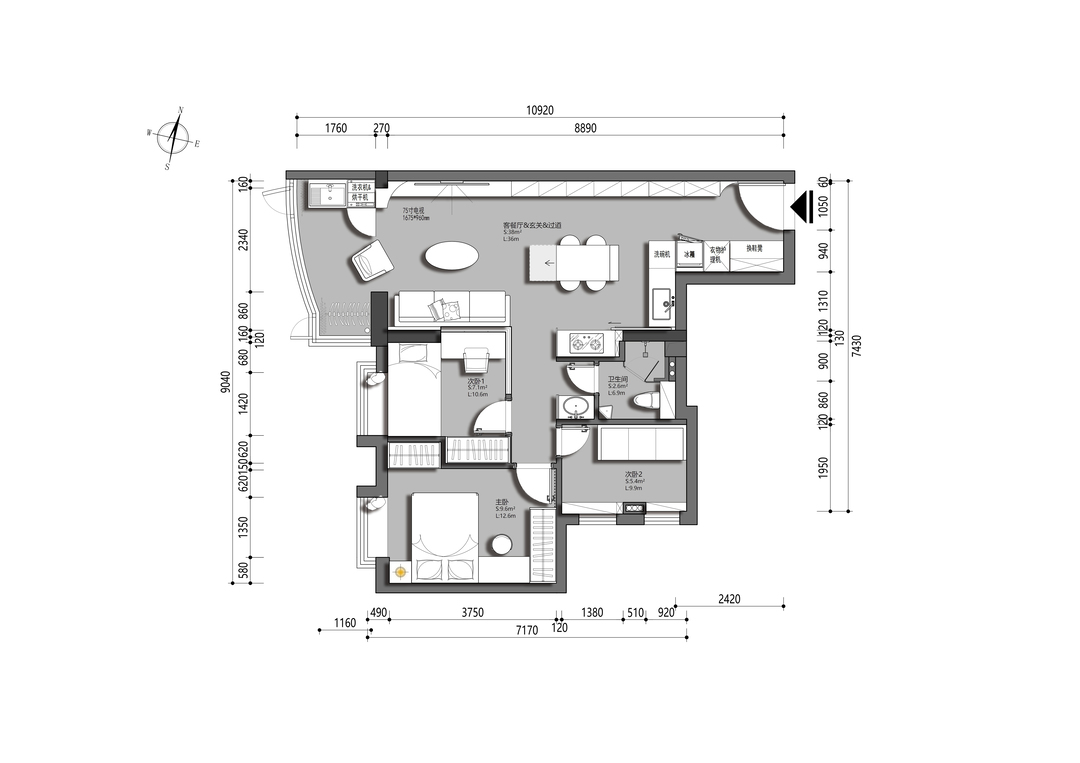
玄关区域左右两边都是柜体,一路延伸到厨房区域与定制柜体区域,小户型的储物空间一旦安排满足了,实际空间就会敞开许多。
柜体内嵌了一组玄关使用的换鞋凳,以及内藏式干衣柜,方便应对广州的阴雨天气。
一踏出玄关便是开放式的厨房与餐厅连接起来。
厨房使用常规的U字型连通,之所以看图片上没有完全连接起来是因为炒菜区域是因为承重墙隔断,在偏离承重墙的区域向洗手间内掏空出来的区域。
U字型的另一端是餐桌台,除了作为橱柜备餐的延伸以外,还可以用木色点缀厨房的氛围,与客厅地面的配色衔接起来
餐桌的侧面,就像是与灶台区域完全对应一样,特意在储物柜内凹陷出来一块区域。
承担餐边柜的职能,咖啡机等小电器都可以收纳在这里
客厅和餐厅厨房合并在整个大空间,储物柜也从玄关一路延伸至客厅,来保证视觉的统一。
不过考虑到整体客厅的深度不够宽,所以挖空电视柜下方,从而让电视区域看起来更加轻盈。
电视柜一般需要收纳一些诸如蓝光播放器之类的小物品,但为了保护电视柜的轻盈感,特意将这些物品都收纳至右侧的玻璃柜内,柜体侧面打开两个圆圈开孔进行散热。
所有的线材都要从墙体内去穿管走线,整个外观才会更加整洁
沙发选择墨绿色的搭配,在空间内组合成不同程度的“绿色”
背面继续用绿色玻璃开出一扇天窗,方便与儿童房进行互动。
另外整面大大的白墙,也可以通过玻璃杂志架与时钟来进行装点~
小摆件的部分则可以“随心所欲”一些,自由地添置一些个性的软装就可以搭配得很好看了。
阳台区域也与客厅融为一体,纯平嵌入的洗衣机&烘干机,只露出一小截的扫地机器人开口。
共同组合维护好一体空间的美感
主卧室的设计继续沿用客厅的设计语言,白调木色。
但把点缀的绿色做在了衣柜边上,护墙板的材质形成了一个可以翻折的衣帽架,小衣物都可以随手一挂
越小的空间其实越需要高度化的定制化,梳妆台与护墙板保持统一的高度,整洁而有序
衣柜部分也与橱柜有点像,都是向另一个房间“借出来”的空间,这也算小户型的俄罗斯方块,拼凑的美感
Q&A
Q:装修过程花了多长时间?
A:装修时间花了五个月的时间,从改造到入住全程,属于广州施工的正常时间节奏。
Q:说说是什么给了你灵感,打造出现在这个作品的?
A:灵感来源于房子本身的条件,每一堵墙每一面的造型,都直接通过原户型的窗户与承重墙切割出来的。
Q:你对这套作品最满意的地方在哪里,为什么?
A:最满意的地方在于配色选用玻璃这种材质进行呈现,白调原木色的配色很容易做得廉价,但是玻璃的点缀很好地提升了空间的活力。
Q:对平面布局做了哪些优化改动,为什么?
A:平面布局的改动主要是房间之间的关系,必须有一间房间是没有采光的时候,那这个房间就可以分配给洗手间了,保证其他区域的合理性。
Q:在整个装修设计期间遇到最大的挑战是什么?
A:遇到的最大挑战其实是来自收纳设计,空间本就局促的情况下,必须把所有杂乱的东西都收纳进柜体内,比如厨房下面极限尺寸塞进去了净水套装,每个尺寸都需要算得很准。
相关案例推荐
吴思昊
设计师相关作品
编辑精选

粤公网安备 44010602000156号