前言:
本案位于广州市白云区的精装房,最近几年精装房也成了设计改造的主流品类。
屋主非常不喜欢精装的配色,希望拆除地砖重新进行改造。但这类大改如果仅仅是改变配色又会有点可惜~
可惜的原因是“拆都拆了,怎么改得更多点?”
于是整次设计中我们一起打造了可开合可关闭的折叠门,实现书房&客厅“一键切换”,开敞空间与私密性通通满足~接下来我们一起来看看吧~
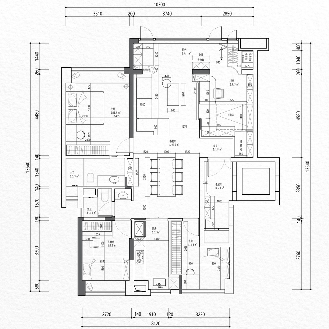
房屋原本是精装房,所以原始户型的格局非常方正,一梯一户,中置客厅,采光合理,户型方正,都是这间户型原本的优点。如果硬要挑出一些问题的话,那便是这两个:
① 厨房空间稍微小了一点,可以使用但不大气。
② 小客房的空间只能制作榻榻米房间,整体面积还是很小。
最后一个问题是主观问题,屋主只需要三间卧室,第四间房希望作为书房使用
那~知道了这些问题,就可以完全针对性地进行户型优化了:
① 厨房空间往餐厅方向延伸,客餐厅空间又接着往阳台方向合并,所以相当于借用阳台空间扩大厨房
② 小客房跟着厨房一起往外延伸,多出了一排安放衣柜的位置
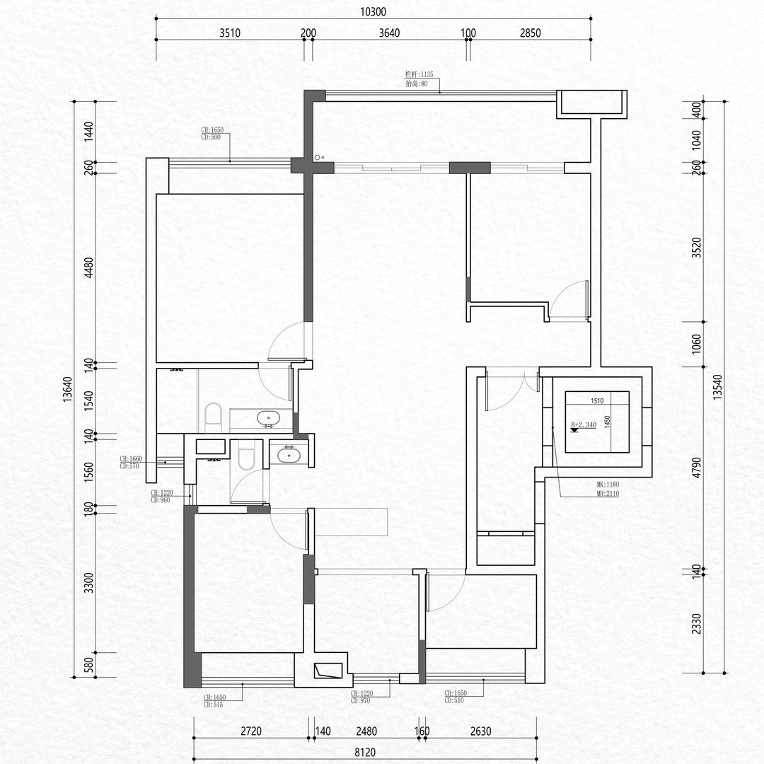
③ 直接拆除客厅与客房之间的隔墙,完全设计成一个全新的开放式书房。
电梯间是一梯一户,所以户型内部就没有常规意义上的玄关了,换鞋储存需求直接在电梯间完成。
进入屋内最直接看到的便是客厅空间,完全区分开精装的配色体系,整体配色干净简洁~
哑光暖白的素色地面,搭配浅米色艺术涂料墙面,最后辅助白色柜体与天花,超极简的配色体系构成了整个客厅的初印象
纯极简的空间也会有一个小小的缺点,“少了许多实用性的物品”。
而这次设计选择把这些小物品用作空间中的点缀配色,金属深灰的落地灯与小边几,木纹饰板的投影仪,都是空间中的细节小点缀
阳台合并后也成为客厅的一部分,但洗衣烘干的作用依旧不能丧失,这里选择全嵌入的洗烘套装,与柜体定制合并一体,达成美观上的和谐。
实用部分因为抬高了下层区域,拿取衣物晾晒的时候不用弯腰了,操作更加流畅
屋主平时并不经常看电视,于是用投影仪代替,平时需要使用的时候便降下幕布。
不观影的时候视野可以直接延伸到书房区域
之前提到的客房拆除墙体改造为书房就是这个空间,拆除后的墙体改造成暗藏抽拉门。
拉动门的第一扇,后面两扇会跟着动,快到关闭的时候会有缓冲,所以操作起来很方便。
开放后的书房可以很方便地与客厅空间联通,之前精装时“稍显古板”的电视背景墙秒变开敞空间。
楼下邻居上来参观的时候,还以为楼上户型不一样呢~
书房到底是需要静谧性还是开放性,一直是个可以展开讨论的话题,其实关键还是看对于书房的需求。
本案的屋主的需求只是轻办公,处理邮件和回复信息,那么开敞的空间感就是至关重要的。
餐厅与客厅是连通为一起的,配色上整体保持一致。
但为了区分餐桌的特殊性,这里刻意定制了胡桃木作为餐桌桌面,用餐时更有“居家感”
餐桌的两边柜体都留出了储物空间,方便存放餐具、酒品等物品,
并且一转身就可以使用,没有任何学习成本。此外,餐厅还安装了柔和的吊灯,灯距离桌子间尺寸70cm,既要柔和的光线又不刺眼。
餐桌的另一端有定制一个迷你小吧台,从厨房端过去的菜品可以临时摆放,还可以暗藏线路进去,方便轨道插座安装,平时桌上用一点小电器也不会显得凌乱了。
之前一直没有讲到的点是空间中的点缀色“克莱因蓝”,这是男屋主喜欢的颜色,同样把它制作成粹色玻璃桌腿,成为这个空间独特的亮点。
厨房空间就常规许多,所有的电器和拉篮全部暗藏处理,多余的棱角和把手都隐藏起来,让厨房外观看起来更加简洁大方。
岩板部分直接上墙处理,比起直接贴墙砖,这样的清洁效率更高~
穿过客餐厅之间的隐藏门,就可以进入主卧室了。
主卧室的整体风格就收敛了许多,因为精装木地板没有拆除,所以只需要添置床品和衣柜即可,属于改造中比较节约的空间。
现在的精装房越来越成为装修改造的主流户型,但很少有精装的效果就令人满意的。所以小范围的设计改造就变得很有必要了。
拆除不需要的部分,不好看的配色
重新定制自己喜欢的配色系统,整个空间就能焕然一新,既满足了个性化需求,又不会有太大的改动成本,还能让居住体验得到显著提升。这种改造方式对于精装房业主来说是一种性价比很高的选择~
感谢你看到这里,希望这个改造思路对大家有一些小小的参考~
Q&A
Q:装修过程花了多长时间?
A:装修时间花了半年,对于精装房的改造,属于标准的制作时间。
Q:说说是什么给了你灵感,打造出现在这个作品的?
A:灵感来源于屋主的需求,并不需要四间卧室,那剩下的书房改为开放式,就会成为这个空间最大的亮点。
Q:你对这套作品最满意的地方在哪里,为什么?
A:最满意的地方在于书房轨道门的构造,提前与定制方讨论好了轨道门的尺寸与承重标准,在木工阶段制作吊顶时对齐轨道一起制作,实际完成的效果看起来就会高度一体化。
Q:对平面布局做了哪些优化改动,为什么?
A:平面布局的改动主要是关键区域,厨房+书房+小客房,这些空间区域的定向化改造。
Q:在整个装修设计期间遇到最大的挑战是什么?
A:遇到的最大挑战其实是来自精装保留,虽然拆除了部分墙体与地砖,但是实际施工中需要装修师傅小心翼翼地改造,避免破坏原本的电路与管线。还有原本精装的中央空调,也是非常小心地拆装下来,重新挪位改造的。
相关案例推荐
吴思昊
设计师相关作品
编辑精选

粤公网安备 44010602000156号