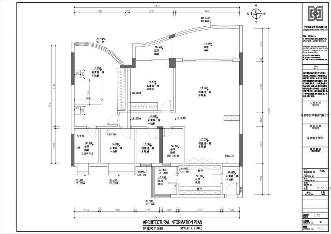
前言:
									改造需求:
1.改善家里采光差的现状,
2.解决厨房狭小、空间闭塞,
3.优化收纳问题:改变生活方式、居住状态及日常心情。
4.把四房改三房,并把书房扩大。
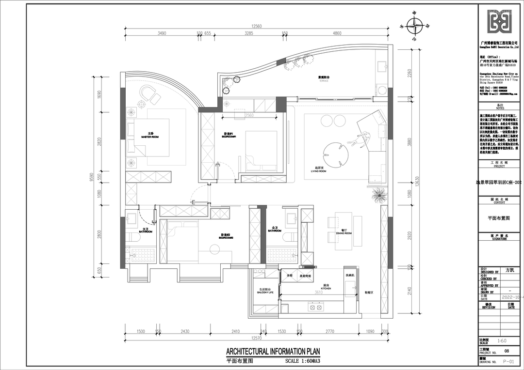
改造后:
1.将原厨房墙体拆除,入户一侧改作半墙+玻璃隔断。
2.西厨设计在餐厅区域,使用更加方便的同时还增加了厨房操作台面 满足了对西厨的执念。餐岛一体+储物柜,收纳满分!
3.女儿房门移动位置,与卫生间门错开。避免生活上的许多尴尬。
4.原书房与次卧隔墙拆除,改造成书房+临时客房的多功能空间。
									
相关案例推荐
网友评论
						
						
						
						
                        
						
						 
							博睿设计
设计师相关作品
 
 
 
												
													
														
															
																 
												
													
														
															
																 
												
													
														
															
																 
												
													
														
															
																 
												
													
														
															
																 
												
													
														
															
																 
												
													
														
															
																 
												
													
														
															
																 
												
													
														
															
																 
												
													
														
															
																 
												
													
														
															
																 
												
													
														
															
																 
												
													
														
															
																 
												
													
														
															
																 
												
													
														
															
																 
												
													
														
															
																 
												
													
														
															
																 
												
													
														
															
																 
												
													
														
															
																 
												
													
														
															
																 
												
													
														
															
																 
												
													
														
															
																 
												
													
														
															
																 
												
													
														
															
																 
                                                     
                                                         
                                                     
                                                         
                                                     
                                                     
                                                         
                                                     
                                                         
                                                     
											
										 
											 
											 
											 
											 
											 
														 
														 
														 
														 
														 
				 
                
 粤公网安备 44010602000156号
粤公网安备 44010602000156号