前言:
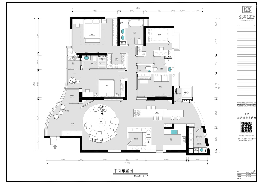
本案是一套位于天河区的旧房改造项目,三代同堂的居住成员,原有空间布局已无法满足当下生活需求及审美追求。随着家庭成员结构的变化和生活方式的升级,屋主希望重新规划空间,优化动线,提升居住舒适度,同时融入现代简约风格,打造一个通透、留白、富有呼吸感的居住环境。
设计师将空间重组,优化动线。打破原有封闭式布局,重新梳理公共区域与私密区域的关系,使客厅、餐厅、厨房形成流畅的互动空间,增强家人间的交流。以“简约、通透、实用”为核心,通过合理的空间规划和细腻的设计手法,为屋主打造一个既符合现代审美,又能满足三代同堂生活需求的理想居所。
1、原始结构隔墙较多,虽然面积大,但还是有收纳不够用、动线较乱的情况;
2、想尽可能多在房间看到南北方向的景观;
3、两个次卧房都希望有独立的卫浴间。
改造亮点:
1、动静区分,打造多功能的公共活动区,用储物间替代整墙柜;
2、社交化的餐厨区,满足多收纳、高效率、强互动的厨房;
3、三个房间都实现了独立的干湿分离卫浴间,打造套房式卧室。
将原入户阳台拆除隔墙,并入室内空间,形成开阔的入户区域,增强整体通透感。采用到顶鞋柜+开放格组合设计,既满足收纳需求,又保持视觉轻盈,避免压抑感。
以“大宅至简”的设计理念,还原设计的本质,褪去繁复装饰的表达外衣,将平层空间功能区块进行规整重置,构造一个外向型及内向型兼具,外显理性素雅、内存亲近温馨的居住空间。
改造后的入户区不再是传统的封闭式过渡空间,而是与客厅形成流畅互动的开放式格局。
自然光从阳台倾泻而入,贯穿整个公共区域,搭配留白墙面与简约家具,营造出通透澄澈的居住氛围,完美契合屋主对“呼吸感”家的期待。
模块化组合沙发采用轻量化设计,可随需求自由拼合(围合模式/散座模式),适配聚会、亲子互动、阅读等多场景。
艺术感留白墙面作为视觉焦点,几何弧面营造美术馆般的沉浸氛围。
沙发不靠墙形成环绕式行走路径,串联储物间、餐厅,增强空间流动感与趣味性。
黄金三角动线设计:严格按照"冰箱取物→水槽清洗→备餐区切配→灶台烹饪"的U型布局,将操作路径缩至最短,确保多人同时操作也不显拥挤。
通过传菜口增强厨房与餐厅的互动,以灵活布局适应不同场景,让三代人无论是日常围炉晚餐还是节日宴客,都能找到最舒适的共处方式。
2米长的花梨木实木餐桌,天然木纹质感温润,搭配同材质中岛台,既满足8-10人聚餐需求,又能作为备餐台延展厨房操作面。
餐厅不仅是用餐空间,更是家庭情感联结的枢纽。
中岛台一面是抽屉式收纳(餐具/酒具分区)兼顾实用与美观。另一面则是可作为简餐和下午茶使用的吧台区。
细节提升用餐仪式感,餐厅与厨房之间增设内窗,传菜递物无需绕行,备餐时也能与家人自然交流。窗台延伸也可作为小吧台,可临时放置咖啡机或早餐盘,晨间简餐无需入座。
卧室以纯净的白色、浅木色为主调,搭配低饱和度的软装,营造简约而不失温度的空间氛围。
优化灯光设计,结合无主灯照明与局部氛围光,打造层次丰富的光影效果。
通过科学的空间规划和人性化细节,在有限面积内实现了储物、洗漱、休息的完美融合,让每一天的起居都成为享受。
这间房间是小公主专属的惬意小天地,以成长性儿童房为主。窗边榻榻米床,地面铺设木地板,暗藏灯带勾勒出柔和轮廓。
房内有独立干湿分离的卫浴间,满足睡眠、储物、学习和卫浴的需求。这个房间像会呼吸的生命体,随着小主人的成长不断蜕变。
相关案例推荐
Johnny
设计师相关作品

粤公网安备 44010602000156号