前言: 不要复杂与繁琐,本案屋主唯独偏爱意式极简:整洁的空间结合实用的功能设计,成就家的舒适;而独特的灯光设计、精致的艺术线条,则能为简约自然的家带来独特的轻奢格调,满足品质生活对于美的追求。 根据屋主的需求和审美进行空间塑造,功能上通过墙体的挪移来释放更多的储物空间,达到整洁极简的空间感:构造玄关收纳、打造宽适餐厨还增设了洗衣房和储物间,女主人心爱的家用电器能够妥善安置,技术控男屋主购入的智能家居也能井井有条。 风格上则用大面积的留白营造家的明亮通透,高级灰调的进口家居进一步烘托空间质感。值得一提的是,贯穿空间的几何线条,我们都用灯光来表达,无主灯的设计搭配极具未来感的线性灯光,每当夜暮降临,简约质朴的家仿佛披上华服,其间的精致温馨,总能带给人无限的愉悦与惊喜。
原始户型图,原户型没有玄关,厨房空间也十分狭窄,客餐厅的异形区很容易空间浪费。 我们拆除了图中标红的墙体,对每个空间进行重塑,最大化释放空间,打造动线流畅、储物超强的舒适家。#户型 #户型图 #装修经验
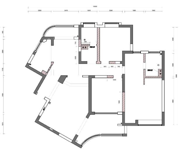
绿色部分为新砌墙体,构造玄关、客厅增加储物间,公卫和主卫都进行了一定的墙体挪移,充分考虑各个空间的储物设计和动线布局,力图使在家中的每一个空间每一个动作都最舒适。#客厅 #动线布局 #主卫
平面布置图 1.入户区增加了玄关,打造鞋柜衣柜于一体的玄关柜,进门的包包、钥匙等小物件都能安放。 2.增加玄关墙后,厨房空间也得到拓展:台面变长,双开门冰箱也能嵌入到新增的橱柜中。 3.餐厅与次卫墙这里做了一排餐边柜,部分墙体后移定制电器高柜,女屋主梦寐以求的美诺烤箱蒸箱都安排上了。 4.次卫干区借用了部分儿童房空间,打造成放洗衣机烘干机的区域,同时定制放吸尘器等卫生电器的高柜,小小空间得到极致利用。 5.压缩部分主卫空间,打造超大衣帽间拓展收纳,却不影响主卫干湿分离等舒适功能。 6.主卧部分墙体向次卧挪移15公分打造成电视背景墙,也丝毫不影响次卧的储物功能,空间依然宽适,超大书桌还
功能空间分解图
原始户型没有玄关,我们在这里增加了一面薄墙作为玄关,一整面墙的鞋柜增加入户收纳空间。 纯白极简的柜体底部悬空,一侧还做了黑色的开放层架,不仅能收纳一家三口的鞋子,进门时的包包和钥匙也能随拿随放,便于保持空间整洁。#玄关 #鞋柜 #收纳
墙面和顶面做了L形线性灯,精致柔和的灯光能为归家的人带来舒缓与温馨。#灯光 #灯 #墙
超大落地窗、大面积的留白让家清爽通透,高级灰的进口软装则进一步烘托空间质感。#高级灰 #落地窗 #窗
Zanotta的布艺沙发触感舒适,简约造型也十分契合精致低调的空间内涵。 客厅墙面都安装了隐形踢脚线,用细木工板和石膏板打底增加墙面垂直度,纯白的烤漆面板点缀金属腰线,细节之中彰显生活品质。#简约 #踢脚线 #布艺沙发
在白墙上安装了氛围灯,结合点光源和线性灯一起,层层铺叠,丰富空间层次。而斜面的处理也为平淡白墙增加更多艺术美感。#灯 #装修经验 #色彩
客厅没有电视,安装了投影幕布。一面带储物功能的装饰墙与新增的玄关墙相互呼应,底部的雾化壁炉为简约素雅的家带来更多的色彩与温暖,而且这壁炉有类似加湿器的功能。#壁炉 #客厅 #电视机
墙面一侧同样镶嵌黑色钢板开放柜,艺术造型的摆件于低调中体现屋主的品味与格调。#黑 #墙 #摆件
从客厅经过来到通往餐厅和卧室的走廊,不规则的线性灯光营造个性独特的未来感。
灯光亮起,平淡的空间熠熠生辉,通向卧室的长走廊也变得趣味盎然!
右侧墙面有一个近乎隐形的秘密机关——隐形门。门后便是利用客厅异形空间打造的储物间,炫酷的线性灯把实用的功能空间装扮成了精致的艺术装置。
打造餐厨一体的开放式厨房,新增的玄关墙扩大了餐厅空间,也让冰箱有了安放之处。 全屋还装了新风,再也不怕雾霾天气了,少开窗屋内灰尘也会少很多。餐厅的顶面还安装了,背景音乐,每天做饭和就餐的时刻,都在欢快的音律中,烧菜的动作都要跟着律动摇摆了。#装修经验 #餐厨一体 #餐厅
改造后的餐厅三面采光,在这样雅致舒适的空间里,烹饪、用餐都是一种幸福的享受。#烹饪 #餐厅 #装修经验
卧室入墙式的隐形衣柜极大的拓展卧室的收纳空间,高级灰的质感与色调也能美化入户的视觉体验。#卧室 #玄关 #收纳
女主人睡眠比较轻,我们选用了具有吸音效果的硬包材料做卧室的床头背景,同时做了精致的半墙造型,来丰富空间层次。#床头背景墙 #卧室 #硬包
上半墙造型是石膏板做出来的留缝造型,墙面干净且有层次,表面贴了海基布,刷完看起来像墙纸,素雅舒适,而且防止墙面开裂。利用墙面厚度定制了四格抽屉+三层搁板,进一步拓展卧室的收纳空间。#墙 #半墙 #卧室
全屋都是柔和的点光源,同样采用智能控制,一键操作,舒适便利。卧室顶面也内嵌了智能音箱,睡前可以听一曲助眠的音乐,每一个清晨也伴随着美妙的音乐醒来,新的一天也充满动力。#音响
次卧是为偶尔小住的父母预留的,稳重的木色搭配水墨画的画卷壁纸,整体素雅又舒适。#原木色 #卧室 #色彩
电视背景墙做了整面墙的通顶衣柜,次卧也拥有充足的收纳空间,按压式柜门保持极简的视觉观感。#电视背景墙 #柜门 #卧室
儿童房保持极简格调,我们在空间中加入了清新的莫兰迪色,具有艺术感的几何与色彩,为孩子提供无限想象力的灵感空间。#色彩 #几何 #莫兰迪色
儿童房也定制了衣柜和书柜,满足孩子不断成长的需要,风车造型的层架既是装饰也能收纳书籍和摆件,童趣十足、充满创意。#儿童 #书柜 #儿童房
相关案例推荐
赫设计丨黎易来-LEE
设计师相关作品

粤公网安备 44010602000156号