前言: 建筑大师密斯经典的一句“Less is more(少即是多)”,被无数设计师奉为圭臬。去掉多余的装饰,实现功能与艺术的统一,在本案得到了充分的展现
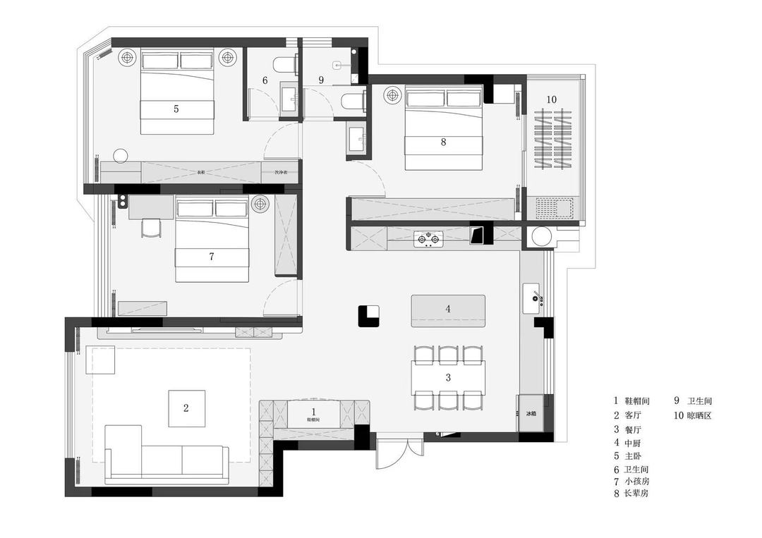
客厅沙发侧边的书墙背后是鞋帽间的所在玄关空间,我们增加了隔断设计,使其更加独立。同时利用鞋帽间的不同形式,实现了衣物、鞋帽的收纳功能,为入户后的生活动作提供了便利。形成“1+1”的可变空间组合,既满足了收纳需求,又实现了社交空间与私人空间的转换。
此外,设计师重新整合了原本的露台空间和厨房区域,改为开放式的厨房区,进一步提高了公共空间的开阔性和通透度。储物空间均匀的分布在房间各处,公共空间保持简洁和整体性,既满足了视觉上的美学效果,又不会影响屋主的日常使用。
内部空间服从于周围的景观的设计理念,让我们十分关注建筑、住宅和自然的交互、通透。因此,更是将厨房中岛吧台与餐桌设置在平行状态,希望屋主能够更多享受室外空间的时间。岛台一侧,黑色厨柜内设燃气灶,作为中式厨房的天地,爆炒蒸煮都不在话下。
当空间精简到极致的时候,我们就会回归到生活中最基本的生活日常
在简约大气的空间中,巧妙置入东方元素,平衡了东方传统家庭的生活方式和西式美学。设计美学的实现不应建立在牺牲日常使用舒适度的基础上,而这种恰到好处的融合则解决了可能存在的矛盾。
主卧重新规划了卫生间,仅预留马桶间和台盆区,方便日常使用。杜邦一体台小台盆,既方便洗手,又能给女士补妆置物功能满足高效的生活需求
卧室是整个家中唯一需要私密性的空间,仅保留了休息和储物两个基础功能。卓越的空间尺度,在出让半个卫生间后依然毫不逊色。温馨自然的浅木色地砖,质感和触感都更加柔和。天花板的射灯装在床尾走道,床头仅用见光不见灯的线性灯带和点光源,来营造舒适的睡眠氛围。空间内没有任何多余装饰,极简床头柜,两盏暖黄的台灯,传递着屋主极简至美的审美意趣。
整墙的定制衣柜设置在进门一侧,拉平墙面,顶天立地的通高设计,增加储物空间的同时,也让室内更具一体性。白色柜体弱化了大体量家具的存在感,上方灯带的设计则为原本平淡的空间,增添了一些精致感。
相关案例推荐
陈裕露

粤公网安备 44010602000156号