前言:
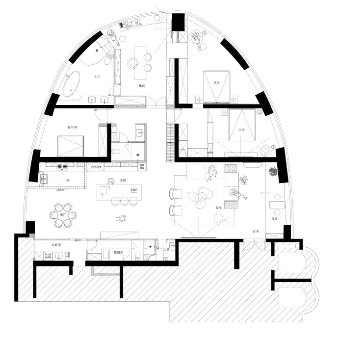
									本案,位于王子晶品,300㎡ 弧形玻璃幕墙结构私宅,原户型为三房两厅四卫,由于客餐厅纵深较长,存在采光不足的问题,且对于一家三口而言,空间利用率稍显浪费,基于此,屋主最终决定全拆处理。
风格上,设计师以自然复古为基调,融入藤编元素与法式细节,营造出既古典又不失现代感的生活氛围。墙面与天花板做了一体化处理,视觉上更显连贯柔和。客厅区域打破常规,将吊顶全部打开,只保留结构梁体,并运用贴边设计勾勒出精致的穹顶造型,不仅提升了空间层次,也强化了整体氛围的独特性。
									
轴测图
轴测图
归家伊始,开阔的客厅景象便如画卷般徐徐展开。客厅与入户区域无缝衔接,形成一道流畅的居家洄游动线。摒弃传统的隔断,让归家的第一眼便是一派开阔明朗,营造出既独立又富有仪式感的入户体验。
客厅右侧,是为父母辟出的一方茶室。百叶帘借景生情,将光影裁成诗行;无论是晨起独坐,品一盏清茗,还是午后与挚友笑谈风月,皆可于此尽享隔绝尘嚣的宁静与美好。
轴测图
为重塑空间格局,设计师将保姆间与客卫进行精简,释放出的面积让渡给公共区域,令整个家的气场随之流动、增强。餐厅被移至窗边,让每日的用餐时光都能沐浴在温暖的日光中,美食与光影在此共舞。
厨房则被重新规划为横向展开的中厨与西厨。开放式的双厨区不仅功能分明,更打破了空间的隔阂,让家人在烹饪与互动中,感受亲密无间的便利与温情。
轴测图
主卧套房是女儿的小世界。设计师将原本占据最佳采光位置的主卫向内挪动,释放空间,并拆除了原来的衣帽间和门厅,将这些区域完全打开,释放的空间则打造了一个工作室。
女儿是手工艺爱好者,这里,不仅有展示她手工娃娃的8扇大面积玻璃橱窗,还有足够宽敞的桌台,让她的灵感自由飞翔。工作间的中心是一个两米二的大板桌,既可作为工作台,也适合朋友来访时一起交流创作。
在大板桌的一侧,设置了隐藏式的衣柜,外观看起来像护墙板,实际上提供了大量的储物空间。沿着窗户边则打造了一个宽敞的卡座,配有软包靠背,增加了舒适度。卡座对面还摆放了一台电视机,无论是独自放松还是与朋友相聚,这里都是一个理想的休闲角落。
相关案例推荐
							示觉设计
设计师相关作品
												
													
														
															
																
												
													
														
															
																
												
													
														
															
																
												
													
														
															
																
												
													
														
															
																
												
													
														
															
																
												
													
														
															
																
												
													
														
															
																
												
													
														
															
																
												
													
														
															
																
												
													
														
															
																
												
													
														
															
																
												
													
														
															
																
												
													
														
															
																
												
													
														
															
																
												
													
														
															
																
												
													
														
															
																
												
													
														
															
																
												
													
														
															
																
												
													
														
															
																
												
													
														
															
																
												
													
														
															
																
												
													
														
															
																
												
													
														
															
																
												
													
														
															
																
												
													
														
															
																
												
													
														
															
																
												
													
														
															
																
												
													
														
															
																
												
													
														
															
																
												
													
														
															
																
												
													
														
															
																
												
													
														
															
																
												
													
														
															
																
												
													
														
															
																
                                                    
                                                        
                                                    
                                                        
                                                    
                                                        
                                                    
                                                        
                                                    
                                                        
                                                    
											
										
											
											
											
											
											
														
														
														
														
														
				
                
粤公网安备 44010602000156号