前言: 本项目为105平方米的毛坯房,我们以“时光叠影”的设计概念,打破传统户型的束缚,重塑空间格局。追求一种历经岁月沉淀的质感与松弛自在的生活氛围。通过将三室改造为两室,我们极大地优化了空间动线与功能分布,以中古风格为基调,利用胡桃木的温润、藤编的质朴、黑色的深邃以及灵活的布局,共同勾勒出一个充满故事感且极具实用性的生活场域。这里不仅是居所,更是一个能容纳主人志趣与时光流转的收藏馆。
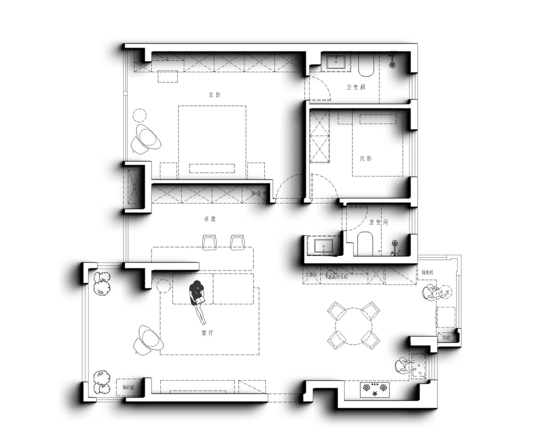
原始户型图
本次户型改造,我们通过一系列“减法”与整合,实现了空间利用最大化与动线优化:
公区联动:打通客厅与书房、厨房与餐厅,并将北阳台纳入,形成一个开阔通透、功能复合的公共活动区。
私区优化:重新规划主卧布局,去除衣帽间换取更宽敞舒适的休憩氛围;同时改变北卧门洞朝向,优化动线。
细节提升:卫生间实现干湿分离,进一步提升使用体验与整洁度。
客厅是整个家的精神中心,我们没有以电视为中心的传统布局:
去电视墙设计: 摒弃了固定的电视背景墙,选用实木中古开放格矮柜与藤编柜进行组合搭配,既满足了收纳与展示需求,又通过材质的碰撞(木材的沉稳与藤编的自然)奠定了空间的中古混搭基调。可自由移动的电视架,赋予了空间极高的灵活性,让客厅可以根据不同场景(会客、阅读、运动)自由切换模式。
家具与氛围营造: 一款经典的黑色皮质沙发与复古格子地毯锚定了客厅的视觉重心,传递出低调而复古的质感。沙发背后,我们以一张悬浮式书桌作为客厅与书房的功能分界。此设计精妙之处在于,它划分了功能区域,却未阻断视觉的连贯性,保持了空间的整体性与开阔感。
书房是与客厅融为一体的延伸空间,强调功能性与整体美感:
满墙系统收纳柜: 整面墙采用胡桃木色定制收纳柜,强大的储物能力将书籍、文件、杂物完美隐藏,保证了空间的整洁有序。深胡桃木色的运用,与客厅的浅色调形成对比,成为空间里一道沉稳而富有质感的背景,仿佛一个巨大的收藏盒,承载着知识与记忆。
空间重构与视觉延伸: 果断拆除了客厅与书房之间的非承重墙,使两个功能区完全贯通。这一举措不仅让自然光线无碍穿梭,极大地提升了空间的通透感与视觉面积,更促进了家庭成员在不同区域的互动与交流。
以餐桌为核心: 一张黑色圆形餐桌成为本空间的绝对主角,其流畅的造型与深邃的色彩,凝聚了视觉焦点。上方搭配一盏复古吊灯,营造出温馨愉悦的用餐氛围。
U字型高效布局: 围绕餐桌的三面U型空间,我们进行了极致的功能规划:
一侧为厨房操作台: 满足洗、切、炒等全部烹饪需求,动线流畅。
一侧为多功能餐边柜: 提供额外的储物与备餐空间,方便实用。
一侧为家政区: 将洗衣机和烘干机嵌入式安置,解放阳台,使日常家务动线最短化。
此布局真正实现了“小空间,大利用”,形成了便捷高效的居家动线核心
主卧是静谧的休憩场所,设计上在满足强大储物功能的同时,追求视觉的舒缓与平衡。
一体化定制设计: 整面墙的大衣柜提供了充足的衣物收纳空间。设计巧思在于,在衣柜中利用胡桃木色“挖”出了一个化妆台区域,打破了满墙柜体的单调感,实现了功能与美学的无缝融合。
色彩与灯光: 空间以浅色为基底,营造宁静放松的氛围。胡桃木色的化妆台与黑色床铺软装作为点缀,沉稳而高级。照明上,采用温暖的主灯与床头小吊灯相结合的方式,提供整体照明的同时,也能满足睡前阅读等局部照明需求,营造出温馨且富有层次的灯光环境。
相关案例推荐
山舍建筑设计
设计师相关作品
编辑精选

粤公网安备 44010602000156号