前言:
住在老厦门中心区的高层,视野可以跑得很远:一面是人流如织,车马如梭,都市的快节奏都在闪烁的灯里;另一面又是晴好的天,翠波山海,一碗茶汤就能说完的小岛慢生活。
屋主一家两代人习惯了这样的生活圈,在小孩出生后,他们选择在同小区购置新房,和父母维持着一碗汤的距离。
屋主的本职工作与商铺装修设计相关,但没有亲自操刀设计自家房子,是因为他知道在精细化分工下,“隔半行”都会产生知识盲区。所以当屋主的设计院朋友向他推荐了理居,看完我们落地的风格化案例后,他觉得也许这就是他想找的,能带给他原创惊喜的设计公司。
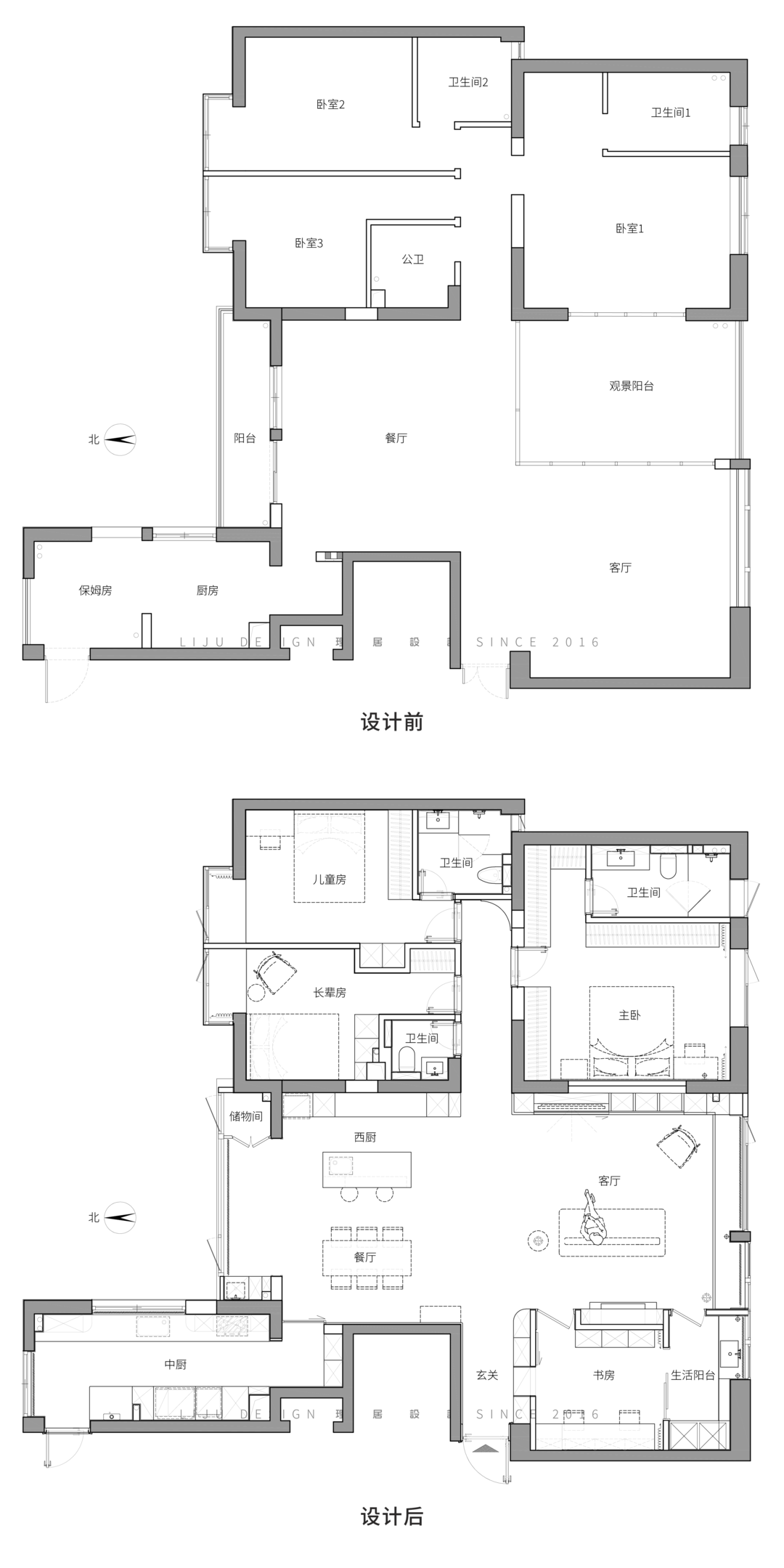
原户型的5房配置完全超出屋主一家三口的居住需求,房子的隔断方式又挡住了采光和窗景,远没开发出大平层的体验感。而因为交错的梁位问题,同小区业主们的常规做法依旧是遵循开发商的规划,担心暴露出来的梁柱影响居住感受。从全局出发,理居设计师涂启华决定重构空间关系。
● 将原始格局中的观景阳台隔断取消,对流、采光、窗景全部打通,获得了独一份的大横厅。
● 入户位置增加书房,形成通道式玄关。
● 取消保姆房,局促的厨房有了更大的操作空间,释放出的窗户,补足所需的光线。
实木地板
书房
现代
玻璃移门
办公椅
地板
定制柜
书桌
书架
轻奢
入户的自然光是从书房借的。在换鞋凳的位置,开个小窗口,小朋友可以开发独特的回家路线,增加趣味交互,缺乏采光的区域也不会憋闷。
现代
地板
灯具
客厅
艺术漆
沙发
轻奢
电视墙
电视柜
窗帘
好的平面布局,会重新分配声、光、气。
大横厅的出现,让整个空间更加规整,两面的光、气流动顺畅,城市的山景和车水马龙像动态的画嵌入家中。
现代
地板
装饰画
客厅
艺术漆
沙发
饰品
轻奢
电视墙
电视柜
原本担心横亘在公区的横梁,在这个家里并不引人注意。
异形的壁炉、金属的光泽、优秀的山景都在抢夺视线焦点,再加上半吊的方式弱化了天花和横梁的高度差,除了感受大平层的快乐,其他都是次要的。
充满质感的沙发背景中,隐藏着书房与生活阳台的入口。
屋主对设计师最满意的就是,能从方案中看到他独特的思考,在落地过程中能精准把控色彩以及材质形态。
从普通漆面,到金属漆,再到拉丝不锈钢,金属的光泽感在不断递进中,营造出视觉中心。
绿植
现代
餐椅
餐厅
地板
装饰画
餐桌
灯具
餐边柜
轻奢
橱柜
增加的西厨岛台,可以创造多样化的生活场景,不论是酒水咖啡,聚会简餐,还是补充收纳,都非常方便。
虽然可以用米色概括家的大基调,但在色卡上,白也是五彩斑斓的。多一分太腻,少一分太冷,现在这个组合方式,刚好是屋主一家满意的色调。
厨房和餐厅看似是两个独立空间,实则就是一门之隔,使用动线并不长。
冰箱
现代
地板
洗碗机
油烟机
轻奢
烤箱
瓷砖
橱柜
厨房
嵌入式家电
壁柜
冰箱
现代
地板
洗碗机
油烟机
轻奢
烤箱
瓷砖
橱柜
厨房
嵌入式家电
壁柜
窗景好像是厨房的天然去油剂,光线好到屋主太太直呼“以后做饭要擦防晒了”。
主卧用大量的定制组柜满足骆先生的强收纳需求,空间利用率的提升让主卫有更好的体验。
相关案例推荐
理居设计
设计师相关作品

粤公网安备 44010602000156号