前言:
不卷生活 不追物质
屋主性格随和,对物质要求不高,一心向往回归自然的生活,期望新房更安静,也盼着新房能满足自己的音乐爱好,又能让狗狗自在活动,随时在阳光下享受惬意时光。
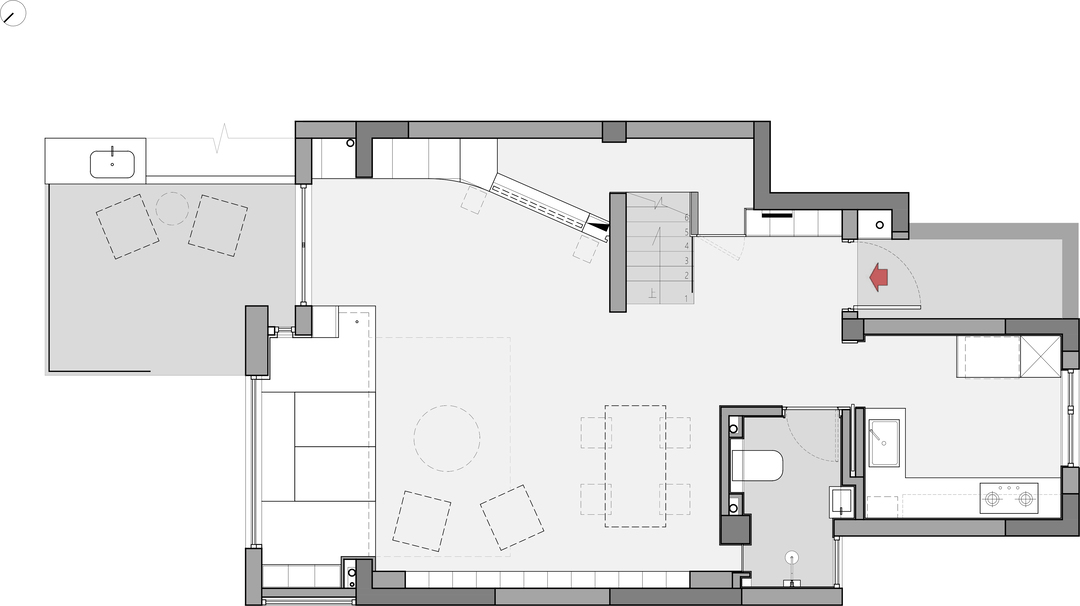
将厨房迁移至开发商附赠区域,在显著扩容厨房空间的同时,最大化拓宽了客餐厅的衔接区域,让空间联动更显流畅。
南阳台整体纳入室内,设计为可开合地台,丰富使用场景;西阳台则向内退移,保留独立户外阳台。
1st floor形式与功能在空间里共鸣
一扇窗,把自然装进家
将南侧阳台整体纳入室内,打造可开合的大型地台设计。这扇窗的设计以景观为导向,最大化观景效果。让外面的绿植、阳光直接进来,这一设计既满足日常午休的舒适需求,又能无遮挡欣赏户外景观,让休闲与观景功能在同一空间自然融合。
在实现观景体验的同时,在这个区域还做了一些收纳,从而更全面地满足屋主在此处休憩放松的多元需求。
“斜”着的背景墙
基于屋主对电视布局的个性化需求,设计师将电视背景墙采用弧形工艺进行处理,既巧妙规避了视觉直对的局促感,又为空间增添了灵动的设计韵律。
这一设计,也恰好契合了屋主偏爱于窗前静憩的生活习惯。
背景墙后设设备间,音效呈现佳,弧形墙面与设备柜形成统一界面。
入户焕新记
进门右侧增设鞋柜与衣柜组合收纳区,满足日常鞋履与衣物的存放需求;楼梯拐角处设“800库”式储物间,让家庭衣帽收纳功能得到进一步补充。
拆除开发商原有的陡峭楼梯,重新设计并延伸踏步形态,既优化了入户第一眼的视觉观感,又让通行更显平缓舒适。立面处理则以极简风格为主,搭配利落的构造组合,让入户区域更具简洁大气的设计感。
在扩容厨房空间的同时,也将客餐厅的衔接区域进行了最大化设计,让烹饪场景与起居空间的互动感更为流畅自然。
整个餐厨空间以质朴藤编、温润实木与极简吊灯营造自然质感,浅灰砖墙与纯白收纳区形成材质对话,于简约中藏着对生活美学的精致表达。
2nd floor 实用与可变的同频共振
一套“灵活”的套房
卧室巧妙运用移门进行空间分隔,既保留了整体空间的通透感,又灵活满足了屋主不同的居住需求,兼顾实用性与设计巧思。
在软装上以大面积留白奠定通透简约的基调,巧妙利用衣柜替代传统墙体进行空间分割,同时在衣柜端口增设水槽,让收纳与实用功能在细节处自然融合。
公共区域采用马桶间与台盆区的独立分区设计,既保障了使用时的私密性,又让空间动线保持灵活通畅,提升了整体使用效率。
云行空间建筑设计
设计师相关作品
编辑精选

粤公网安备 44010602000156号