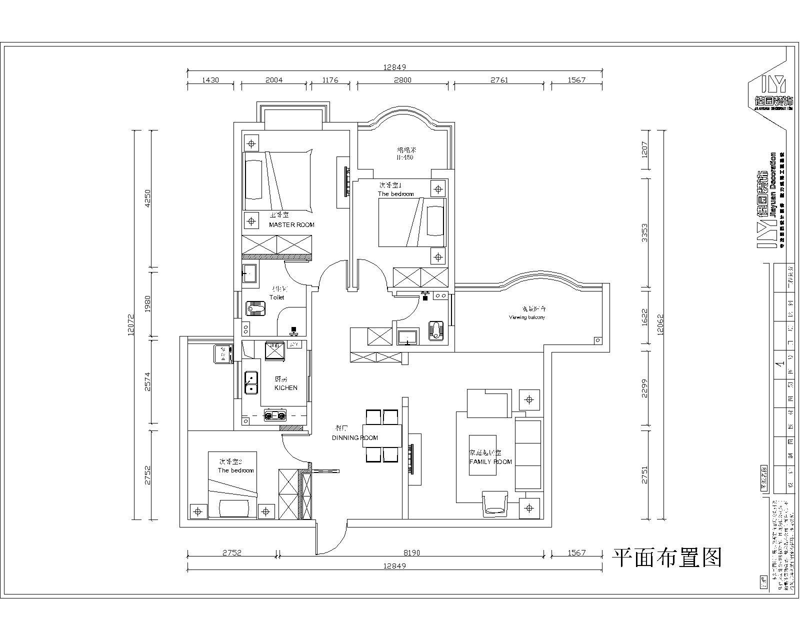
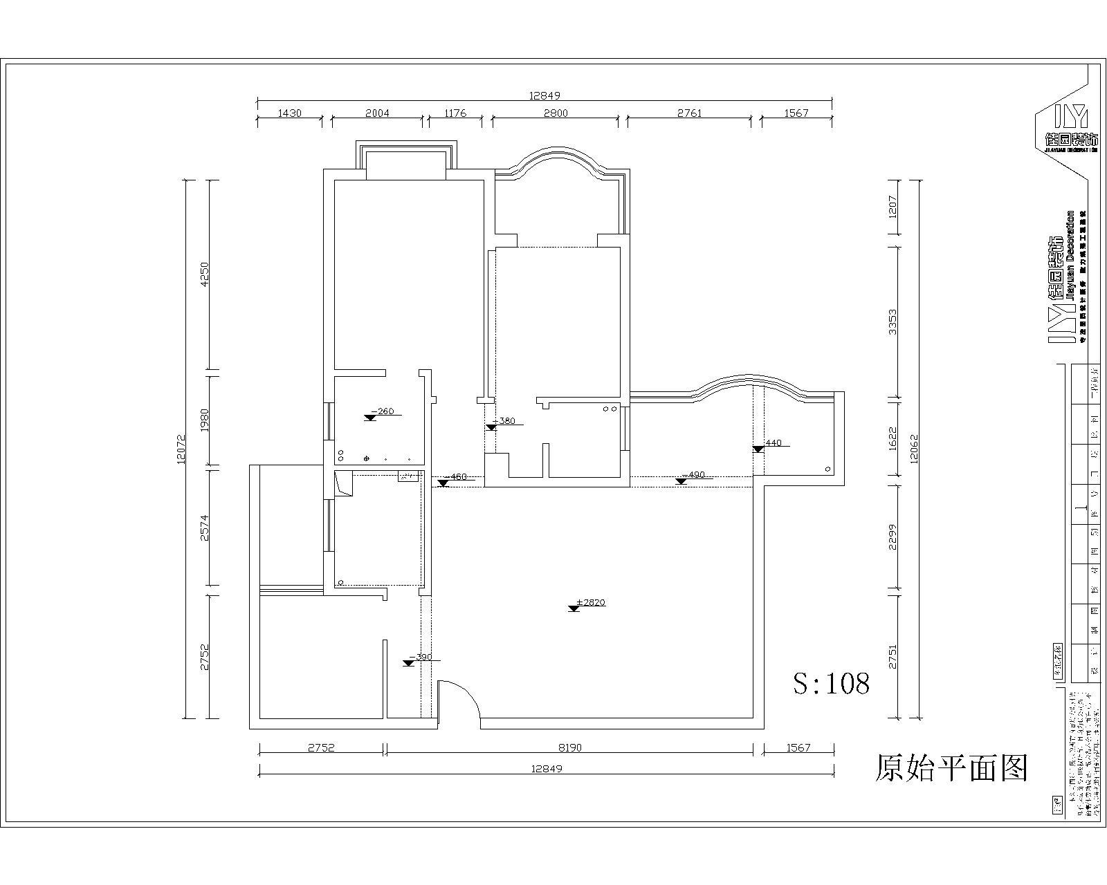
前言: 设计机构:佳园装饰六盘水公分司 设计风格:现代简约风格 工程地址:麒麟大厦 建筑面积:123㎡ 工程造价:整装16万 设 计 师:朱丹 平面布置图: 家是心灵的港湾,“现代简约风格”以其纯美的色彩组合,赢得人们对它的喜爱。随着人们在旅游中感受到简约的魅力,“简约但并不简单的装饰风格”。当疲惫的身心对家的依恋越发强烈,人们想要的是轻松、自由的环境,“现代简约风格”自然就成为家居设计的一种风尚。 设计说明:本案以“粉白为基调”,美学上推崇“唯美的色彩”,在居室的空间的处理上,力求表现自然轻松的情趣,设计上讲求色彩关系,注重大小色块间的组合,地域性的后期配饰融入设计风格之中。 想要更多个性设计方案, 报名免费预约我们的专业设计师吧! 地址:六盘水南环路南凤天城二期(市一中斜对面北盘江大酒店二楼) 热线:0858-8107188 网络报名地址:http://lps.gz-jyzs.com/ 微信报名:长按二维码关注佳园装饰即可报名
相关案例推荐
网友评论
张青江
设计师相关作品

粤公网安备 44010602000156号