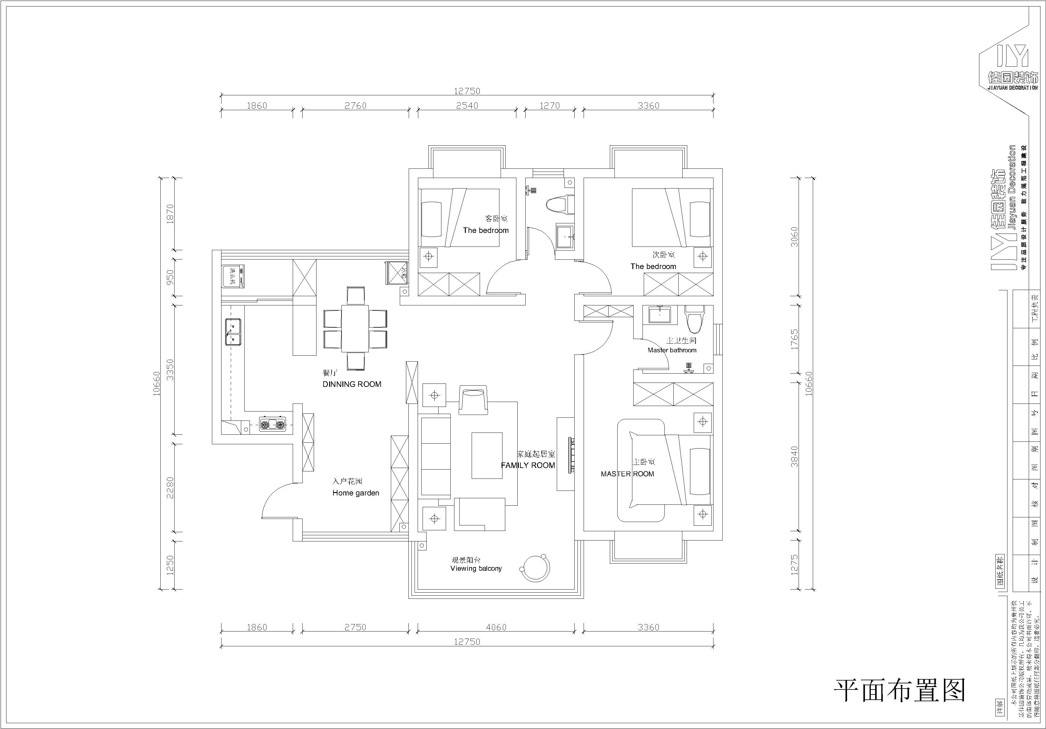
前言: 本案是一个三室两厅一厨两卫带一个入户花园的户型,在风格上面选取的是当下主流的现代简约风格。在造型上面没有过多的修饰,本案的造型都比较简单,多运用的是直线的线条美感。给人一种清新明快的感觉、包括电视背景墙的处理也起到了延伸空间的作用,可以看出设计师在这些方面考虑得是比较到位的。在颜色的选取上选取的是比较偏向于黑白灰的感觉、没有太多鲜艳的颜色,这样的好处是不会因为随着时间的推移使人产生视觉上的疲劳感,在储物空间的考虑上也是非常多的 从方案上可以看出储物是不成问题的、这样简约而不简单的作品才能称之为一个好的设计。 设计机构:佳园装饰六盘水公分司 设计风格:现代简约 工程地址:帝都新城 建筑面积:136㎡ 工程造价:11万 设 计 师:苏劲松 平面布置图: 想要更多个性设计方案, 报名免费预约我们的专业设计师吧! 地址:六盘水南环路南凤天城二期(市一中斜对面北盘江大酒店二楼) 热线:0858-8107188 网络报名地址:http://lps.gz-jyzs.com/ 微信报名:长按二维码关注佳园装饰即可报名
相关案例推荐
网友评论
张青江
设计师相关作品

粤公网安备 44010602000156号