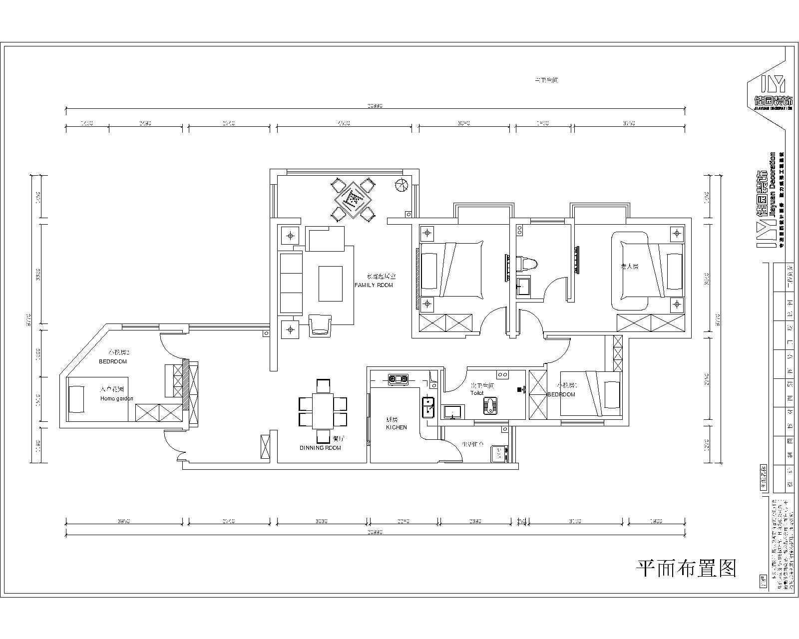
前言: 设计机构:佳园装饰六盘水分公司 设计风格:欧式风格 工程地址:翰林康郡 套内面积:136㎡ 工程造价:166800 设 计 师:黄丽江 平面布置图: 设计说明:奢华中的浪漫,精雕细琢,镶花刻金等都给人以奢华的历史痕迹和浑厚的文化底蕴, 给人以奢华繁琐的感觉,色彩方面大多采用金色、褐色、或暗红等颜色, 在这套案例中,设计师尽可能的简化,使之更贴近生活, 舒适安逸的同时又给人一种尊贵之感,运用用现代的手法和材质还原古典气质, 注重装饰效果,室内大量的运用陈设品来增加历史气息, 让人不在享受物质文明的同时,还能在精神上的到慰藉 。 想要更多个性设计方案, 报名免费预约我们的专业设计师吧! 地址:六盘水南环路南凤天城二期(市一中斜对面北盘江大酒店二楼) 热线:0858-8107188 网络报名地址:http://lps.gz-jyzs.com/ 微信报名:长按二维码关注佳园装饰即可报名
相关案例推荐
网友评论
张青江
设计师相关作品

粤公网安备 44010602000156号