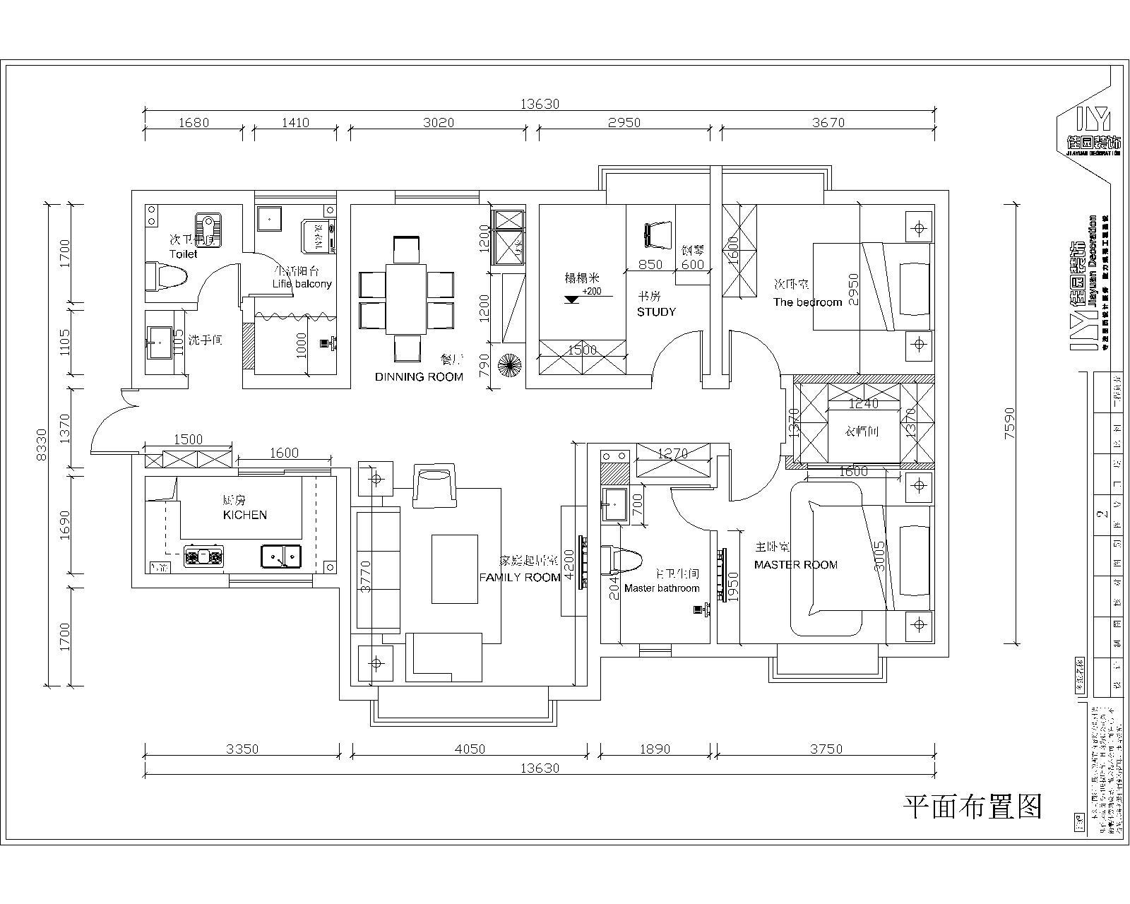
前言: 不同的家装风格演出各样的家园风情,含着千姿百态的生活 乐趣,而追求简练、明快、浪漫、单纯和抽象的欧式风格,将让你的家园更加单纯、每天快乐浪漫。欧式的居室有的不只是豪华大气,更多的是意境和浪漫。通过完美的曲线,精益求精的细节处理,带给家人不尽的舒适触感,实际上和谐是欧式风格的最高境界。欧式风格强调以华丽的装饰、浓烈的色彩、精美的造型达到华贵的装饰效果。欧式客厅顶部用大型灯池,并用华丽的枝形吊灯营造气氛。墙面用欧式墙纸,以衬托豪华效果,地面材料以地砖为主。欧式客厅用家具和软装饰来营造整体效果,浅色的像木和家具,色彩鲜艳的布艺餐椅,都是本案欧式客厅里的主角。精美的油画,制作精良的雕塑工艺品,都是点染欧式风格不可缺少的元素。 设计机构:佳园装饰六盘水公分司 设计风格:欧式风格 工程地址:钢城花园 建筑面积:114㎡ 工程造价:12万 设 计 师:潘依雪 平面布置图: 作品欣赏: 想要更多个性设计方案, 报名免费预约我们的专业设计师吧! 地址:六盘水南环路南凤天城二期(市一中斜对面北盘江大酒店二楼) 热线:0858-8107188 网络报名地址:http://lps.gz-jyzs.com/ 微信报名:长按二维码关注佳园装饰即可报名
相关案例推荐
张青江
设计师相关作品

粤公网安备 44010602000156号