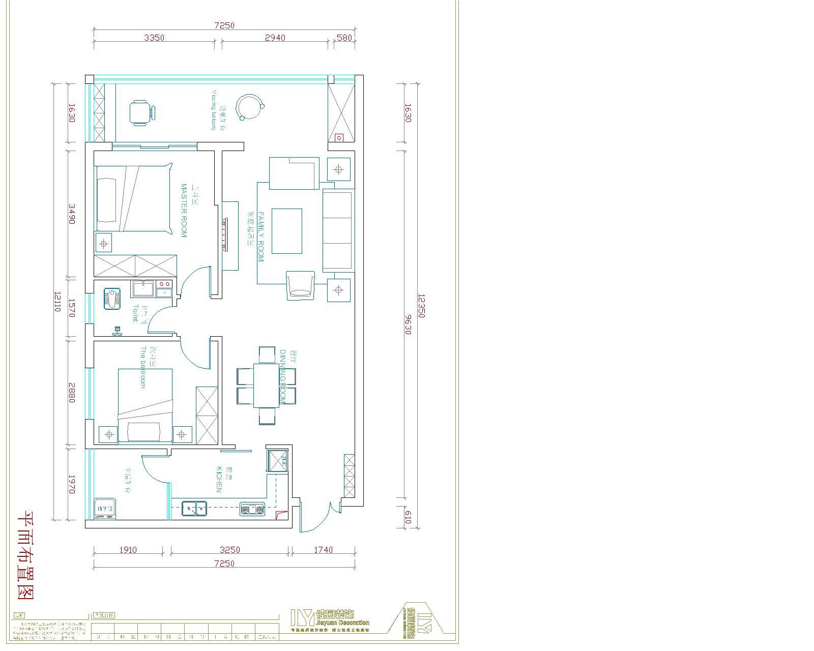
前言: 设计机构:佳园装饰六盘水公分司 设计风格:地中海风格 工程地址:南凤天城 建筑面积:87㎡ 工程造价:全包8.8万 设 计 师:苏劲松 平面布置图: 设计说明: 地中海风格的基础是明亮、大胆、色彩丰富、简单、民族性、有明显特色。地中海风格的美,包括“海”与“天”明亮的色彩、仿佛被水冲刷过后的白墙、薰衣草、玫瑰、茉莉的香气、路旁奔放的成片花田色彩、历史悠久的古建筑、土黄色与红褐色交织而成的强烈民族性色彩。在家具选配上,通过擦漆做旧的处理方式,搭配贝壳、鹅卵石等,表现出自然清新的生活氛围。在色彩上,以蓝色、白色、黄色为主色调,看起来明亮悦目。在材质上,一般选用自然的原木、天然的石材等,用来营造浪漫自然。在造型上,广泛运用拱门与半拱门,给人延伸般的透视感。 想要更多个性设计方案, 报名免费预约我们的专业设计师吧! 地址:六盘水南环路南凤天城二期2楼(市一中斜对面北盘江大酒店二楼) 热线:0858-8107188 网络报名地址:http://lps.gz-jyzs.com/ 微信报名:长按二维码关注佳园装饰即可报名
相关案例推荐
网友评论
张青江
设计师相关作品

粤公网安备 44010602000156号