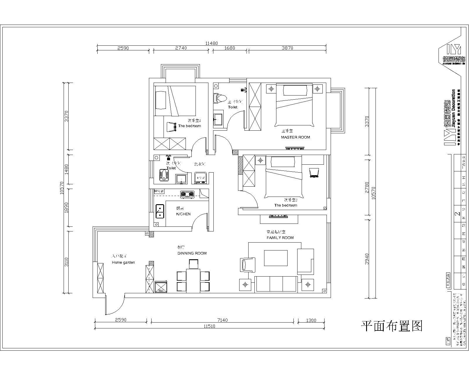
前言: 居室作为人的休憩场所,首先强调其实用的功能。舒适是家居的首要前提,室内设计是建筑的灵魂,是人与环境的联系,是人类艺术与物质文明的结合。佳园装饰设计把空间效果作为建筑艺术追求的目标。室内设计是建筑设计的继续和深化,是室内空间和环境的再创造。佳园装饰总是从大处着眼、细处着手,总体与细部深入推敲;从里到外、从外到里,局部与整体协调统一;在体现艺术特色和创作个性的和谐统一 设计机构:佳园装饰六盘水公分司 设计风格:现代风格 工程地址:紫藤庄园 建筑面积:110㎡ 工程造价:10.8万 设 计 师:潘依雪 平面布置图: 本案的室内空间开敞、内外通透,在空间平面设计中追求不受承重墙限制的自由。力求创造出时代精神,独具新意的简化装饰,设计简单、通俗、清新,更接近人们生活。室内墙面、地面、顶棚以及家具陈设,乃至灯具器皿等均以简洁的造型、纯洁的质地、精细的工艺为其特征。在现代风格中,设计师大量使用铁制构件,将玻璃、瓷砖等新工艺,以及铁艺制品、陶艺制品等综合运用于室内。我们注重室内外沟通,竭力给室内装饰艺术引入新意。 作品欣赏: 想要更多个性设计方案, 报名免费预约我们的专业设计师吧! 地址:六盘水南环路南凤天城二期(市一中斜对面北盘江大酒店二楼) 热线:0858-8107188 网络报名地址:http://lps.gz-jyzs.com/ 微信报名:长按二维码关注佳园装饰即可报名
相关案例推荐
张青江
设计师相关作品

粤公网安备 44010602000156号