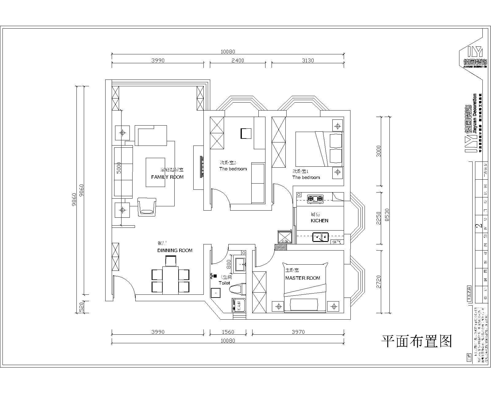
前言: 现代简约风格是以简约为主的装修风格。简约主义源于20世纪初期的西方现代主义。西方现代主义源于包豪斯学派,包豪斯学派提倡功能第一的原则,提出适合流水线生产的家具造型,在建筑装饰上提倡简约,简约风格的特色是将设计的元素、色彩、照明、原材料简化到最少的程度,但对色彩、材料的质感要求很高。因此,简约的空间设计通常非常含蓄,往往能达到以少胜多、以简胜繁的效果。 设计机构:佳园装饰六盘水公分司 设计风格:现代简约风格 工程地址:五千年 建筑面积:98㎡ 工程造价:8.1万 设 计 师:潘依雪 平面布置图: 现代简约风格主要表现在空间开敞、内外通透,在空间平面设计中追求不受承重墙的限制自由。所以在设计的时候,往往都会考虑到墙面、地面、顶棚等的协调性。对于现在的人来说,早已厌倦了城市的喧嚣、看够了灯红酒绿。所以在家的装修和装饰上所追求非常简单。 客厅一眼望去非常简洁、大气、自然。 过道 客厅以简洁的造型、纯洁的质地、精细的工艺为其特征,展现了家的温馨舒适 想要更多个性设计方案, 报名免费预约我们的专业设计师吧! 地址:六盘水南环路南凤天城二期(市一中斜对面北盘江大酒店二楼) 热线:0858-8107188 网络报名地址:http://lps.gz-jyzs.com/ 微信报名:长按二维码关注佳园装饰即可报名
相关案例推荐
张青江
设计师相关作品

粤公网安备 44010602000156号