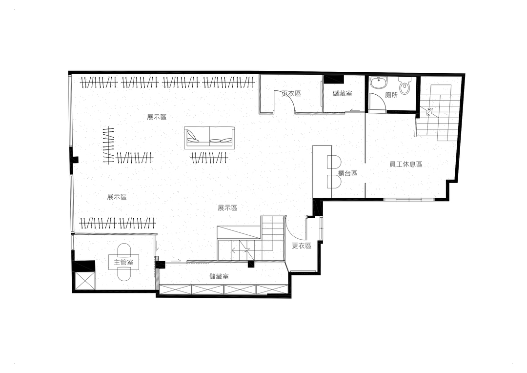
前言: 此品牌為台南在地網路服飾轉型實體店門市,業主期望空間呈現不同以往氛圍,想以現代科技感風格為主軸,展現商品的時尚穿搭精神,營造品牌專屬的空間魅力。
其他
相关案例推荐
网友评论
吳品彥

粤公网安备 44010602000156号