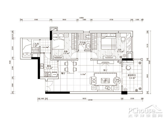
前言: 本案的用色素雅为主,但却没有给人沉闷单调的感觉,主要是设计师在保持沉稳格调的同时,加入了色彩的跳跃感,提升了空间的温度,营造低调不平凡的氛围。下面我们就一起来看一下网友的需求吧!
相关案例推荐
网友评论

李孟秋
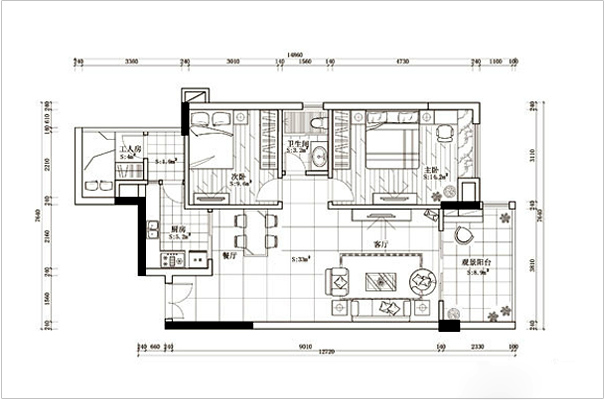
前言: 本案的用色素雅为主,但却没有给人沉闷单调的感觉,主要是设计师在保持沉稳格调的同时,加入了色彩的跳跃感,提升了空间的温度,营造低调不平凡的氛围。下面我们就一起来看一下网友的需求吧!
相关案例推荐
李孟秋