前言: 青庐——古代婚房的现代诠释 “青庐”源自古代婚房之名,承载着传统婚俗的温情寓意。
窗外是城中村的烟火气,窗内是两人的诗意栖居。当95后新婚夫妻放弃千篇一律的“精装房”,设计师用135㎡的老自建房,以“青庐”为名,在传统婚房与现代美学间找到平衡。他们通过我们此前作品 《融化的奶酪》 找到团队,希望延续奶油风的治愈基调,为新婚生活打造一座兼具仪式感与功能性的理想居所。
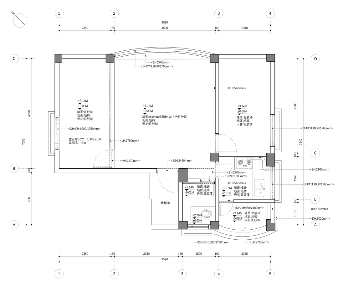
老宅的挑战与新生契机成“三房”。 初次踏入这栋位于佛山城中村的自建房时,设计师笑言:“改造后定会成为村里最靓的仔!”建筑共两层,总面积135㎡,原始格局却问题重重: 一楼痛点: 进门即见客厅,毫无私密性; 两间卧室占据最佳采光面,导致客厅白天也需开灯; 厨房与阳台拥挤不堪,动线混乱,收纳几近于无; 卫生间未做干湿分离,卧室尺寸失调,储物功能缺失。
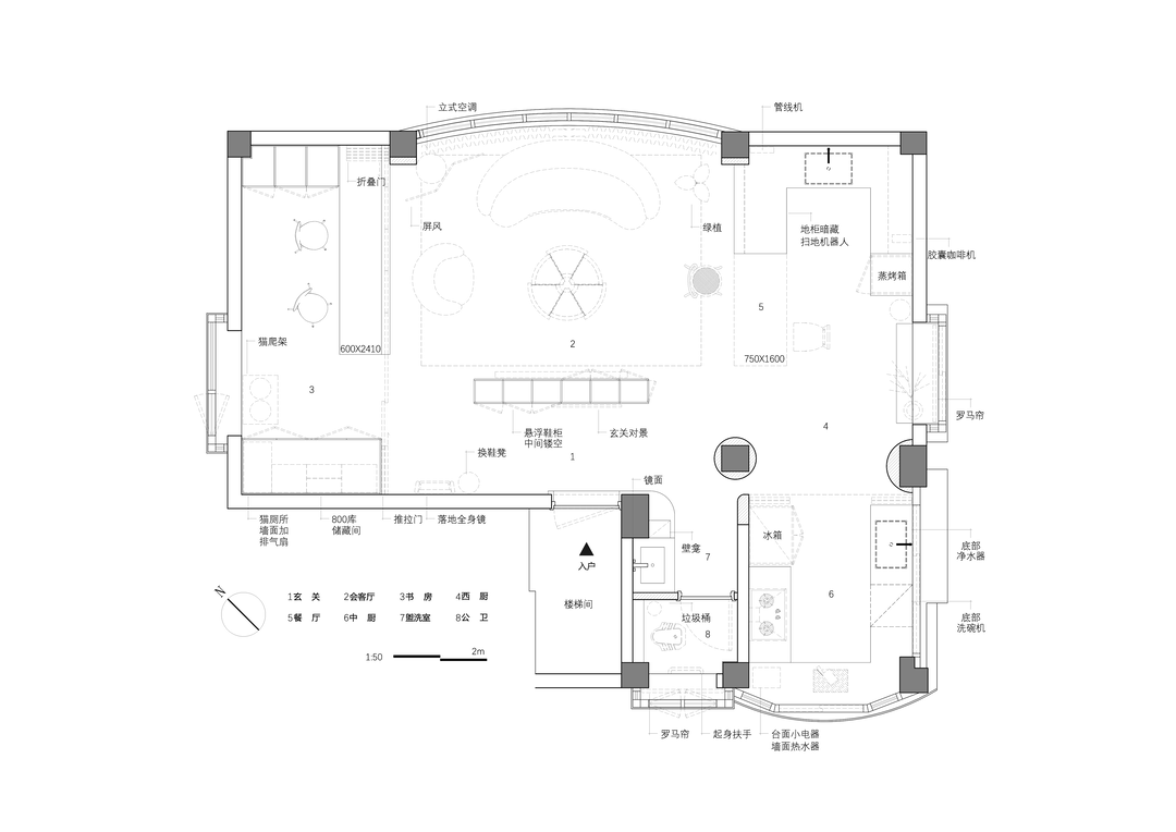
垂直分区与光之魔法 功能布局: 动静垂直分区: 一楼作为社交主场(会客、餐厨),二楼打造私密生活区(卧室、休闲)。 硬装重构: 两层空间均进行大幅度格局调整,以“引光、纳景、塑形”为核心逻辑。
一楼改造重点: 破除暗室:拆除客厅两侧墙体,将自然光引入户型中心,终结“白天开灯”的窘境; 厨房重生:合并阳台扩充厨房面积,优化操作动线,收纳容量翻倍; 空间转换:东侧卧室改为西厨餐厅,西侧卧室化身书房兼电竞房; 弧形叙事:处理碍眼立柱为艺术圆柱,玄关至卫生间的弧形墙面柔化归家路径。
#效果图,往下看实景还原↓ 一 楼 Ground floor 功能与美学的共生游戏 ① 玄关:悬浮鞋柜的“两面人生”
改造前同角度对比
鞋柜内部以S型分隔:下层收纳鞋物,背面变身客厅电视墙,顶部背面暗藏Switch游戏设备柜,满足屋主娱乐需求
弧形窗帘+同款沙发,与圆柱、灯带构成柔软归家仪式 ② 餐厨:梁位变身的“光影魔术”
厨房梁位暗藏阵列射灯,既弱化压迫感,又补充操作台照明
餐厅吊灯可随节日长桌横移弯折,光源始终居中,聚会氛围拉满
拆除两侧隔墙,将自然光引入户型核心区,终结“暗室”时代 悬浮鞋柜背面延伸为电视背景墙,形成视觉中轴线,电视墙顶部暗藏Switch游戏设备柜,手柄、卡带收纳于无形
定制弧形窗帘暗藏柔光灯带,沙发随曲线蜿蜒,与玄关圆柱、卫生间弧形墙面形成空间对 话 ④ 书房:半墙之隔的秩序美学
半高墙体精准遮挡电脑设备,客厅视角零杂乱,手办展示柜与书桌一体设计,二次元爱好者的宝藏角落
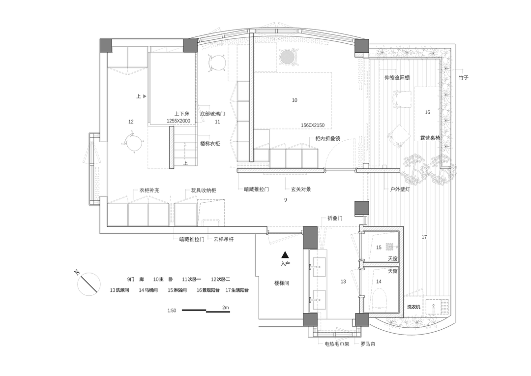
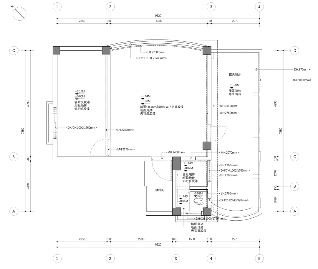
收纳柜底部暗藏猫厕换气扇,可惜“波波”更爱沙发瘫——设计师调侃:“留个念想,等主子回心转意。” 二楼痛点: 入口区域沦为废弃晾晒区,阳台利用率极低; 卫生间淋浴与蹲坑混用,存在安全隐患; 卧室动线迂回,空间规划与生活需求严重脱节。
垂直分区与光之魔法 功能布局: 动静垂直分区: 一楼作为社交主场(会客、餐厨),二楼打造私密生活区(卧室、休闲)。 硬装重构: 两层空间均进行大幅度格局调整,以“引光、纳景、塑形”为核心逻辑。
二楼改造重点: 光之容器:打通阳台外墙,将最佳采光面赋予主卧,并增设休闲露台; 未来预埋:西侧卧室改造为上下错层空间,预留儿童游乐园可变性; 干湿三分离:借用部分阳台重塑卫生间,实现洗漱、淋浴、如厕独立; 小盒子建筑:采用非对称墙体与磨砂天窗,让光线从顶部漫入每个角落
#效果图,往下看实景还原↓ 二楼 Second floor 悬浮盒子与未来生长力
为了让空间采光延伸的更远,我们在楼上做了几个小建筑,让光从顶部延伸至空间尽头 ⑤ 主卧:未完成的浪漫留白
阳台未完全封闭,未来可用龟背竹、琴叶榕打造一处会呼吸的生态隔断
剩余的阳台空间分隔成了两部分,一部分是户外洗衣房,主晾衣功能,另外一部分被我们纳入到了卫生间空间,卫生间空间独立突出户外阳台,行成了独立的方盒子。
⑥ 卫生间:雨天沐浴如置身森林
拆除隔墙引入露天阳台,磨砂玻璃天窗让雨天沐浴如置身森林 ⑦未来彩蛋:十年成长计划
西侧卧室改造为上下错层“树屋”,预留推拉门轨道与互动窗口
秘密通道小门,树屋+洄游动线设计
楼上楼下互动窗口、秘密通道,让童年记忆在空间里自然生长
二胎时代分隔为独立房间,既保留亲密感又尊重隐私 基础信息 项目位置 / 广州 套内面积 /135 ㎡ 设计公司 /陈智超设计 主案设计师 / 陈智超 设计团队 / 吴小倩 项目摄影 / ALPDRI-业轩 房屋类型 /自建房改造 主要材质 / 莱姆石砖,木纹砖,石英石,乳胶漆
【获奖经历】 ·2025 金堂奖「2025年卓越设计青年」 ·2024 设计星(2024-2025)全国36强候选人 2024-2025年度城市设计星区域50强 40 UNDER 40 (城市)当代设计杰出青年(2023-2024)城市榜 2024中国室内设计大奖赛“金十佳”(广州区) 原创力中国设计大赛(2024-2025年度入围奖) 新锐设计奖(2024-2025年度城际榜) 《2024“豪斯奖”中国当代住宅设计大奖》• 全国TOP100 ·2023年 “2023科勒精选·住宅设计风格榜”年度敢创设计人物提名奖 “让设计回归自然·2023年度高端私宅设计影响力榜单TOP50强” “寻找心之所居2023中国室内设计年度评选”华南区年度绿色设计优秀奖 “寻找心之所居 - 2023中国室内设计年度评选”年度十佳私宅空间设计奖TOP10 2023中国室内设计大奖赛“金十佳”(广州区) 第十一届Hi-Design室内设计大赛-老房翻新奖 “老宅新生”设计奖广州城市十大改造设计师 40 UNDER 40(城市)当代设计杰出青年(2023-2024)城市榜 第十一届筑巢奖公众类“优秀奖” 年度先锋榜·DESIGNCHINA 2023年度
相关案例推荐
陈智超
设计师相关作品

粤公网安备 44010602000156号